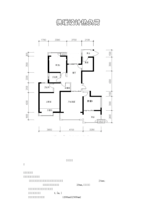
供暖设计热负荷 房屋平面图 北 房屋热负荷计算 一、已知维护结构条件为: 外墙:二墙砖,外表面为石灰、水泥、砂、砂浆抹面,厚24mm;...
恒温游泳馆热负荷计算方法
深圳市瑞思迈普科技有限公司 1 / 8 数 据 中 心 机 房 空 调 节 能 分 析 及 机 房 热 负 荷 计 算 恒温恒湿机房...
心电图运动试验(ECG exercise test)是指通过运动增加心脏负荷,使心肌耗氧量增加,用于冠心病及其他疾病的诊断、鉴别诊断及预后评价的...
四川省医学科学院 四川省人民医院 心电图运动负荷试验 概述: 心电图运动负荷试验(ECG exercise test)是发现早期冠心病的一种检侧...
二、综合性多厅电影院的概念 综合性多厅影院(Multiplex,下文简称多厅影院),指的是在同一屋顶下有多厅放映电影,同时又往往与其它娱乐业...
第 1 页共 8 页1 范围本指导书针对斗臂车绝缘手套作业法 10kV 板线杆带负荷更换边相跌落式熔断器工作编写而成,仅适用于该项工作。2...
精品文档---下载后可任意编辑高铁负荷对免疫相关性全血细胞减少症患者骨髓造血功能影响的讨论的开题报告一、讨论背景随着经济社会的快速进...
精品文档---下载后可任意编辑高速铁路牵引负荷建模及分析的开题报告1. 讨论背景和意义随着经济的进展和人民生活水平的提高,高速铁路的建...
精品文档---下载后可任意编辑高速铁路牵引变压器典型负荷曲线与容量优化讨论的开题报告一、讨论背景及意义随着高速铁路建设的不断推动,牵...
精品文档---下载后可任意编辑高负荷厌氧生物反应器在污泥消化稳定中的应用讨论的开题报告一、选题背景随着城市化的快速进展,城市生活垃圾...
精品文档---下载后可任意编辑高负荷地下土壤系统处理生活污水的初步讨论的开题报告一、讨论背景和意义地下土壤系统是一种处理生活污水的有...
精品文档---下载后可任意编辑高负荷下带有放弃的网络队列的开题报告1. 讨论背景和意义随着数字化时代的到来,网络带宽需求呈现爆炸式增长...
精品文档---下载后可任意编辑高盐负荷加速诱导的自发性高血压大鼠靶器官损伤时间窗讨论的开题报告1. 讨论背景高盐饮食是导致高血压的一个...
精品文档---下载后可任意编辑高炉冷却系统热负荷测量与在线监测系统的讨论的开题报告一、选题背景高炉是冶金工业中不可或缺的设备之一,其...
精品文档---下载后可任意编辑高水力负荷人工湿地净化景观湖水的讨论的开题报告一、题目高水力负荷人工湿地净化景观湖水的讨论 二、讨论背...
精品文档---下载后可任意编辑飞行模拟器电动式操纵负荷系统的讨论的开题报告一、讨论背景飞行模拟器是飞行员培训和飞行员技术训练的主要工...
精品文档---下载后可任意编辑飞行模拟机操纵负荷多余力抑制讨论与实现的开题报告开题报告题目:飞行模拟机操纵负荷多余力抑制讨论与实现讨...
精品文档---下载后可任意编辑面对冲击负荷的 TSC 型无功补偿装置讨论与设计的开题报告一、讨论背景电力负荷的迅速增长使得无功补偿技术越...
精品文档---下载后可任意编辑非线性负荷谐波特性的分析与评估的开题报告一、选题背景与意义电力系统中存在着各种形式的负荷谐波,其来源包...

