电脑桌面
添加小米粒文库到电脑桌面
安装后可以在桌面快捷访问

房屋热负荷计算

房屋热负荷计算_第1页
1/6
房屋热负荷计算_第2页
2/6
房屋热负荷计算_第3页
3/6
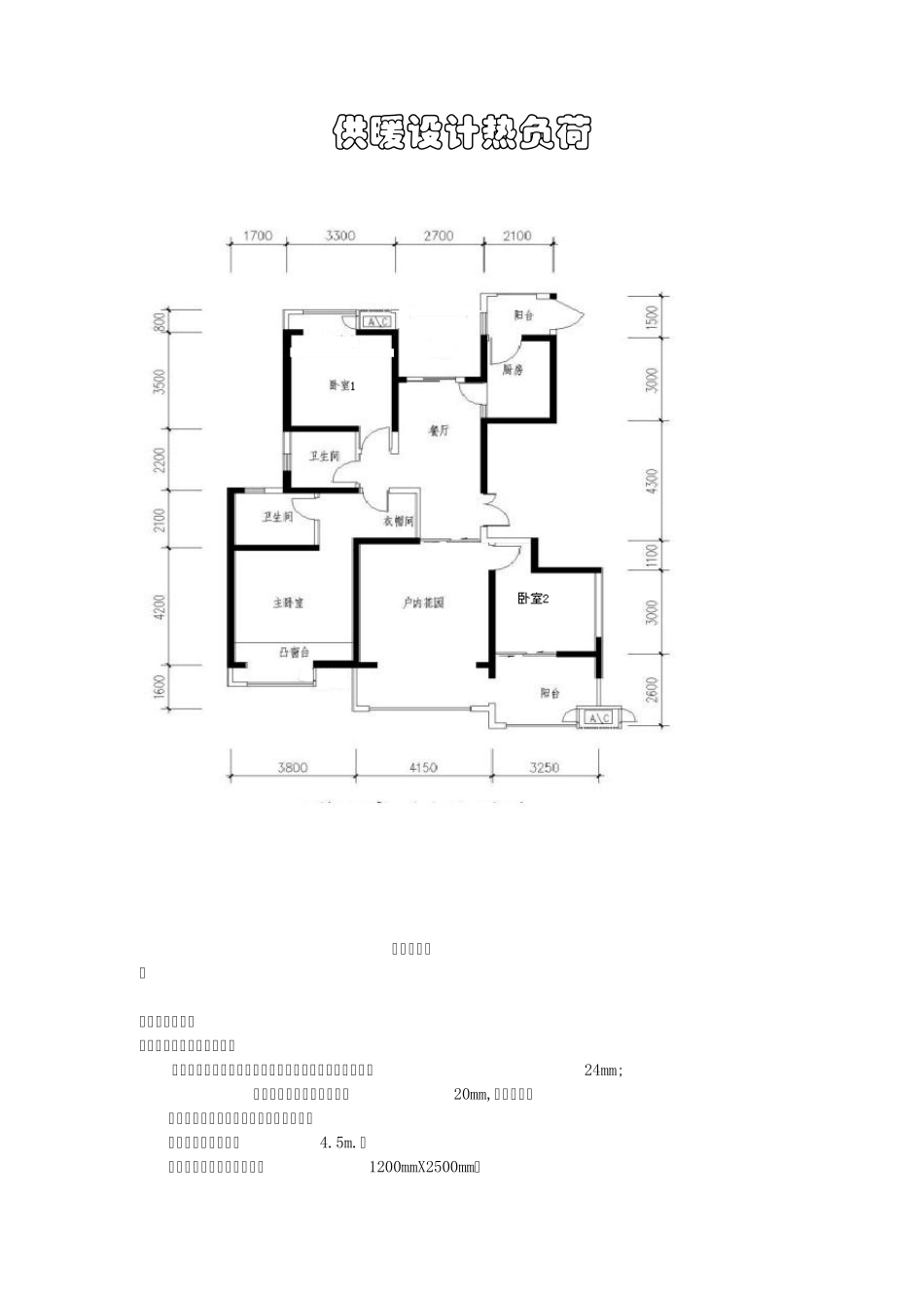
供暖设计热负荷 房屋平面图 北 房屋热负荷计算 一、已知维护结构条件为: 外墙:二墙砖,外表面为石灰、水泥、砂、砂浆抹面,厚24mm; 内表面为水泥砂浆抹面,厚20mm,白灰粉刷。 外窗:双层金属玻璃窗,尺寸如上标记。 楼层高度:各层均为4.5m.。 外门:双层金属框门,尺寸1200mmX2500mm。 地面:不保温地面。 屋面:构造如图所示。 一.确定维护结构的传热系数 1. 外墙 查表1— 1、表1— 2 和附录5,得维护结构内表面换热系数Xn=8.7W/(㎡·℃); 外表面换热系数Xn=23W/(㎡·℃); 外表面石灰、水泥、砂、砂浆抹面导热系数λ 1=0.87W/(m·℃); 内表面水泥砂浆抹面、白灰粉刷导致系数λ 2=0.93W/(m·℃); 红砖墙导热系数λ 3=0.81W/(m·℃)。 计算外墙传热系数,由式得 K=1/[1/Xn+∑ (﹠ /入 i)+1/xw ] =1/( 1/8.7+0.49/0.81+0.024/0.87+0.02/0.93+1/23) W/㎡·℃ =1.32 W/(㎡·℃) 2. 屋面 查表1— 1、表1— 2 和附录5 ,得内表面换热系数Xn=8.7W/(㎡·℃); 板下抹混合砂浆λ 1=0.87W/(m·℃),§1=20mm; 1:3 水泥砂浆λ 2=0.87W/(m·℃) § 2=20mm; 屋面预控空心板λ 3=1.74W/(m·℃) § 3=120mm; 一毡二油λ 4=0.17W/(m·℃) § 4=5mm ; 膨胀珍珠岩λ 5=0.07W/(m·℃) § 5=100mm; 1:3 水泥砂浆λ 6=0.87W/(m·℃) § 6=20mm ; 三毡四油卷材防水层λ 7=0.17W/(m·℃) § 7=10m;外表面换热系数Xw=23W/(㎡·℃)。 屋面传热系数为 K=1/[1/Xn+∑ (﹠ /λ i)+1/xw ] =1/( 1/8.7+0.12/1.74+0.02/0.87+0.02/0.87+0.005/0.17+0.1/0.07+0.02/0.87+0.01/0.17+1/23) W/(㎡·℃) =0.55 W/(㎡·℃) 3. 外门、外窗 查附录6 可知,双层金属门K=3.26W/(㎡·℃); 双层木框玻璃窗K=3.26 W/(㎡·℃)。 4. 地面 可采用地带法进行地面传热耗热量的计算,也可以查阅相关手册确定各房间地面的平均传热系数,再计算地面的传热耗热量。 二、客厅供暖设计热负荷计算 查附录1,冬季室内计算温度tn=16℃。 查附录3 长沙供暖室外计算温度tw=0℃。 1. 计算维护结构的传热耗热量Q1 (1)西外墙 传热系数K=1.24 W/(㎡·℃),温差修正系数a=1,传热面积 F=9.2x4=36.8 ㎡。 南外墙基本耗热量为 Q1’ =α KF(tn-tw) =1x1.24x36.8x(20-0)W=912.64W 查表1-6,长沙西朝向修正率ó1=-5% 朝向修正耗热量为 Q1” =912.64Wx(-0.05)=-456.32 本住宅建设在市区...

1、当您付费下载文档后,您只拥有了使用权限,并不意味着购买了版权,文档只能用于自身使用,不得用于其他商业用途(如 [转卖]进行直接盈利或[编辑后售卖]进行间接盈利)。
2、本站所有内容均由合作方或网友上传,本站不对文档的完整性、权威性及其观点立场正确性做任何保证或承诺!文档内容仅供研究参考,付费前请自行鉴别。
3、如文档内容存在违规,或者侵犯商业秘密、侵犯著作权等,请点击“违规举报”。

碎片内容

房屋热负荷计算

小辰3+ 关注
实名认证
内容提供者

出售各种资料和文档

确认删除?
VIP
微信客服
  • 扫码咨询
会员Q群
  • 会员专属群点击这里加入QQ群
客服邮箱
回到顶部