电脑桌面
添加小米粒文库到电脑桌面
安装后可以在桌面快捷访问

水泥砂浆楼梯踏步

水泥砂浆楼梯踏步_第1页
1/7
水泥砂浆楼梯踏步_第2页
2/7
水泥砂浆楼梯踏步_第3页
3/7
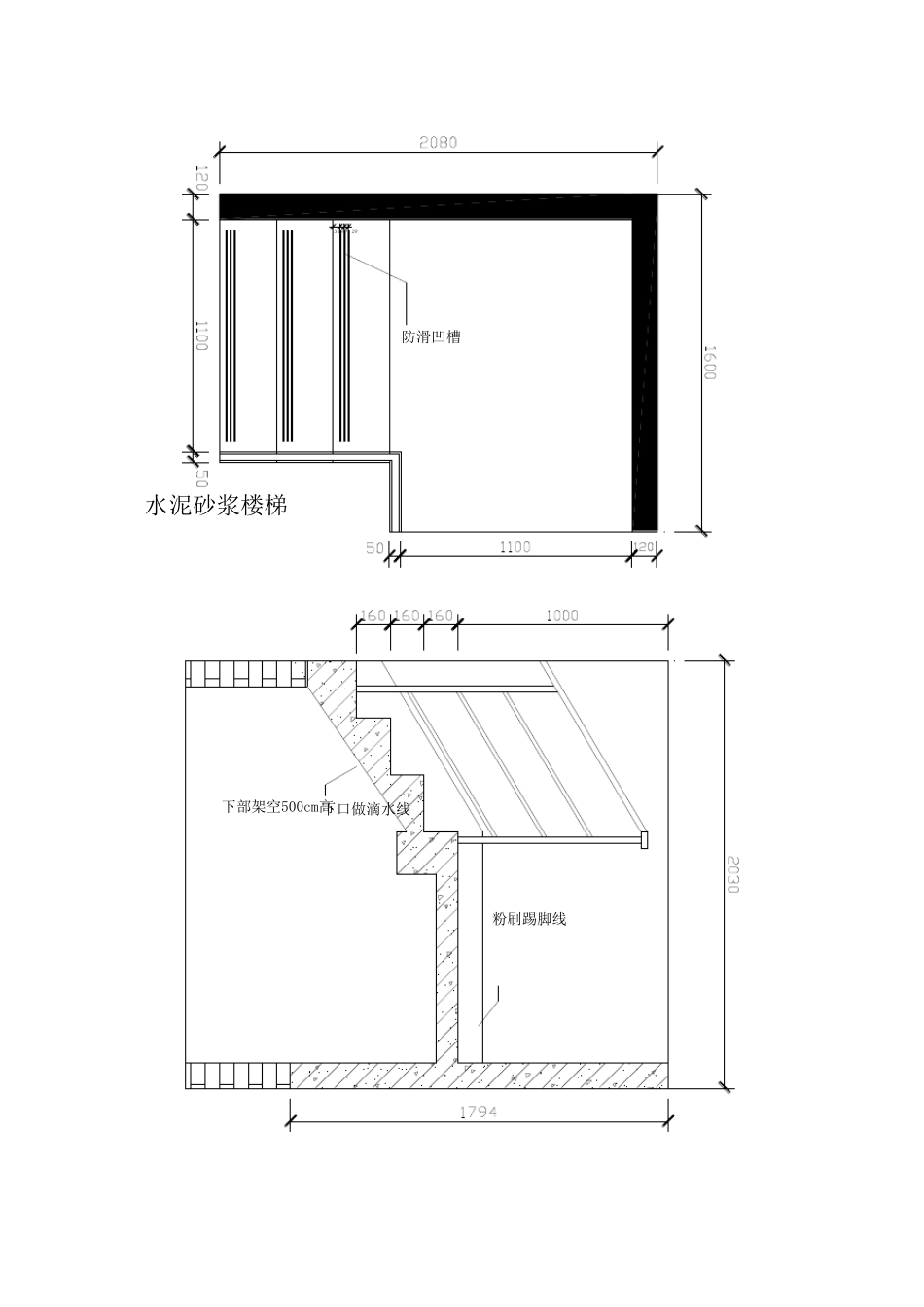
水泥砂浆楼梯 一、工序 基层处理→吊垂直、套方、找规矩、抹灰饼→墙面充筋 →抹底灰→贴塑料条→抹罩面灰 →养护 二、规范要求 楼梯踏步:《建筑地面工程施工质量验收规范 》GB50209-2002 要求 5.2.8、水泥砂浆踢脚线与墙面应紧密结合,高度一致,出墙厚度均匀。 5.2.9、楼梯踏步的宽度、高度应符合设计要求。楼层梯段相邻踏步高度差不应大于 10mm,每踏步两端宽度差不应大于 10mm;旋转梯梯段的每踏步两端宽度的允许偏差为 5mm。楼梯踏步的齿角应整齐,防滑条应顺直。 6.2.11、踢脚线表面应洁净、高度一致、结合牢固、出墙厚度一致。 《建筑装饰装修工程质量验收规范 》 GB0210-2001 规范要求 4.2.10、有排水要求的部位应做滴水线(槽)。滴水线(槽)应整齐顺直,滴水线应内高外低,滴水槽宽度和深度均不应小于 10 mm。 《民用建筑设计通则 》 GB50352-2005 规范要求 6.6.3 阳台、外廊、室内回廊、内天井、上人屋面及室外楼梯等临空处应设置防护栏杆,并应符合下列规定: 1、栏杆应以坚固、耐久的材料制作,并能承受荷载规范规定的水平荷载; 2、临空高度在 24m 以下时,栏杆高度不应低于 1.05m,临空高度在24m 及24m 以上(包括中高层住宅)时,栏杆高度不应低于1.10m ; 注:栏杆高度应从楼地面或屋面至栏杆扶手顶面垂直高度计算,如底部有宽度大于或等于0.22m ,且高度低于或等于0.45m 的可踏部位,应从可踏部位顶面起计算。 3、栏杆离楼面或屋面0.10m 高度内不宜留空; 4、住宅、托儿所、幼儿园、中小学及少年儿童专用活动场所的栏杆必须采用防止少年儿童攀登的构造,当采用垂直杆件做栏杆时,其杆件净距不应大于0.11m ; 5、文化娱乐建筑、商业服务建筑、体育建筑、园林景观建筑等允许少年儿童进入活动的场所,当采用垂直杆件做栏杆时,其杆件净距也不应大于0.11m 。 6.7.6 楼梯应至少于一侧设扶手,梯段净宽达三股人流时应两侧设扶手,达四股人流时宜加设中间扶手。 6.7.7 室内楼梯扶手高度自踏步前缘线量起不宜小于0.90m 。靠楼梯井一侧水平扶手长度超过 0.50m 时,其高度不应小于1.05m 。 6.7.8 踏步应采取防滑措施。 6.7.10 楼梯踏步的高宽应符合建筑图纸中尺寸要求的相关规定。 三、细部节点 防滑凹槽水泥砂浆楼梯352020粉刷踢脚线下部架空500cm高下口做滴水线 踢脚线贴塑料条,粉刷 踏面养护 踏步放样、清理、预埋护角条 墙面粉刷 防滑凹槽施工工具 1、踢脚线凸出墙...

1、当您付费下载文档后,您只拥有了使用权限,并不意味着购买了版权,文档只能用于自身使用,不得用于其他商业用途(如 [转卖]进行直接盈利或[编辑后售卖]进行间接盈利)。
2、本站所有内容均由合作方或网友上传,本站不对文档的完整性、权威性及其观点立场正确性做任何保证或承诺!文档内容仅供研究参考,付费前请自行鉴别。
3、如文档内容存在违规,或者侵犯商业秘密、侵犯著作权等,请点击“违规举报”。

碎片内容

水泥砂浆楼梯踏步

小辰7+ 关注
实名认证
内容提供者

出售各种资料和文档

确认删除?
VIP
微信客服
  • 扫码咨询
会员Q群
  • 会员专属群点击这里加入QQ群
客服邮箱
回到顶部