电脑桌面
添加小米粒文库到电脑桌面
安装后可以在桌面快捷访问

施工平面布置培训资料VIP免费

施工平面布置培训资料_第1页
1/55
施工平面布置培训资料_第2页
2/55
施工平面布置培训资料_第3页
3/55
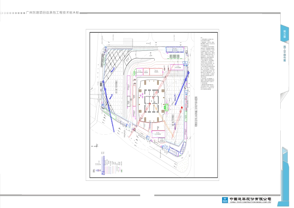
第五章施工平面布置第一节施工现场现状与平面布置条件本工程位于珠江新城CBD中心地段,场外交通便利,西临珠江大道东,单行4车道,东邻冼村路,市政双向6车主干道,南临花城路南,单行2车道,北靠花城大道,单行2车道。塔楼区域一期基坑已经开挖到位,塔楼箱型基础和筏板基础已施工完成。场内东侧办公室、宿舍、食堂等临时设施未拆除;塔楼基坑东北角有出土坡道缺口;围墙内其他场地已作硬化处理。东塔二期基坑外边线与用地红线距离很小,基坑边上可供平面布置的场地非常有限。基坑外边线与用地红线距离:西侧约1.5m,北侧0~4.7m,东侧约1.2m,南侧贴近用地红线。现有西边和东边围墙均超出用地红线一定距离,南边和北边围墙均在拟建地下室外墙边线以内。现有两个大门,均设在现场东南部,其中一个面向花城南路,另一个大门外面是即将动土施工的富力J2-5空地,穿过其设了一条通往冼村路的硬化道路。施工临时用水布置在东南角,供水管管径为DN100;临时用电配电室设置在基坑南侧,供电容量为3×1000kVA。基坑东侧分别合景J2-2,富力J2-5项目,其中北部J2-2项目基坑挖深约21m,J2-2基坑已开挖到底,主要采用桩撑及桩锚支护;南部J2-5规划地下室深18m,距本工程地下室约16.5m,J2-5项目还在方案设计阶段,预计2011年春节后动工兴建;第二节现场平面布置的依据、原则业主所发招标文件、招标图纸及答疑资料。国家、广东省、广州市有关施工规定、规程及安全文明施工标准和规定。现场界线、水源、电源位置、周围道路情况以及现场勘察结果。中建CI形象规定。总进度计划及资源需用量计划。总体施工部署和主要施工方案。安全文明施工及环境保护、水土保持设计报告要求。根据工程特点和现场周边环境的特征,充分利用现有施工现场的场地和布置,做好总平面布置规划,满足生产、文明施工及进度要求。做好现场平面布置和功能分区,对现有临建及围墙进行调整。加强现场平面布置的分阶段调整,科学确定出土路线和场地平面布置,确保塔楼结构、土方开挖及基坑支护结构、地下室结构和裙楼结构的施工进度。加强平面施工的检查及监督整改,保证场内施工道路通畅。各项施工设施布置要满足方便生产,有利生活,安全防火,环境保护和劳动保护要求。第三节各阶段施工平面布置方案塔楼首层至L24结构施工阶段平面布置图就近接入市政排污管道E大门出入通道C大门就近接入市政排污管道就近接入市政排污管道B大门钢结构堆场30m×10m钢结构堆场15m×10m木工加工场10m×8m钢筋堆放及加工场15m×10m钢筋堆放及加工场30m×10m场内边道周转材堆场15m×6m木工加工场15m×4m钢筋堆放及加工场30m×8m现场办公室(3层)40.0mX7.28m砼泵砼泵砼泵砼泵砼泵砼泵配电房水池4×3m图例:洗车槽沉淀池水源临设、堆场边线钢构件拼装及堆场地下室边线围墙边线消防设备箱用地红线花草、树土建材料加工及堆场周转材堆场变压器、发电房上下基坑安全梯动臂塔吊平臂塔吊支护桩备用发电机房砼泵钢筋堆放及加工场15m×7m钢结构堆场30m×7m钢筋堆放及加工场30m×7m周转材堆场15m×7m钢筋堆放及加工场25m×4m钢结构堆场360m2塔吊柴油储库70m2A区:地下室结构施工C区B区:地下结构施工仓库仓库说明:1、该布置为塔楼首层-L24结构施工阶段,且包含A区和B区地下结构施工。2、现场围墙(蔽)、大门和办公室、塔楼北侧和东侧钢构、材料堆场、加工场及其它临设沿用之前阶段基本不变。3、待主塔楼西侧地下室首层室外顶板经验算加固完成后,沿着塔楼布置2个钢结构堆场,约有630m2,外侧相邻布置一个约300m2较大钢筋堆放及加工场和一个约90m2的周转材堆场。主塔楼地下室封顶后,顶模系统安装使用,并在塔楼核心筒西北角安装一台M1280D动臂塔吊,工作半径60m,以满足主塔楼钢结构安装。此阶段沿用塔楼东北角布置的2台车载砼泵满足主塔楼砼施工。4、A区地下结构施工时,在基坑西侧增加一个钢筋堆放及加工场,基坑北侧增加一个木工加工场;布置至少2台砼车载泵,分别布置在西北角F门内侧和东北角G门内侧.5、B区地下结构施工前在南面靠近基坑内侧布置一台STL203动臂塔吊,东侧南边基坑顶安装一台F0/23B平臂塔吊,工作半径均为45m;东侧坡顶和南侧坑定分别增加一个...

1、当您付费下载文档后,您只拥有了使用权限,并不意味着购买了版权,文档只能用于自身使用,不得用于其他商业用途(如 [转卖]进行直接盈利或[编辑后售卖]进行间接盈利)。
2、本站所有内容均由合作方或网友上传,本站不对文档的完整性、权威性及其观点立场正确性做任何保证或承诺!文档内容仅供研究参考,付费前请自行鉴别。
3、如文档内容存在违规,或者侵犯商业秘密、侵犯著作权等,请点击“违规举报”。

碎片内容

施工平面布置培训资料

确认删除?
VIP
微信客服
  • 扫码咨询
会员Q群
  • 会员专属群点击这里加入QQ群
客服邮箱
回到顶部