电脑桌面
添加小米粒文库到电脑桌面
安装后可以在桌面快捷访问

厨房标准2稿VIP免费

厨房标准2稿_第1页
1/38
厨房标准2稿_第2页
2/38
厨房标准2稿_第3页
3/38
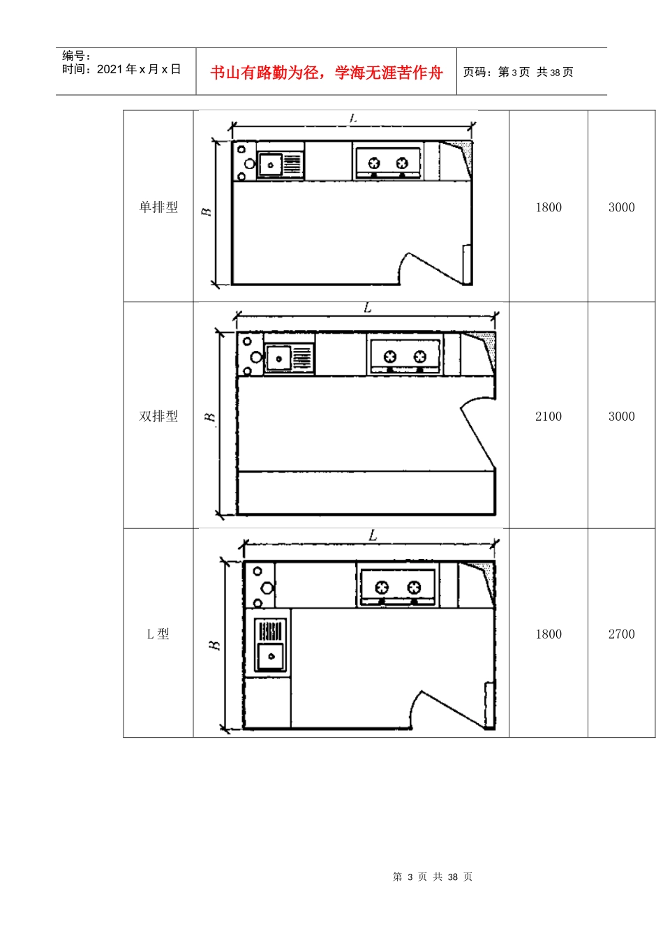
第1页共38页编号:时间:2021年x月x日书山有路勤为径,学海无涯苦作舟页码:第1页共38页4设计4.1一般规定4.1.1住宅厨房和卫生间的设计应符合国家现行有关标准的规定,并应符合现行国家标准《住宅设计规范》(GB50096-1999)、《住宅建筑规范》(GB50386-2005)、《民用建筑设计通则》(GB50352-2005)等的要求。4.1.2厨房空间尺寸按装修后的净尺寸计算。4.1.3厨房设备的选用应满足配套性、通用性和互换性的要求,厨房设备尺.寸系列应符合《住宅厨房家具及厨房设备模数系列》(JC/T219-2007)的相关要求。4.1.4安装厨房设备的墙体,其强度应满足厨房设备安装要求。4.1.5厨房内的各种管线接口设计均应定尺定位,施工误差±5mm。4.1.6厨房的室内净高不应低于2.20m。4.1.7电热水器应带有漏电保护的安全装置。4.1.8厨房的设计应综合考虑橱柜和厨房设备(灶具、排油烟机、洗涤池)以及给水排水、燃气管道、供暖通风管道、电器设备管线的布置。4.2建筑空间设计4.2.1厨房空间尺寸4.2.1.1住宅厨房内部空间净尺寸应是基本模数的倍数,宜根据表4.0.1选用,并应优先选用黑线范围内净面积对应的平面净尺寸。表4.0.1厨房内部空间平面净尺寸(mm)和净面积(㎡)系列开间方向净尺寸进深方向净尺寸150017001800220025002800310027004.05单排布置4.59L型布置4.86U型布置5.946.757.56U型布置(有冰箱)8.3730004.505.10L型布置(有冰箱)5.40双排布置6.607.508.409.3033004.95单排布置5.615.94双排布置(有冰箱);U型布置7.268.259.3410.23第2页共38页第1页共38页编号:时间:2021年x月x日书山有路勤为径,学海无涯苦作舟页码:第2页共38页(有冰箱)36005.406.126.487.929.0010.0811.1641006.977.389.0210.2511.4812.714.2.1.2厨房的使用面积不应小于a:一类和二类住宅为4m2;b、三类和四类住宅为5m2。4.2.1.3住宅厨房建筑模数应符合GB/T50100的规定。4.2.1.4住宅厨房家具尺寸应与建筑模数相协调。住宅厨房净尺寸和厨房家具的基本模数数值为100mm,其符号为M。厨房开间与进深和厨房家具的模数化尺寸,应是基本模数的倍数。注1:厨房净尺寸指建筑装修后的尺寸。2:M是国际通用的建筑模数符号,1M=100mm。4.2.1.5厨房净尺寸限值1开间净尺寸,操作厨房不应小于1.60m;与餐厅台用的餐室厨房不应小于2.70m;与起居室、餐厅合用的起居餐室厨房不应小于3.30m,或视平面布局确定。2进深净尺寸,操作厨房和与餐厅合用的餐室厨房不宜小于3.00m。3安装燃气灶的厨房空间净高不应低于2.20m;安装燃气热水器和燃气壁挂式采暖炉的空间净高宜大于2.40m。4.2.1.6住宅厨房家具的主要布置形式分为单排型、双排型、L型、U型和壁柜型,其厨房净宽度(短边)、净长度(长边)尺寸应符合表的规定。下表为住宅厨房宽度、长度尺寸限值:厨房家具布置形式布置平面示意图厨房最小净宽度(B)mm厨房最小净长度(L)mm第3页共38页第2页共38页编号:时间:2021年x月x日书山有路勤为径,学海无涯苦作舟页码:第3页共38页单排型18003000双排型21003000L型18002700第4页共38页第3页共38页编号:时间:2021年x月x日书山有路勤为径,学海无涯苦作舟页码:第4页共38页U型24002700注:(1)布置双排型家具的厨房中,两排厨房家具的净距为0.9m;(2)下尺寸为无障碍厨房的尺寸;(3)厨房地柜的净长不小于2.1m;(4)避风道、管井等未计入厨房尺寸限值中;4.2.1.7当需要对厨房内部空间进行局部分割时,可插入分模数M/2(50mm)或M/5(20mm)。4.2.1.8厨房室内装修地面至室内吊顶的净高度不应小于2200mm。4.2.1.9对于厨房空间的墙体,其厚度宜符合模数,并宜按模数网格布置。4.2.1.10满足乘坐轮椅的特殊人群要求的厨房设计除应符合现行行业标准《城市道路和建筑物无障碍设计规范》JGJ50的规定外,尚应符合下列规定:1厨房的净宽不应小于2000mm,且轮椅回转直径不应小于1500mm。2满足乘坐轮椅的特殊人群使用要求的厨房地柜台面下方空间净宽度不应小于600mm,高度不应小于650mm,深度不应小于350mm。3厨房的室内装修地面到吊柜底面的高度不应大于1200mm。4.2.1.10厨房设备布置应方便操作,符合洗、切、烧的炊事流程,操作面最小净长2.1m,燃气灶尽量避...

1、当您付费下载文档后,您只拥有了使用权限,并不意味着购买了版权,文档只能用于自身使用,不得用于其他商业用途(如 [转卖]进行直接盈利或[编辑后售卖]进行间接盈利)。
2、本站所有内容均由合作方或网友上传,本站不对文档的完整性、权威性及其观点立场正确性做任何保证或承诺!文档内容仅供研究参考,付费前请自行鉴别。
3、如文档内容存在违规,或者侵犯商业秘密、侵犯著作权等,请点击“违规举报”。

碎片内容

厨房标准2稿

确认删除?
VIP
微信客服
  • 扫码咨询
会员Q群
  • 会员专属群点击这里加入QQ群
客服邮箱
回到顶部