电脑桌面
添加小米粒文库到电脑桌面
安装后可以在桌面快捷访问

美标法兰标准尺寸表VIP免费

美标法兰标准尺寸表_第1页
1/6
美标法兰标准尺寸表_第2页
2/6
美标法兰标准尺寸表_第3页
3/6
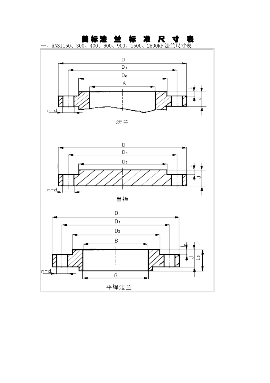
美标法兰标准尺寸表一、ANSI150、300、400、600、900、1500、2500RF法兰尺寸表表1ANSI150RFmm公称通径外径螺栓孔中心圆直径连接凸出部分直径内径焊接处颈部直径颈根部直径法兰厚度焊接法兰长度连接凸出部分高度螺栓孔直径数量螺栓直径DNDD1D2ABCEFGJL1L2L3LdnM2098704321282027381353162291.6154122510879.5512735253451491456171.615412321188963.53543324260591657211.6154124012798.5734150404867651862221.61541250152120.59253625060.583781964251.61941665178139.51056375657395912470291.61941680190152.5127789180891081082470301.619416100229190.51571021161001141401352476333051.6198161252542161861281441251411651642489371.6238M20150279241.52161541711501681971922589401.6238M20200343298.527020322120021924824629102441.6238M2025040636232425527625027330530530102491.62512M2230048343238130532730032436536532114561.62512M22表2ANSI300RFmm公称通径外径螺栓孔中心圆直径连接凸出部分直径内径焊接处颈部直径颈根部直径法兰厚度焊接法兰长度连接凸出部分高度螺栓孔直径数量螺栓直径DNDD1D2ABCEFGJL1L2L3LdnM2011782.54321282027481657252291.6194162512489512735253454541762271.6194163213398.4643543324264641965271.61941640156114.5734150404870702168301.62342050165127925362506084842270331.61981665191149105637565731001002576381.62382080210168127789180891171172979431.6238201002542001571021161001141461463286483051.6238201252792351861281441251411781783598511.6238201503182702161541711501682062063798521.623122020038133027020322120021926026041111621.6251222250445387.532425527625027332132148117671.630162730052145138130532730032437537551130731.6331630表3ANSI400RFmm公称通径外径螺栓孔中心圆直径连接凸出部分直径内径焊接处颈部直径颈根部直径法兰厚度焊接法兰长度连接凸出部分高度螺栓孔直径数量螺栓直径DNDD1D2ABCEFGJL1L2L3LdnM2011782.543按用户要求282027482264322356.41941625124895135253454542468336.41941632133986443324264642773356.419416401561147350404870702976386.423420501651279262506084843279436.419816651911491057565731001003586486.423820802101681279180891171173889526.4238201002542001571161001141461464195573116.42582212527923518614412514117817845108606.42582215031827021617115016820620648110646.425122220038133027022120021926026054124756.430122725044538732427625027332132160130796.433163030052145138132730032437537564143866.4351632表4ANSI600RFmm公称通径外径螺栓孔中心圆直径连接凸出部分直径内径焊接处颈部直径颈根部直径法兰厚度焊接法兰长度连接凸出部分高度螺栓孔直径数量螺栓直径DNDD1D2ABCEFGJL1L2L3LdnM2011782.543按用户要求282027482264322356.41941625124895135253454542468336.41941632133986443324264642773356.41941640156114.57350404870702976386.423420501651279262506084843279436.419816651911491057565731001003586486.423820802101681279180891171173889526.42382010027321615711610011415215245108573116.425822125330266.518614412514119118951121676.43082715035629221617115016822222254124736.433123020041934927022120021927327362140836.436123325050843232427625027334334370159926.436163330055948938132730032440040073162986.4362033表5ANSI900RFmm公称通径外径螺栓孔中心圆直径连接凸出部分直径内径焊接处颈部直径颈根部直径法兰厚度焊接法兰长度连接凸出部分高度螺栓孔直径数量螺栓直径DNDD1D2ABCEFGJL1L2L3LdnM201308943按用户要求282027443276412356.42342025149101.55135253452523579486.425422321591116443324263.5643579486.425422401781247350404870703889516.430427502161659262506010510545108646.42582265244190.510575657312412448111706.43082780241190.512791808912712745108606.4258221002922351571161001141591595112176...

1、当您付费下载文档后,您只拥有了使用权限,并不意味着购买了版权,文档只能用于自身使用,不得用于其他商业用途(如 [转卖]进行直接盈利或[编辑后售卖]进行间接盈利)。
2、本站所有内容均由合作方或网友上传,本站不对文档的完整性、权威性及其观点立场正确性做任何保证或承诺!文档内容仅供研究参考,付费前请自行鉴别。
3、如文档内容存在违规,或者侵犯商业秘密、侵犯著作权等,请点击“违规举报”。

碎片内容

美标法兰标准尺寸表

您可能关注的文档

确认删除?
VIP
微信客服
  • 扫码咨询
会员Q群
  • 会员专属群点击这里加入QQ群
客服邮箱
回到顶部