电脑桌面
添加小米粒文库到电脑桌面
安装后可以在桌面快捷访问

工程造价员考试题库(土建)VIP专享VIP免费

工程造价员考试题库(土建)_第1页
1/11
工程造价员考试题库(土建)_第2页
2/11
工程造价员考试题库(土建)_第3页
3/11
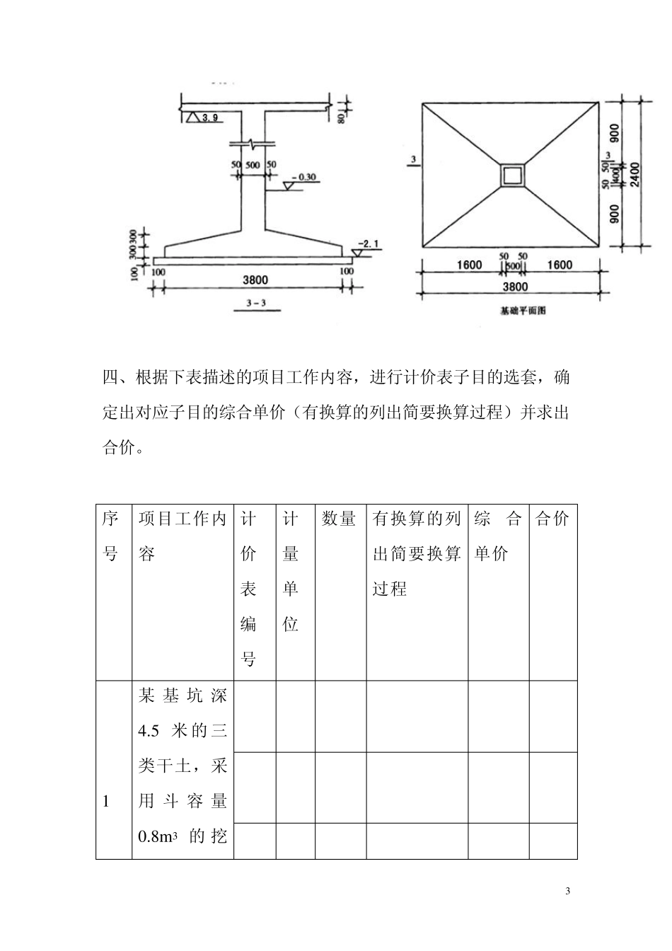
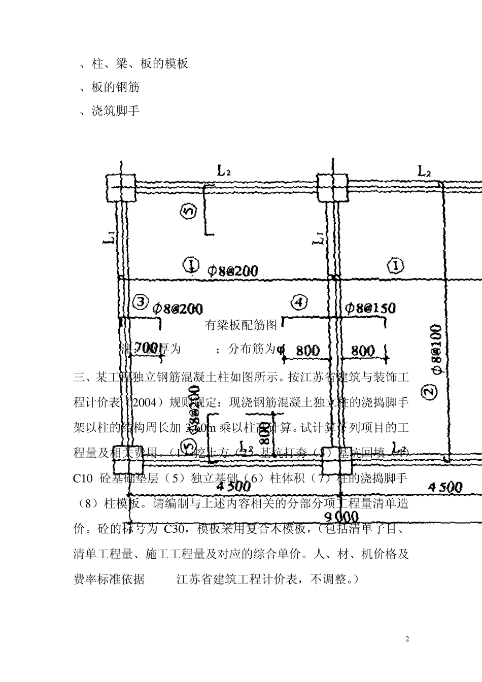
1 江苏省建设工程造价员资格考试 土建造价案例分析试卷 一、图示工程的设计做法如下:用M5水泥砂浆砌筑砖台阶,砼散水、坡道按苏J9508规定做法,大门斜坡在表面做蹂蹉,水泥砂浆粘贴花岗岩台阶及平台面层,地面做法为,素土夯实、80mm厚碎石垫层、60mmC15砼垫层(不设分格缝)、水泥砂浆粘贴600×600mm地砖,120mm高地砖踢脚线。一门洞尺寸见图,另一门洞尺寸为1600×2700mm,台阶踢面高为250mm。试根据江苏04建筑与装饰工程计价表,计算图示内容的分部分项工程费。(图示单位为mm)(人、材、机价格及费率标准依据 2004江苏省建筑工程计价表,不调整。) 台阶、坡道、散水平面示意图 二、按江苏省04计价表的计算规则计算图所示现浇框架结构有关的工程量及相应项目的费用。柱截面:500×500mm、L1截面:250×500mm,L2截面:300×600mm(砼的标号为C30,模板采用复合木模板,钢筋¢8 的理 论 重 量为0.395Kg/m,人、材、机价格及费率标准依据 2004江苏省建筑工程计价表,不调整。) 1、柱、梁 、板的砼体 积 2 2、柱、梁、板的模板 3、板的钢筋 4、浇筑脚手 有梁板配筋图 注:板厚为 120mm;分布筋为φ 8@500 三、某工程独立钢筋混凝土柱如图所示。按江苏省建筑与装饰工程计价表(2004)规则规定:现浇钢筋混凝土独立柱的浇捣脚手架以柱的结构周长加 3.60m 乘以柱高计算。试计算下列项目的工程量及相关费用。(1)挖土方(2)基坑打夯(3)基坑回填(4)C10 砼基础垫层(5)独立基础(6)柱体积(7)柱的浇捣脚手(8)柱模板。请编制与上述内容相关的分部分项工程量清单造价。砼的标号为 C30,模板采用复合木模板,(包括清单子目、清单工程量、施工工程量及对应的综合单价。人、材、机价格及费率标准依据 2004江苏省建筑工程计价表,不调整。) 3 四、根据下表描述的项目工作内容,进行计价表子目的选套,确定出对应子目的综合单价(有换算的列出简要换算过程)并求出合价。 序 号 项目工作内容 计价表编号 计量单位 数量 有换算的列出简要换算过程 综合单价 合价 1 某 基 坑 深4.5 米 的 三类干土,采用 斗 容 量0.8m 3 的 挖 4 掘机反铲挖土3500 m3并装车,人工修整边坡200 m3 2 用M7.5 的混合砂浆砌筑硅酸盐空心砌块墙体 45 m3 3 某工程现浇构件中一级光圆Φ 8的钢 筋3.56吨 ,二 级 螺纹Φ 22的钢筋6.742吨,三级带肋Φ10的钢 筋2.58吨 4 某直形现浇楼梯,其水 5 平...

1、当您付费下载文档后,您只拥有了使用权限,并不意味着购买了版权,文档只能用于自身使用,不得用于其他商业用途(如 [转卖]进行直接盈利或[编辑后售卖]进行间接盈利)。
2、本站所有内容均由合作方或网友上传,本站不对文档的完整性、权威性及其观点立场正确性做任何保证或承诺!文档内容仅供研究参考,付费前请自行鉴别。
3、如文档内容存在违规,或者侵犯商业秘密、侵犯著作权等,请点击“违规举报”。

碎片内容

工程造价员考试题库(土建)

确认删除?
VIP
微信客服
  • 扫码咨询
会员Q群
  • 会员专属群点击这里加入QQ群
客服邮箱
回到顶部