电脑桌面
添加小米粒文库到电脑桌面
安装后可以在桌面快捷访问

镇海炼化20万吨年聚丙烯工程变电所受送电方案

镇海炼化20万吨年聚丙烯工程变电所受送电方案_第1页
1/27
镇海炼化20万吨年聚丙烯工程变电所受送电方案_第2页
2/27
镇海炼化20万吨年聚丙烯工程变电所受送电方案_第3页
3/27
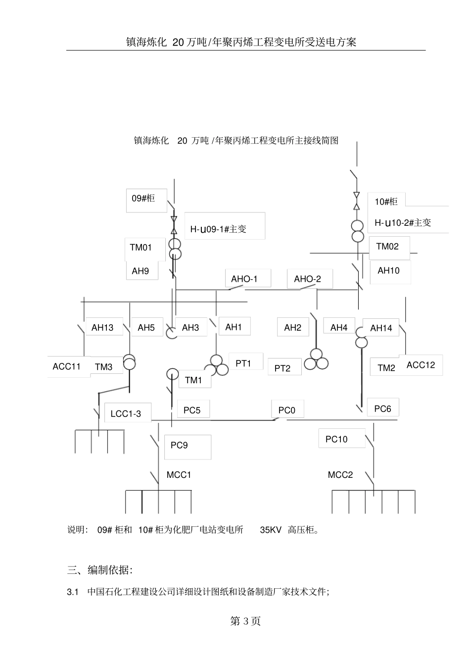
镇海炼化 20 万吨/年聚丙烯工程变电所受送电方案第1页目录一、编制说明第 2 页二、工程概况第 2 页三、编制依据第 4 页四、参加初送电设备及相关参数第 4 页五、初送电组织体系及分工第 5 页六、初受送电前必须具备的条件第 6 页七、初送电程序第 6 页八、送电前的全面检查第 7 页九、受送电第 10 页十、安全及文明施工的要求第 13 页十一:主要仪器、仪表、工具第 14 页附录一:安全技术主要危险源识别表镇海炼化 20 万吨/年聚丙烯工程变电所受送电方案第2页一、编制说明:本技术文件为上海赛科石油化工责任有限公司(SECCO ) 90 万吨乙烯装置2、 3# 变电所受送电施工技术措施,为确保所有受送电工作有组织及安全地进行和受送电操作一次成功,特编制本方案,各相关部门遵照执行。如方案中有未提及操作规程,而在实际操作过程中碰到的事项应按照有关标准、规范进行操作。二、工程概况:上海赛科90 万吨乙烯装置安装工程的电气工程由中国石化工程建设公司设计,上海赛科石油化工有限责任公司建设,齐鲁石化工程建设监理公司监理,中国石化宁波工程有限公司承接二标段全部电气安装施工任务。本次变电所受送电工作包括装置区2、 3 变电所受电全部内容。2# 变电所内设置两台10/6KV 3750KVA电力变压器,四台10/0.4KV 2500KVA电力变压器,3# 变电所内设置四台10/0.4KV 2500KVA电力变压器,两个变电所电源均由装置区内 1# 变电所SWGR-10KV-011/A/B引入,整个电力系统的正常运行方式为两段进线分别给其母线供电,母联断路器在正常情况下处于分闸状态。为了进行设备的检修和防止不必要的停电,需要进行倒负荷操作,为保证供电的连续性,母联将合上,两段母线并列运行,但在非常短的时间后(通常小于1 分钟),一侧的进线柜被分开。系统的运行方式变为一个进线带所有的两段母线。这种运行方式在设备检修完成另一段进线供电恢复时被切换成正常的两段进线分别给本段母线供电,母联分闸的方式。在一段进线上侧有故障,自动切换装置将动作,切开故障的线路,自动合上母联,当另一段供电恢复正常的时候。正常方式的运行方式将被恢复,进线将合上,两段母线并列运行,但在非常短的时间后(通常为小于1 分钟),母联开关将被分开。每个变电所内使用一套完善的SCADA系统,实现对整个变电所高压开关及低压进线母联开关操作控制、各类信号输出、报警监视、系统通讯等。本变电所主接线简图如下:(见下页)镇海炼化 20 ...

1、当您付费下载文档后,您只拥有了使用权限,并不意味着购买了版权,文档只能用于自身使用,不得用于其他商业用途(如 [转卖]进行直接盈利或[编辑后售卖]进行间接盈利)。
2、本站所有内容均由合作方或网友上传,本站不对文档的完整性、权威性及其观点立场正确性做任何保证或承诺!文档内容仅供研究参考,付费前请自行鉴别。
3、如文档内容存在违规,或者侵犯商业秘密、侵犯著作权等,请点击“违规举报”。

碎片内容

镇海炼化20万吨年聚丙烯工程变电所受送电方案

确认删除?
VIP
微信客服
  • 扫码咨询
会员Q群
  • 会员专属群点击这里加入QQ群
客服邮箱
回到顶部