电脑桌面
添加小米粒文库到电脑桌面
安装后可以在桌面快捷访问

直线加速器超厚墙、板施工方案

直线加速器超厚墙、板施工方案_第1页
1/27
直线加速器超厚墙、板施工方案_第2页
2/27
直线加速器超厚墙、板施工方案_第3页
3/27
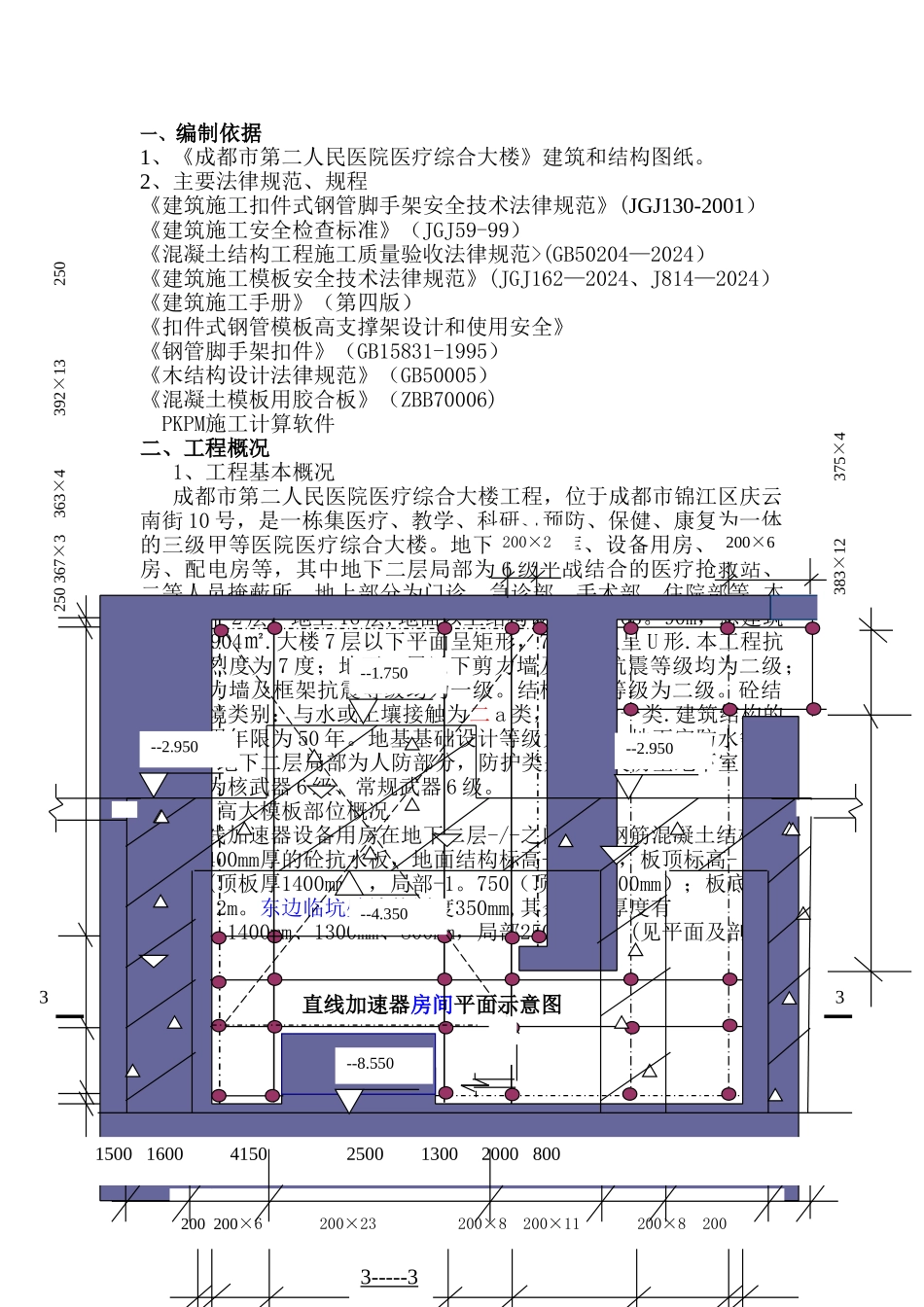
一、编制依据1、《成都市第二人民医院医疗综合大楼》建筑和结构图纸。2、主要法律规范、规程《建筑施工扣件式钢管脚手架安全技术法律规范》(JGJ130-2001)《建筑施工安全检查标准》(JGJ59-99)《混凝土结构工程施工质量验收法律规范>(GB50204—2024)《建筑施工模板安全技术法律规范》(JGJ162—2024、J814—2024)《建筑施工手册》(第四版)《扣件式钢管模板高支撑架设计和使用安全》《钢管脚手架扣件》(GB15831-1995)《木结构设计法律规范》(GB50005)《混凝土模板用胶合板》(ZBB70006)PKPM施工计算软件二、工程概况1、工程基本概况成都市第二人民医院医疗综合大楼工程,位于成都市锦江区庆云南街 10 号,是一栋集医疗、教学、科研、预防、保健、康复为一体的三级甲等医院医疗综合大楼。地下室为车库、设备用房、药品库房、配电房等,其中地下二层局部为 6 级平战结合的医疗抢救站、二等人员掩蔽所。地上部分为门诊、急诊部、手术部、住院部等.本工程地下 2 层,地上 16 层,地面以上结构设计高度 63。90m,总建筑面积 58904㎡.大楼 7 层以下平面呈矩形,7 层以上呈 U 形.本工程抗震设防烈度为 7 度;地下一层以下剪力墙及框架抗震等级均为二级;以上剪力墙及框架抗震等级均为一级。结构安全等级为二级。砼结构的环境类别:与水或土壤接触为二 a 类,其余为一类.建筑结构的设计使用年限为 50 年。地基基础设计等级为乙级。地下室防水等级为二级.地下二层局部为人防部分,防护类别为甲类防空地下室;抗力级别为核武器 6 级、常规武器 6 级。2、高大模板部位概况直线加速器设备用房在地下二层-/-之间,为钢筋混凝土结构,基础为400mm厚的砼抗水板,地面结构标高—8.550,板顶标高-2。950(顶板厚1400mm),局部-1。750(顶板厚2600mm);板底距地面4。2m。东边临坑壁墙体厚度350mm,其余墙体厚度有1500mm、1400mm、1300mm、800mm,局部2500mm厚。(见平面及剖面图)直线加速器房间平面示意图1400mm厚顶板的恒荷载1.4m×25 kN/m3=35 kN/m2;2600mm厚顶板的恒荷载2。6m×25 kN/m3=65 kN/m2;33250 367×3 363×4 392×13 250200 200×6 200×23 200×8 200×11 200×8 200 383×12 375×4 200×2200×61500 1600 4150 2500 1300 2000 800--8.550--2.950--2.950--1.750--4.3503-----3以上数值远远大于15 kN/m2,所以必须进行验算。三、构件支撑体系的选择1、直线加速器的现浇砼顶板支撑体系的选择选...

1、当您付费下载文档后,您只拥有了使用权限,并不意味着购买了版权,文档只能用于自身使用,不得用于其他商业用途(如 [转卖]进行直接盈利或[编辑后售卖]进行间接盈利)。
2、本站所有内容均由合作方或网友上传,本站不对文档的完整性、权威性及其观点立场正确性做任何保证或承诺!文档内容仅供研究参考,付费前请自行鉴别。
3、如文档内容存在违规,或者侵犯商业秘密、侵犯著作权等,请点击“违规举报”。

碎片内容

直线加速器超厚墙、板施工方案

确认删除?
VIP
微信客服
  • 扫码咨询
会员Q群
  • 会员专属群点击这里加入QQ群
客服邮箱
回到顶部