电脑桌面
添加小米粒文库到电脑桌面
安装后可以在桌面快捷访问

工程建筑施工工程防水节点做法详图

工程建筑施工工程防水节点做法详图_第1页
1/7
工程建筑施工工程防水节点做法详图_第2页
2/7
工程建筑施工工程防水节点做法详图_第3页
3/7
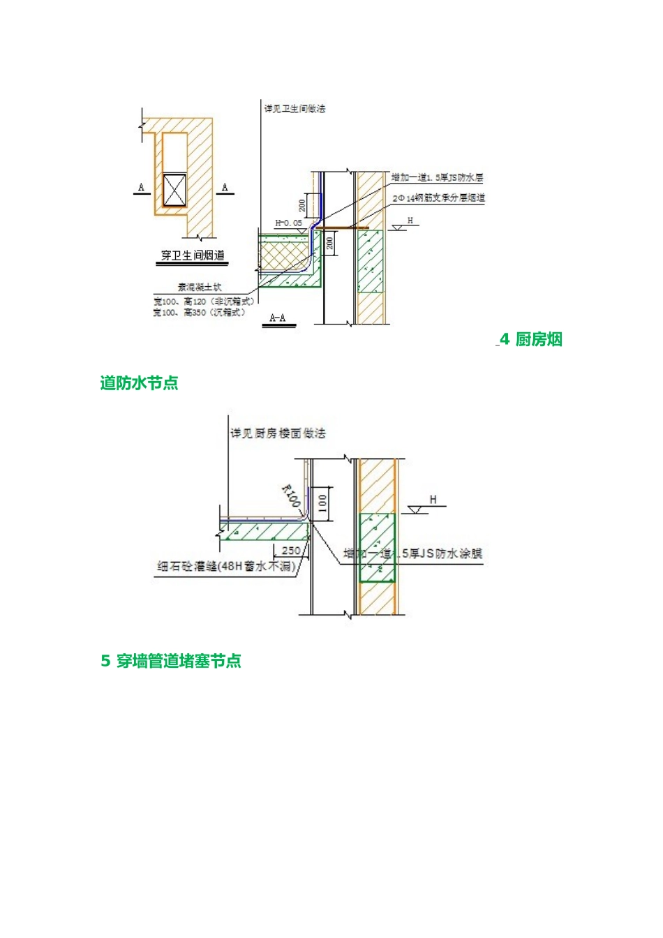
建筑施工防水节点做法详图 1 管道穿楼板堵塞2 地漏口堵塞节点3 穿卫生间烟道防水节点 4 厨房烟道防水节点5 穿墙管道堵塞节点6 穿墙螺杆洞堵塞节点 7 混凝土雨棚/空调板防水节点8 预制空调管孔洞大样9 外墙抹灰分格缝、滴水做法节点10 屋面落水口侧排地漏节点 11 屋面排气管设置大样(上人屋面根据使用需要可采纳盲沟做法)12 外墙铝合金窗防渗漏节点 13 烟道出屋面防水节点14 阳台花池防水做法15 女儿墙、分格缝节点16 管道穿越楼板、屋面板预埋套管做

1、当您付费下载文档后,您只拥有了使用权限,并不意味着购买了版权,文档只能用于自身使用,不得用于其他商业用途(如 [转卖]进行直接盈利或[编辑后售卖]进行间接盈利)。
2、本站所有内容均由合作方或网友上传,本站不对文档的完整性、权威性及其观点立场正确性做任何保证或承诺!文档内容仅供研究参考,付费前请自行鉴别。
3、如文档内容存在违规,或者侵犯商业秘密、侵犯著作权等,请点击“违规举报”。

碎片内容

工程建筑施工工程防水节点做法详图

文旅传媒+ 关注
实名认证
内容提供者

传播文化,成就未来

确认删除?
VIP
微信客服
  • 扫码咨询
会员Q群
  • 会员专属群点击这里加入QQ群
客服邮箱
回到顶部