电脑桌面
添加小米粒文库到电脑桌面
安装后可以在桌面快捷访问

弧形铝板幕墙施工工法

弧形铝板幕墙施工工法_第1页
1/9
弧形铝板幕墙施工工法_第2页
2/9
弧形铝板幕墙施工工法_第3页
3/9
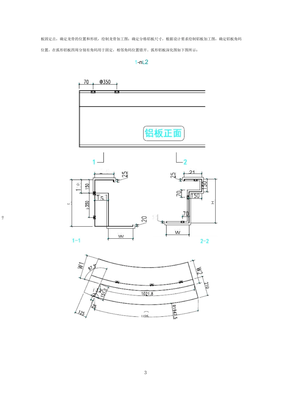
1弧形铝板外墙施工工法1、前言铝板幕墙在实际的工程应用中越来越多,铝板轻量化的材质有效减轻了建筑的负荷,对于高层、超高层建筑是很好的选择,同时铝板防水、防污、防腐蚀性能优良,保证了建筑外表面持久长新;铝板色彩的多样性及可以组合加工成不同的外观形状,拓展了设计师的设计空间;较高的性能价格比,易于维护,使用寿命长,符合建设方的要求。本工程为旧楼改造工程,心海假日丰嘉园 11 号楼造型多样,存在大量的弧形造型,采用铝板幕墙能很好地与现场相结合,但弧形铝板安装存在问题,如连接点位置问题等,现场人员通过对现场现有结构的分析,深化龙骨位置,开展“弧形铝板外墙施工工法”的研究,地面制作龙骨,采用角钢分段单边切割,进行压弯,其形状近似圆弧形,横向龙骨直接与主体结构使用胀栓连接,竖龙骨为方钢,上下两端采用同截面尺寸的方钢垂直焊接,上下方钢作为转接件,方钢截面与埋板进行焊接,铝板幕墙龙骨结构顺着弧形主体结构。本工程搭设脚手架成本太高,危险系数大,采用吊篮施工。2、工法特点(1)本工法沿弧形结构排布龙骨解决弧形铝板连接点问题。(2)地面加工完成龙骨,在高空与埋板完成焊接,施工方便。(3)采用吊篮施工,灵活简单,不破坏原有结构。3、适用范围本工法适用于主体结构和幕墙形状为异形、弧形的幕墙施工工程。4、工艺原理确定现场施工机具使用吊篮,深化龙骨排布图,确定埋板的位置,安装后置埋件;地面加工龙骨,高空焊接;现场复核弧形尺寸,深化设计,绘制铝板加工图,确定铝板编号;要求铝板厂按照铝板加工图加工弧形铝板,铝板与铝板连接处采用一边满焊一边断焊,保证弧形铝板加工质量。弧形铝单板安装应按板块分配图上板号安置就位,铝板先进行试安装,检查相邻两块角码是否错开,试装检查其水平度、垂直度,铝板角码用燕尾钉与主副2龙骨连接固定。5、施工工艺流程及操作要点5.1 施工工艺流程图 5-1 施工工艺流程图5.2 操作要点5.2.1 现场复核尺寸本工程属于旧楼改造,很多图纸资料已经遗失,设计施工图尺寸与现场存在不符,对现场尺寸进行复核是本工程的关键性第一步。5.2.2 深化图纸针对现场实际情况,先对弧形铝板进行分格,确定明胶缝位置,确定弧形铝321板固定点,确定龙骨的位置和形状,绘制龙骨加工图;确定分格铝板尺寸,根据设计要求绘制铝板加工图,确定铝板角码位置,在弧形铝板四周分别有角码用于固定,相邻角码位置错开。弧形铝板深化图如下图所示:1-nL2i 5HWoL◎21...

1、当您付费下载文档后,您只拥有了使用权限,并不意味着购买了版权,文档只能用于自身使用,不得用于其他商业用途(如 [转卖]进行直接盈利或[编辑后售卖]进行间接盈利)。
2、本站所有内容均由合作方或网友上传,本站不对文档的完整性、权威性及其观点立场正确性做任何保证或承诺!文档内容仅供研究参考,付费前请自行鉴别。
3、如文档内容存在违规,或者侵犯商业秘密、侵犯著作权等,请点击“违规举报”。

碎片内容

弧形铝板幕墙施工工法

确认删除?
VIP
微信客服
  • 扫码咨询
会员Q群
  • 会员专属群点击这里加入QQ群
客服邮箱
回到顶部