电脑桌面
添加小米粒文库到电脑桌面
安装后可以在桌面快捷访问

联合厂房砌体施工挤塑交底

联合厂房砌体施工挤塑交底_第1页
1/6
联合厂房砌体施工挤塑交底_第2页
2/6
联合厂房砌体施工挤塑交底_第3页
3/6
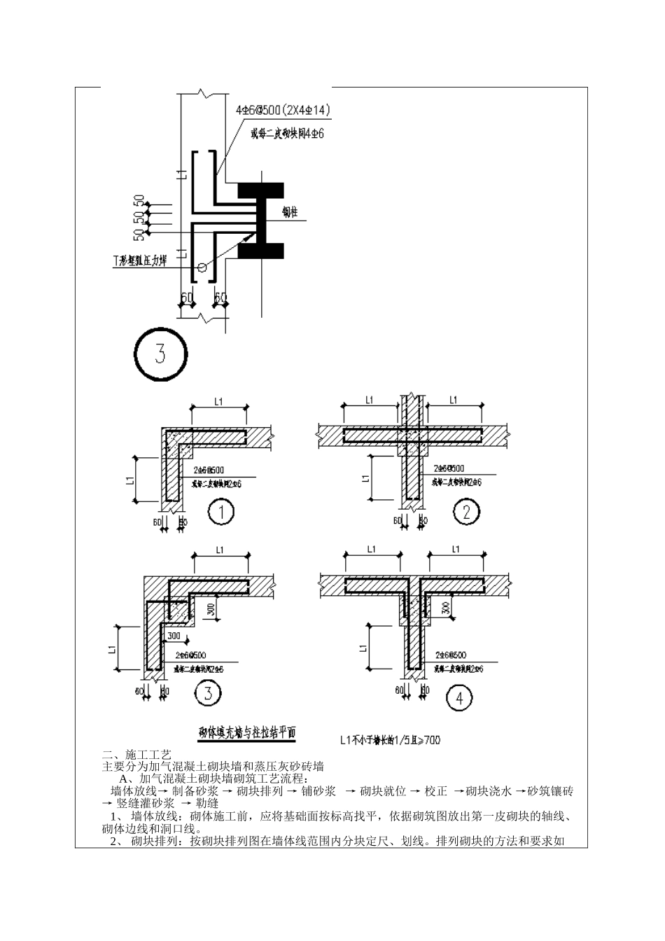
砌体施工技术交底记录表 B2 编号 工程名称东风本田第二工厂 AF/VQ/AE 联合厂房交底时间2025 年 8 月 5 日交底内容:一、 设计要求1、±0.000 以下墙体采纳 MU15 灰砂砖,M7.5 水泥砂浆砌筑;所有内外墙体均在标高-0.060m处做 20 厚 1:2 水泥砂浆加相当于水泥重量 5%防水剂的防潮层,当室内地面不在同一标高时,靠填土一侧应做垂直防潮层(材料和厚度不变)。2、车间外围护墙体 1.2m 标高以下及车间外贴卫生间采纳 240 厚灰砂砖墙体,M5 混合砂浆砌筑。3、除二层辅房内部隔墙外,厂房内部生产辅助用房及卫生间、楼梯间墙体采纳标号为 50 的200 厚加气混凝土砌块墙,M5 混合砂浆砌筑。设置伸缩缝间距 80m,缝宽 70mm。4、车间中间区域的顶面为钢筋混凝土板的内部辅房墙体为 240mm 厚灰砂砖墙体,M5 混合砂浆砌筑。5、墙柱之间的拉结设置情况。二、施工工艺主要分为加气混凝土砌块墙和蒸压灰砂砖墙A、加气混凝土砌块墙砌筑工艺流程: 墙体放线→ 制备砂浆 → 砌块排列 → 铺砂浆 → 砌块就位 → 校正 →砌块浇水 →砂筑镶砖 → 竖缝灌砂浆 → 勒缝 1、 墙体放线:砌体施工前,应将基础面按标高找平,依据砌筑图放出第一皮砌块的轴线、砌体边线和洞口线。 2、 砌块排列:按砌块排列图在墙体线范围内分块定尺、划线。排列砌块的方法和要求如下: 1)砌块砌体在砌筑前,应根据工程设计施工图,结合砌块的品种、规格、绘制砌体砌块的排列图,经审核无误,按图排列砌块。 2)砌块排列应从地基或基础面、±0.00 面排列,排列时尽可能采纳主规格的砌块,砌体中主规格砌块应占总量的 75%~80%。 3)砌块排列上、下皮应错缝搭砌,搭砌长度一般为砌块的 1/2,不得小于砌块长度的 1/3。 4)外墙转角及纵横墙交接处,应将砌块分皮咬槎,交错搭砌,假如不能咬槎时,按设计要求实行其它的构造措施;砌体垂直缝与门窗洞口边线应避开同缝,且不得采纳砖镶砌。 5) 砌体水平灰缝厚度一般为 15mm,砌块墙与后砌隔墙交接处布置钢筋网片,加钢筋网片的砌体,水平灰缝厚度为 20~25mm,垂直灰缝宽度为 20mm。6)砌块排列尽量不镶砖或少镶砖,必须镶砖时,应用整砖平砌,且尽量分散,镶砌砖的强度不应小于砌块强度等级。 7)砌块墙体与结构构件位置有矛盾时,应先满足构件布置。 3、制配砂浆:按设计要求的砂浆品种、强度制配砂浆,配合比应由试验室确定,采纳重量比,计量精度为水泥±2%,砂、灰膏控...

1、当您付费下载文档后,您只拥有了使用权限,并不意味着购买了版权,文档只能用于自身使用,不得用于其他商业用途(如 [转卖]进行直接盈利或[编辑后售卖]进行间接盈利)。
2、本站所有内容均由合作方或网友上传,本站不对文档的完整性、权威性及其观点立场正确性做任何保证或承诺!文档内容仅供研究参考,付费前请自行鉴别。
3、如文档内容存在违规,或者侵犯商业秘密、侵犯著作权等,请点击“违规举报”。

碎片内容

联合厂房砌体施工挤塑交底

确认删除?
VIP
微信客服
  • 扫码咨询
会员Q群
  • 会员专属群点击这里加入QQ群
客服邮箱
回到顶部