电脑桌面
添加小米粒文库到电脑桌面
安装后可以在桌面快捷访问

桥梁工程连续刚构梁施工技术

桥梁工程连续刚构梁施工技术_第1页
1/19
桥梁工程连续刚构梁施工技术_第2页
2/19
桥梁工程连续刚构梁施工技术_第3页
3/19
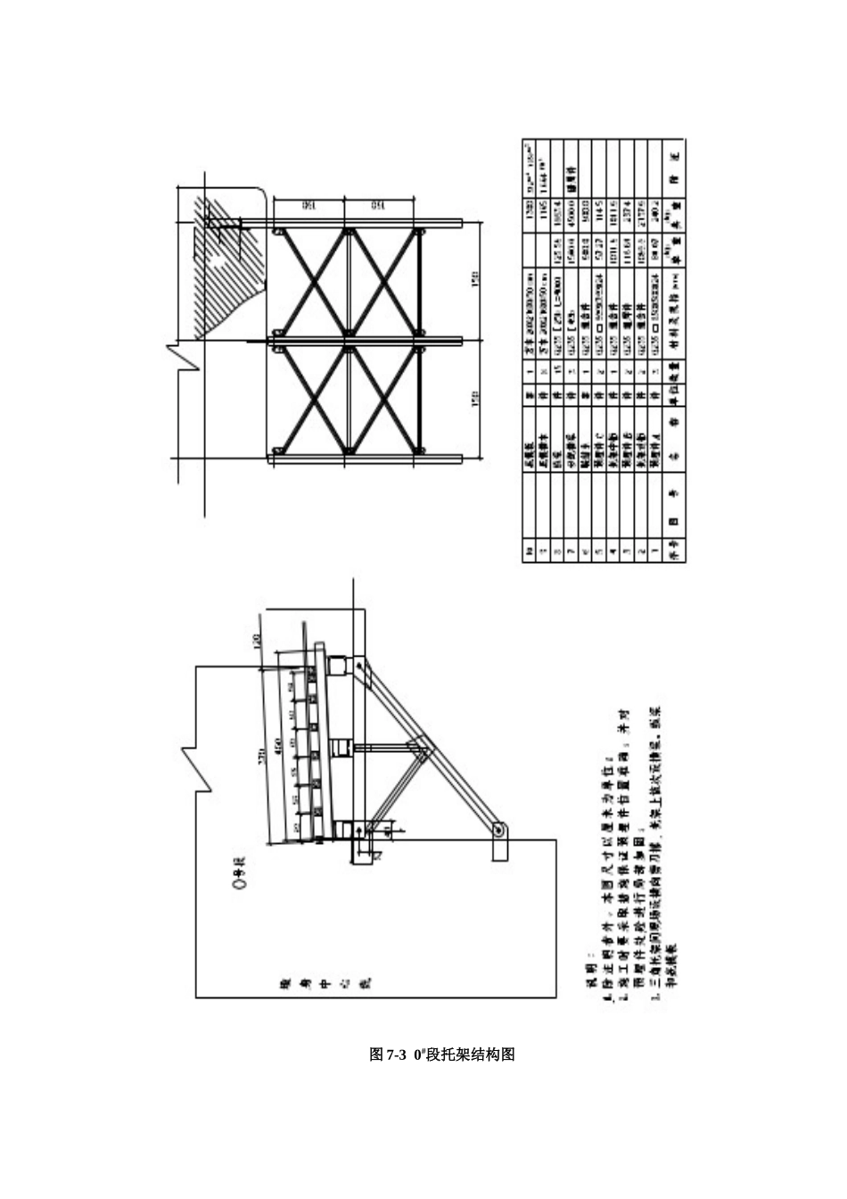
七、 连续刚构梁施工技术 一、工艺流程 连续刚构梁施工工艺框图见图 7-1。 二、0#节段施工 墩身顺桥向宽 4.5m,0#节段顺桥向长 12m,两侧各悬出 3.75m,墩顶刚构梁梁高 10m,0#节段梁体横隔板与墩身刚性连接,梁体内钢筋密集,三向预应力管道纵横竖交错,结构复杂,是刚构梁施工的一大难点,它对承重支架、模板制作、安装、支撑及混凝土浇筑提出了较高要求。待墩身砼达到设计强度的 80%后,即可在墩顶安装 0#段支撑托架,准备 0#段的施工。由于梁体较高,一次立模浇筑成型难度较大,按设计要求 0#段分为两次浇筑,第一次浇筑底板混凝土,待底板混凝土达到设计强度的 80%,能与墩身托架共同受力时,浇筑剩余部分,即腹板、横隔板和顶板,两次浇筑的连接处按施工缝处理。0#节段施工工艺框图见图 7-2。 (一)托架托架采纳自制加工型钢杆件,墩身顶部预埋钢板做牛腿,托架设计根据 0#段悬臂浇筑段梁长及工作平台的要求确定。顺桥向托架主桁每侧 5 片,片间距 1.5m,长度 6m,横桥向托架主桁每侧 2 片,片间距2m。墩身上部预埋件采纳 2δ16 竖向钢钣直接钻孔与水平杆件连接,下部通过预埋 T 型钢钣及[32c 槽钢,焊接节点板与杆件连接。为确保安全,托架预埋件处采纳加设预埋拉筋,增设钢筋网片等方法进行局部加固。为便于拆模,在横向分配梁下设 25cm 高的铁凳子,施工完毕后割掉铁凳子即可将模板拆除,0#段托架结构详见图 7-3。安装托架各杆件时,先采纳销子临时连接,拼装好后,再焊接加固固定,故不考虑等载预压。(二)0#节段模板 0#节段底板模板采纳墩身大块钢模板,腹板外模板、翼板底模板等采纳钢框胶合板大模板,这种模板面板采纳 12mm 厚的高强胶合板,骨架采纳特制的钢框和型钢,钢框和型钢及骨架均采纳螺栓联接成装配式的大模板。与墩顶固结部分(4.5m)外模利用墩身模板改装而成,内模利用钢木组合模板,木排架支撑。悬臂浇筑部分(3.75m)内外侧模均利用挂篮内外侧模,底模采纳大块钢模板。根据工期要求 1#~4#墩 0#段各配备一套支架及模板。(三)钢筋及预应力管道连续刚构梁纵向采纳全预应力设计,横截面采纳部分预应力设计。0#段内钢筋错综复杂,重复工艺流程完成 1# ~ 2# 3# ~ 4# 及边跨的合拢段循环工艺流程悬臂浇筑各节段选定配合比制作砼试件钢筋加工管道加工制作合格模板加工制作张拉设备校正、试验钢绞线检验锚具检验压浆机具准备强度试压钢绞线制作拼装墩旁托架托架预压绑扎底板、...

1、当您付费下载文档后,您只拥有了使用权限,并不意味着购买了版权,文档只能用于自身使用,不得用于其他商业用途(如 [转卖]进行直接盈利或[编辑后售卖]进行间接盈利)。
2、本站所有内容均由合作方或网友上传,本站不对文档的完整性、权威性及其观点立场正确性做任何保证或承诺!文档内容仅供研究参考,付费前请自行鉴别。
3、如文档内容存在违规,或者侵犯商业秘密、侵犯著作权等,请点击“违规举报”。

碎片内容

桥梁工程连续刚构梁施工技术

确认删除?
VIP
微信客服
  • 扫码咨询
会员Q群
  • 会员专属群点击这里加入QQ群
客服邮箱
回到顶部