电脑桌面
添加小米粒文库到电脑桌面
安装后可以在桌面快捷访问

智能家居系统安装方案VIP专享VIP免费

智能家居系统安装方案_第1页
1/76
智能家居系统安装方案_第2页
2/76
智能家居系统安装方案_第3页
3/76
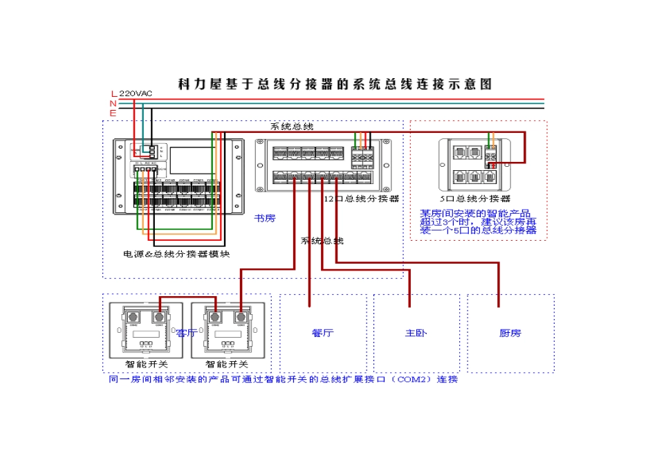
科力屋智能家居系统一、系统产品安装接线概述1、系统连接示意图2、功能和布线方案确定3、布线、预埋和线路校验4、安装接线注意事项1、系统连接示意图科力屋智能家居系列产品安装虽然比较简便,但为了少走弯路,需要了解系统结构组成和线路连接方式(请参考下面的系统连接示意图),除此之外还要求严格遵循下列几个主要步骤:(1)功能和布线方案确定;(2)布线、预埋及线路校验;(3)产品安装与接线。科力屋智能家居系统属于布线型家居系统,通讯总线采用一根8芯(4×2×0.5平方毫米)的标准宽带通讯双绞线(总共4对双绞线)。智能产品采用水晶头插接的方式与通讯总线连接,总线水晶头按相同的标准宽带网线(568B方式)排列线序制作。注:系统通讯用到其中的6芯线(分别对应8P8C水晶头的3、4、5、6、7、8号管脚):其中四芯传输12V交流电源(采用双线供电模式:3、4号线为电源AC-,5、6号线为电源AC+),另两芯传输信号(7号线为信号L端,8号线为信号H端)。系统总线连接注意事项:(1)系统电源(墙装式)与总线分接器之间,以及总线分接器与另一总线分接器之间要采用端子连接,一定要保证端子号的对应,如系统电源端子的“H、L、OUT(+、-)”要分别接到总线分接器端子的“H、L、AC(+、-)”;如果采用的是电源&总线分接器模块,则系统电源与总线分接器已合为一体(二者之间不再需要外部连线),非常非常的方便了,强烈推荐使用!(2)总线分接器与智能产品之间采用水晶头连接,但要保证每个水晶头的制作方法一样;(3)系统总线的分接如果不采用总线分接器,除了保证接入产品的每个水晶头的制作方法一样外,还要求总线的分接处要保证每根线对应并接并保证线间绝缘。2、功能和布线方案确定用户的功能需求在订购产品前就已经确定,关键是布线方案在布线前必须明确。主要考虑如下几点:(1)220V交流电源的走线跟常规相同;对于别墅或多楼层结构的房子,需安装两个或多个系统电源(若照明电源存在三相混杂时,必须安装多个系统电源);(2)通讯总线的走线原则是从系统电源到总线分接器,再分接到每个智能产品;系统电源到总线分接器或两个总线分接器之间的通讯主干线最好采用0.8~1平方毫米的四芯电缆,或采用四对八芯双绞线,每对并接解决。(3)音视频和音视频共享系统的布线:音视频交换机的音视频输出线通过埋墙安装的音视频接线盒集中接线,再从音视频接线盒敷设音频输出线和视频线到每个房间的音箱/喇叭和视频插座。(4)强烈建议用户选购弱电箱,把电源&总线分接器模块、电脑网络控制器模块、电话远程控制器模块、日程管理器模块、传感器接口模块等集中放置于弱电箱内,这非常方便系统的布线和日后的维护;另外,如果弱电箱有富余空间,还可以考虑闭路电视线、电话线、宽带数据线等进线到弱电箱,再由弱电箱分配到各个房间的墙上相应插座处。返回3、布线、预埋和线路校验线路布线通常采用暗埋方式,通讯总线布线要求与强电分离。科力屋绝大部分产品安装要求的预埋盒有两种标准规格,一种是86底盒,另一种是146底盒,预埋盒要求底深为45mm,安装要求横平竖直,盒口与墙面齐平,盒口安装高度要求不得突出墙面;对于弱电箱和音视频接线盒,请参考其实际尺寸开挖墙面。线路敷设完成后,首先需要进行线路校验,避免线路出现中间断路或短路现象。返回4、安装接线注意事项警告:强电接线前必须先断电,并严禁强电触碰总线水晶头导致产品损坏!电脑网络控制器的系统总线必须接入COM(或COM1、COM2)口,严禁接入LAN口,否则会损坏设备!智能开关的负载接线方法和传统开关相同;通讯总线采用4×2×0.5平方毫米的8芯宽带通讯双绞线。智能产品采用水晶头插接的方式与通讯总线连接,总线水晶头按相同的标准宽带网线(568B)排列线序制作。注:如需接入第三方传感器(门磁、燃气传感器等)或干接点信号请订购带传感器接口的多功能面板(或智能开关),因为第三方传感器(或干接点信号)不能直接与通讯总线连接,而需通过多功能面板(或智能开关)的6P4C(RJ11)传感器接口接入系统;传感器接线详见“安防传感器安装接线”,带传感器接口的多功能面板接入普通开关面板干接点...

1、当您付费下载文档后,您只拥有了使用权限,并不意味着购买了版权,文档只能用于自身使用,不得用于其他商业用途(如 [转卖]进行直接盈利或[编辑后售卖]进行间接盈利)。
2、本站所有内容均由合作方或网友上传,本站不对文档的完整性、权威性及其观点立场正确性做任何保证或承诺!文档内容仅供研究参考,付费前请自行鉴别。
3、如文档内容存在违规,或者侵犯商业秘密、侵犯著作权等,请点击“违规举报”。

碎片内容

智能家居系统安装方案

确认删除?
VIP
微信客服
  • 扫码咨询
会员Q群
  • 会员专属群点击这里加入QQ群
客服邮箱
回到顶部