电脑桌面
添加小米粒文库到电脑桌面
安装后可以在桌面快捷访问

变电站设备技术台帐VIP免费

变电站设备技术台帐_第1页
1/56
变电站设备技术台帐_第2页
2/56
变电站设备技术台帐_第3页
3/56
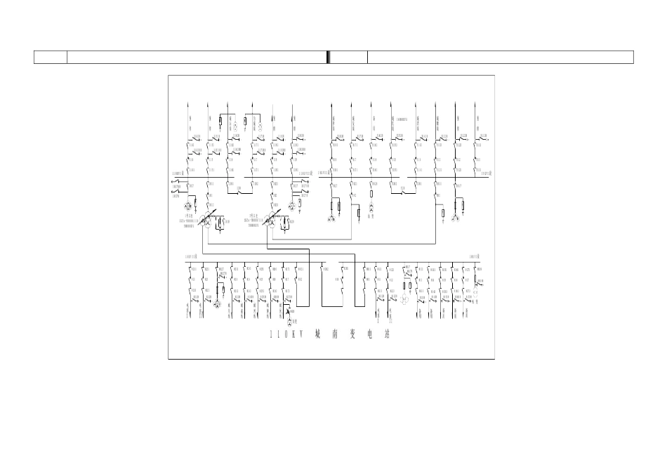
城南110KV变电站设备技术总台帐目录页码名称页码名称1-2页编制说明23页10KV电容Ⅰ单元3页110KV城南变电站电气主接线图24页10KV电容Ⅱ单元4页变压器单元25页10KV电容Ⅱ单元26页10KV城川线#913单元5页母线单元27页10KV城南线#914单元6页110KV城坛线#116单元28页10KV城河线#915单元7页110KV城向线#117单元29页10KV城部线#916单元1#主变单元30页10KV城民线#917单元1#主变单元31页10KVⅡ段母线PT单元8页2#主变单元32页10KV母联#930单元9页2#主变单元33-36页二次设备单元10页110KVⅠ段母线PT单元11页110KVⅡ段母线PT单元110KV母联#130单元12页35KV站变单元13页35KVⅠ段母线PT单元14页35KVⅡ段母线PT单元15页35KV母联#530单元16页35KV城犍线#513单元17页35KV城清线#514单元18页35KV城玖线#515单元19页35KV备用线#516单元20页35KV城发线#517单元21页35KV城孝线#518单元22页10KV电容Ⅰ单元110KV城南变电站设备技术台帐(一次设备)设备类别设备名称设备型号主要铭牌参数设备厂家出厂日期投运日期变压器#1主变SSZ10-50000/110额定容量:50000/50000/25000KVA额定频率:50HZ相数:三相额定电压:110/38.5/10.5KV额定电流:262.4/749.8/1374.6A使用条件:户外冷却方式:ONAN联结组标号:YN.yn0d11额定绝缘水平:LⅠ480AC200-LⅠ325AC140/LⅠ200AC85/LⅠ75AC35器身重:40t上节油箱重:6.0t油重:21t运输重:64.0t总重82.5t调压范围:110±8x1.25%KV/38.5±2x2.5%KV出厂序号:1203011运行方式:高-低额定容量:25000KVA负载损耗80.92KW50000KVA短路阻抗:18.4%运行方式:高-中额定容量:50000KVA负载损耗152.9KW50000KVA短路阻抗:10.46%运行方式:中-低额定容量:25000KVA负载损耗65.69KW50000KVA短路阻抗:6.32%空载损耗:34.65KW空载电流:0.27%主变套管式电流互感器:高压中性点LRB-60K1-K210P10100/510VAK1-K310P15200/515VAK1-K410P20300/520VAK5-K610P10100/510VAK5-K710P15200/515VAK5-K810P20300/520VA四川东方变压器集团2012.52013.6#2主变SSZ10-50000/110额定容量:50000/50000/25000KVA额定频率:50HZ相数:三相额定电压:110/38.5/10.5KV额定电流:262.4/749.8/1374.6A使用条件:户外冷却方式:ONAN联结组标号:YN.yn0d11额定绝缘水平:LⅠ480AC200-LⅠ325AC140/LⅠ200AC85/LⅠ75AC35器身重:43.2t上节油箱重:4.45t油重:21.5t运输重:70.0t总重86.8t调压范围:110±8x1.25%KV/38.5±2x2.5%KV出厂序号:07-80006运行方式:高-低额定容量:25000KVA负载损耗142.763KW50000KVA短路阻抗:18.3%运行方式:高-中额定容量:50000KVA负载损耗156.825KW50000KVA短路阻抗:四川东方变压器集团2008.82008.109.89%运行方式:中-低额定容量:25000KVA负载损耗68.249KW50000KVA短路阻抗:6.28%空载损耗:34.722KW空载电流:0.32%主变套管式电流互感器:高压中性点LRB-60100~300/5A10P20级20VA35KV站变SC9-80/35额定容量:80KVA额定频率:50HZ相数:三相使用条件:户内冷却方式:AN联结组标号:Yyn0短路阻抗:5.93%额定电压:35/0.4KV额定电流:1.32/115.5A绝缘水平:LI170AC70AC绕组绝缘耐热等级:F级极限温升:100K总重:880Kg出厂编号:GT0800215浙江广天变压器公司2008.12008.10说明:设备间隔设备名称设备型号主要铭牌参数设备厂家出厂日期投运日期母线悬式绝缘子XWP2-70自贡电磁厂2008.42008.10110KV母线LGJ-2402008.1035KV母线LMY-100100×102008.1010KV母线TMY-100100×102008.1010K穿墙套管CWWL-20/2000-210KV自贡汇东高压开关厂2008.52008.1035KV穿墙套管CWWL-35/630-235KV自贡汇东高压开关厂2008.52008.1035KV穿墙套管CWWL-35/1200-235KV自贡汇东高压开关厂2008.52008.10说明:设备间隔设备名称设备型号主要铭牌参数设备厂家出厂日期投运日期110KV坛城线#116断路器#116LW36-126W额定电压:126KV额定电流:3150A额定短路开断电流:40KA额定雷电冲击耐压(峰值):550KV额定线路充电开断电流:31.5A额定操作顺序:D-0.3S-CD-180S-CD额定SF6气体压力:0.6MPaSF6气体重量:10Kg总重:1300Kg出厂编号:2008010重庆百纳电气有限公司2008.42008.10隔离刀闸#1161GW4B-126W/630A126KV/630A操作...

1、当您付费下载文档后,您只拥有了使用权限,并不意味着购买了版权,文档只能用于自身使用,不得用于其他商业用途(如 [转卖]进行直接盈利或[编辑后售卖]进行间接盈利)。
2、本站所有内容均由合作方或网友上传,本站不对文档的完整性、权威性及其观点立场正确性做任何保证或承诺!文档内容仅供研究参考,付费前请自行鉴别。
3、如文档内容存在违规,或者侵犯商业秘密、侵犯著作权等,请点击“违规举报”。

碎片内容

变电站设备技术台帐

黄金书屋+ 关注
实名认证
内容提供者

爱好英语教学和互联网行业,热爱教育事业,兢兢业业

确认删除?
VIP
微信客服
  • 扫码咨询
会员Q群
  • 会员专属群点击这里加入QQ群
客服邮箱
回到顶部