电脑桌面
添加小米粒文库到电脑桌面
安装后可以在桌面快捷访问

che系列开环型矢量变频器-鞍山垣创工控设备公司,VIP免费

che系列开环型矢量变频器-鞍山垣创工控设备公司,_第1页
1/6
che系列开环型矢量变频器-鞍山垣创工控设备公司,_第2页
2/6
che系列开环型矢量变频器-鞍山垣创工控设备公司,_第3页
3/6
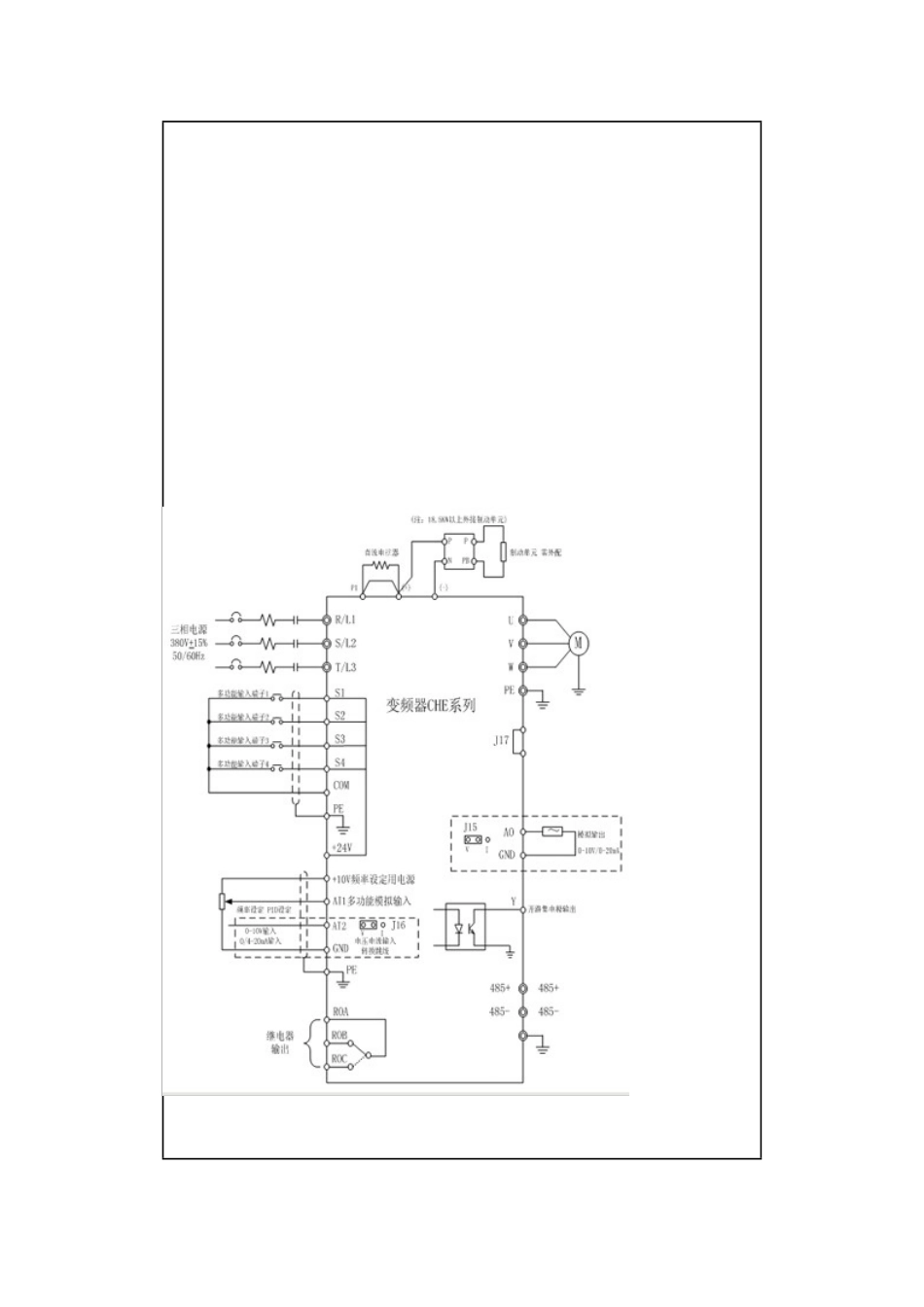
CHE系列开环型矢量变频器[:产品图片:][:产品详细:]一、真正的矢量控制CHE系列变频器采用DSP控制系统,完成真正的无速度传感器矢量控制(开环矢量控制),与V/F控制相比,矢量控制有更大的优越性。二、经济型结构CHE系列变频器为简易型变频器,主要面向配套客户,能满足大部分客户的功能需求。功能模块名称功能说明独立外引键盘实现本机键盘与外引键盘的双重控制及变频器运行状态的监视LED外引键盘:为简易型键盘,可实现本机键盘的所有功能串行通讯功能提供RS485物理通讯接口(选配)内嵌MODBUSRTU和ASCⅡ两种通讯模式端子功能提供丰富的端子控制功能供用户自由选择三、主要技术参数1、输出频率范围:0.00~600.00Hz2、速度控制方式:无PG矢量控制(SVC)、V/F控制3、指令通道方式:操作面板、端子控制、远程通讯控制4、频率给定方式:数字键盘给定、模拟量给定(电流、电压信号)、远程通讯给定、多段速给定、PID闭环给定等5、起动转矩大:0.5Hz/150%(SVC)6、载波频率范围:1.0K~15.0KHz7、速度控制精度:±0.5%最高速度(SVC)8、自动电压调整(AVR):当电网电压变化时,能自动保持输出电压恒定9、自动限流:能限制电机电流的最大值,从而可靠地保护变频器和电机10、摆频控制:多种三角波频率曲线,满足纺织行业的个性化需求11、多功能QUICK/JOG键:可做多功能按键使用,满足用户的多种应用要求12、所有的输入、输出端子皆为可编程的,方便用户的使用13、开环转矩控制:可实现真正的张力控制四、标准接线图五、CHE变频器系列变频器型号输入电压额定输出功率(kW)额定输入电流(A)额定输出电流(A)适配电机机型CHE100-0R4G-S2单相220V范围:-15%~+15%0.45.42.30.4ACHE100-0R7G-S20.758.24.50.75ACHE100-1R5G-S21.514.27.01.5BCHE100-2R2G-S22.223.0102.2B变频器型号输入电压额定输出功率(kW)额定输入电流(A)额定输出电流(A)适配电机机型CHE100-0R7G-2三相220V范围:-15%~+15%0.755.04.50.75BCHE100-1R5G-21.57.771.5BCHE100-2R2G-22.211.0102.2BCHE100-004G-23.717.0163.7CCHE100-5R5G-25.521.0205.5CCHE100-7R5G-27.531.0307.5DCHE100-011G-211.043.04211.0ECHE100-015G-215.056.05515.0ECHE100-018G-218.571.07018.5ECHE100-022G-222.081.08022.0FCHE100-030G-230.0112.011030.0FCHE100-037G-237.0132.013037.0FCHE100-045G-245.0163.016045.0G变频器型号输入电压额定输出功率(kW)额定输入电流(A)额定输出电流(A)适配电机机型CHF100-0R7G-4三相380V范围:0.753.42.50.75BCHE100-1R5G-41.553.71.5BCHE100-2R2G-42.25.85.02.2BCHE100-004G/5R5P-44.0/5.510/159/134.0/5.5CCHE100-5R5G/7R5P-45.5/7.515/2013/175.5/7.5CCHE100-7R5G/011P-47.5/11.020/2617/257.5/11.0DCHE100-011G/015P-411.0/15.026/3525/3211.0/15.0D-15%~+15%CHE100-015G/018P-415.0/18.535/3832/3715.0/18.5DCHE100-018G/022P-418.5/22.038/4637/4518.5/22.0ECHE100-022G/030P-422.0/30.046/6245/6022.0/30.0ECHE100-030G/037P-430.0/37.062/7660/7530.0/37.0ECHE100-037G/045P-437.0/45.076/9075/9037.0/45.0FCHE100-045G/055P-445.0/55.090/10590/11045.0/55.0FCHE100-055G/075P-455.0/75.0105/140110/15055.0/75.0FCHE100-075G/090P-475.0/90.0140/160150/17675.0/90.0GCHE100-090G/110P-490.0/110.0160/210176/21090.0/110.0GCHE100-110G/132P-4110.0/132.0210/240210/250110.0/132.0GCHE100-132G/160P-4132.0/160.0240/290250/300132.0/160.0HCHE100-160G/185P-4160.0/185.0290/330300/340160.0/185.0HCHE100-185G/200P-4185.0/200.0330/370340/380185.0/200.0HCHE100-200G/220P-4200.0/220.0370/410380/415200.0/220.0ICHE100-220G/250P-4220.0/250.0410/460415/470220.0/250.0ICHE100-250G/280P-4250.0/280.0460/500470/520250.0/280.0ICHE100-280G/315P-4280.0/315.0500/580520/600280.0/315.0ICHE100-315G/350P-4315.0/350.0580/620600/640315.0/350.0ICHE100-350G-4350.0620.0640.0350.0JCHE100-400P-4400.0670.0690.0400.0JCHE100-400G-4400.0670.0690.0400.0JCHE100-500P-4500.0...

1、当您付费下载文档后,您只拥有了使用权限,并不意味着购买了版权,文档只能用于自身使用,不得用于其他商业用途(如 [转卖]进行直接盈利或[编辑后售卖]进行间接盈利)。
2、本站所有内容均由合作方或网友上传,本站不对文档的完整性、权威性及其观点立场正确性做任何保证或承诺!文档内容仅供研究参考,付费前请自行鉴别。
3、如文档内容存在违规,或者侵犯商业秘密、侵犯著作权等,请点击“违规举报”。

碎片内容

che系列开环型矢量变频器-鞍山垣创工控设备公司,

您可能关注的文档

确认删除?
VIP
微信客服
  • 扫码咨询
会员Q群
  • 会员专属群点击这里加入QQ群
客服邮箱
回到顶部