电脑桌面
添加小米粒文库到电脑桌面
安装后可以在桌面快捷访问

桥桩基施工专项施工方案培训资料VIP免费

桥桩基施工专项施工方案培训资料_第1页
1/39
桥桩基施工专项施工方案培训资料_第2页
2/39
桥桩基施工专项施工方案培训资料_第3页
3/39
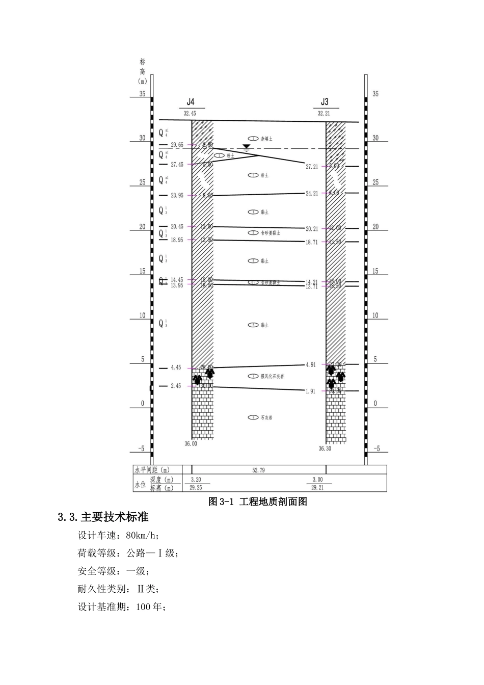
G206大吴桥危桥改造工程桩基施工方案1.编制依据(1)G206大吴桥危桥改造工程招投标文件;(2)徐州市徐贾公路京杭运河大吴桥施工图设计文件;(3)现场施工调查、量测、咨询所获取的资料;(4)我公司以往类似桥梁结构的施工经验;(5)公路、水运、海事等相关行政部门下达的文件及要求;(6)采用的标准、规范主要包括有;《公路工程质量检验评定标准》(JTGF80/1-2004);《公路工程混凝土结构防腐技术规范》(JTG/TB07-01-2006);《公路工程技术标准》(JTGB01-2003);《公路桥涵养护规范》(JTGH11-2004);《混凝土灌注桩用钢薄壁声测管及使用要求》(JT/T705-2007);《冷轧带肋钢筋》(GB13788-2008);《钢筋机械连接技术规程》(JTJ107-2010);《混凝土结构工程质量验收规范》(GB50204-2002);《公路工程施工安全技术规范》(JTJ076-95);《公路桥涵施工技术规范》(JTG/F50-2011);《工程测量规范》(GB50026-2007);《公路工程基桩动测技术规程》(JTG/TF81-01-2004);2.编制范围适用大吴桥0#台~7#台的桩基施工。3.工程概况3.1.工程简介徐贾公路京杭运河大吴桥位于徐州市东北部贾汪区大吴镇境内南部,解台船闸的下游约1.1km处,全长321.64m,设计车速80km/h。起讫里程K684+869.64~K685+191.28。改建方案为拆除老桥,原址重建新桥。主桥基础采用Φ2.0m钻孔灌注桩,桥墩接盖梁,桥墩为直方柱实体钢筋混凝土结构;引桥基础采用柱式墩、柱式台,单排Φ1.5m钻孔灌注桩。既有桥跨布置:2*20m+45m+70m+70m+45m+2*20mT型刚构桥新建桥跨布置:3*25m预应力混凝土组合箱梁+164m下承式钢箱提篮拱桥+3*25m预应力混凝土组合箱梁3.2.工程水文地质条件1层杂填土:杂色,土质不均2层粉土:黄褐色,稍湿—很湿,稍密,土质均匀,fa0=110kPa3层粉土:灰黄色,很湿,稍密,土质均匀,fa0=130kPa4层黏土:灰绿色—灰黄色,饱和,可塑,土质均匀,fa0=140kPa5层砂姜黏土:姜黄色—灰白色,饱和,硬塑,土质不均,fa0=280kPa6层黏土:黄褐色,饱和,可—硬塑,土质均匀,fa0=260kPa6—1层含砂姜黏土:姜黄色—灰白色,饱和,硬塑,土质不均,fa0=290kPa7层强风化石灰岩:黄灰色,强风化,局部中风化,fa0=500kPa8层石灰岩:灰白色—青灰色,微风化,局部中风化,fa0=2500kPa场地含水类型为第四系孔隙潜水,地下水位2.0m,为干湿交替环境,雨季水位上升,旱季水位下降。抗震设防烈度7度,地震动峰值加速度为0.1g;抗震设防烈度A类,抗震设防措施等级8级。图3-1工程地质剖面图3.3.主要技术标准设计车速:80km/h;荷载等级:公路—Ⅰ级;安全等级:一级;耐久性类别:Ⅱ类;设计基准期:100年;3.4.主要工程数量表3-1主要工程数量表序号工程项目工程内容单位数量1桩基φ1.5m钻孔桩根/m24/7682桩基φ2.0m钻孔桩根/m20/5204.总体施工组织布置为加强大吴桥危桥改造工程的管理,确保工程建设工期、质量、安全、生态环境保护等建设目标实现,针对工程项目特点,本着有利于组织管理,实施专业化施工的原则,按照项目法施工组建“中铁四局四集团第二工程有限公司G206大吴桥危桥改造工程项目经理部”(以下简称项目部)。根据项目特点,确定项目部驻地设在贾汪区大吴镇解台村。经理部设项目经理1人,项目书记1人,项目总工1人,副经理及经理助理共2人。部门按五部两室设置,即工程部、工经部、物机部、安质部、财务部及试验室、综合办公室。施工组织管理机构见图4-1。图4-1施工组织管理机构各部门和作业班组职责见表4-1。表4-1组织机构主要成员表序号部门负责人职责1项目经理马光全面负责下部结构施工各种日常工作2项目副经理张苏超负责施工现场管理和施工质量安全工作,对施工生产工作进行组织、管理、指挥、协调3项目总工张勇负责下部结构施工技术,制定主要的施工技术方案和施工组织设计4工程部石生伟负责施工现场技术服务、指导及内业台帐的管理5安质部李刚负责施工安全、施工质量的监察及内业台帐的管理6物机部蒋国家负责施工机械和物资的采购、验收、使用等7钢筋作业班组杨斌负责钢筋下料、加工、焊接、安装以及钢筋半成品堆放等8砼作业班组王鹤松负责混凝土浇筑、振捣、收光、养护等5.施工...

1、当您付费下载文档后,您只拥有了使用权限,并不意味着购买了版权,文档只能用于自身使用,不得用于其他商业用途(如 [转卖]进行直接盈利或[编辑后售卖]进行间接盈利)。
2、本站所有内容均由合作方或网友上传,本站不对文档的完整性、权威性及其观点立场正确性做任何保证或承诺!文档内容仅供研究参考,付费前请自行鉴别。
3、如文档内容存在违规,或者侵犯商业秘密、侵犯著作权等,请点击“违规举报”。

碎片内容

桥桩基施工专项施工方案培训资料

确认删除?
VIP
微信客服
  • 扫码咨询
会员Q群
  • 会员专属群点击这里加入QQ群
客服邮箱
回到顶部