电脑桌面
添加小米粒文库到电脑桌面
安装后可以在桌面快捷访问

巴南立交改造工程施工专项方案培训资料VIP免费

巴南立交改造工程施工专项方案培训资料_第1页
1/65
巴南立交改造工程施工专项方案培训资料_第2页
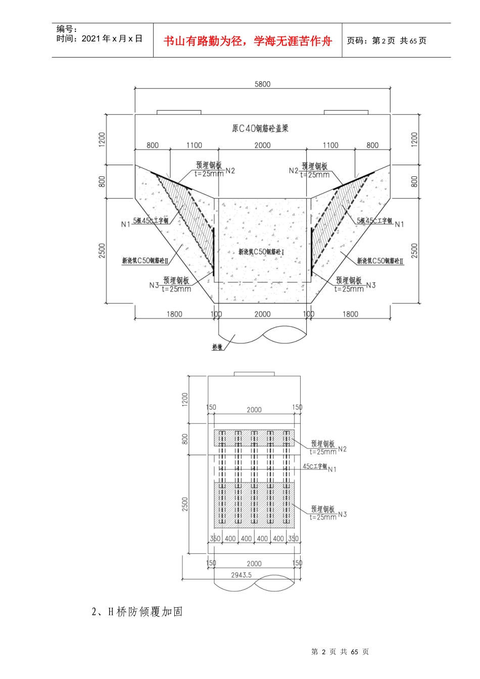
2/65
巴南立交改造工程施工专项方案培训资料_第3页
3/65
第1页共65页编号:时间:2021年x月x日书山有路勤为径,学海无涯苦作舟页码:第1页共65页第一章工程概况一、工程概况巴南立交为内环快速路与渝南大道、龙洲大道(渝南分流道)之间的六路立体交叉,现状为单喇叭立交,本次设计充分利用原有立交,除了界石至渝南大道方向匝道废除外,其他匝道均利用,且不进行改造。渝南大道为南北走向,城市主干道I级,设计行车速度60Km/h,双向六车道,路幅宽度为54m;龙洲大道为南北走向,为城市主干道I级,设计行车速度50Km/h,双向六车道,路幅宽度为44m;内环快速路为东西走向,设计行车速度80Km/h,路幅宽度为32m,双向六车道,K0+000~K1+266.995为本次改造范围,快速路两侧设置集散车道,分别为A匝道、B匝道。本项目新建匝道全长3584.706m,挖方246609m3,填方148796m3,路面26354m2,桥梁5座,下穿通道2座。本工程加固施工内容范围为盖梁加固、H桥防倾覆加固施工及内环快速拼宽桥桥墩防护。1、盖梁加固本次盖梁加固范围为:A匝道A1、C匝道C2、B匝道B2和B3墩柱盖梁。1.1、原盖梁构造图1.2、盖梁型钢支承、增大截面加固立面构造第2页共65页第1页共65页编号:时间:2021年x月x日书山有路勤为径,学海无涯苦作舟页码:第2页共65页2、H桥防倾覆加固第3页共65页第2页共65页编号:时间:2021年x月x日书山有路勤为径,学海无涯苦作舟页码:第3页共65页2.1、凿除桥台原钢筋砼挡块,端横梁翼缘板下方进行凿毛处理2.2、增设大体积砼挡块,极限梁体转角位移。3、内环快速拼宽桥桥墩防护新增路缘石及波形护栏第4页共65页第3页共65页编号:时间:2021年x月x日书山有路勤为径,学海无涯苦作舟页码:第4页共65页二、工程特点1、本工程内环快速路与渝南大道、龙洲大道(渝南分流道)之间的六路立体交叉,施工难度大,社会关注度高,工期紧。2、工程地处城区主干道,安全文明施工措施要求高。3、本工程连接内环快速公路,交通量大,不能停运,交通协调难度大,施工期间安全风险高,交通安全措施费用高。4、本工程跨越重庆市轨道交通三号线,作业难度大。三、施工要求1、严格遵守施工技术规范及质量检验评定标准的要求。施工时,对照原桥盖梁施工图及工程实物掌握原有结构的准确几何尺寸及构造,熟悉场地状况,更好地组织施工。2、顶升梁体施工时必须全过程进行监控监测。。3、搭设临边防护栏杆及安全用电系统布置。4、设立完善的安全警示标志,保证施工安全。第5页共65页第4页共65页编号:时间:2021年x月x日书山有路勤为径,学海无涯苦作舟页码:第5页共65页5、本次加固所选用的材料必须符合国家规范及设计要求。四、技术保证条件1、建立以项目经理为首的安全管理组织架构,层层落实安全责任。2、严格执行经过安全专家论证并审批完善的专项方案搭设顶升支撑支架系统。3、遵守现行安全技术规范,特别是强制规定和构造要求。4、支模架施工前对现有的施工人员进行支模架技术及安全交底,并严格执行班前安全喊话制度。5、重点作好临边防护及工人上下通道的安全防护和邻近交通要道的交通安全防范措施。第二章编制原则及依据一、编制原则贯彻执行国家及重庆市对工程建设的各项方针政策,严格执行工程建设管理程序。遵守设计和施工规范的原则,确保工程质量和安全。坚持实事求是的原则,根据我方的综合施工生产能力组织施工,坚持科学组织、合理安排,确保高质量、高效率、高速度完成工程建设。坚持施工全过程严格管理的原则,各工序施工时,严格执行监理工程师的指令。遵守合同条款的原则,编制施工组织设计,严守合同和标书要求。二、编制依据《盖梁加固施工图设计及H匝道桥防倾覆加固施工图设计》《混凝土结构设计规范》《建筑工程抗震设防分类标准》《钢结构设计规范》《钢结构焊接规范》《钢结构工程施工质量验收规范》第6页共65页第5页共65页编号:时间:2021年x月x日书山有路勤为径,学海无涯苦作舟页码:第6页共65页《混凝土结构加固设计规范》《公路桥梁抗震设计细则》《公路桥梁加固设计规范》《自密实混凝土应用技术规程》《建筑施工扣件式钢管脚手架安全技术规范》(JGJ130-2011、J84-2011)《建筑施工碗扣式脚手架安全技术规范》(JGJ166-2008)《建筑施工高处...

1、当您付费下载文档后,您只拥有了使用权限,并不意味着购买了版权,文档只能用于自身使用,不得用于其他商业用途(如 [转卖]进行直接盈利或[编辑后售卖]进行间接盈利)。
2、本站所有内容均由合作方或网友上传,本站不对文档的完整性、权威性及其观点立场正确性做任何保证或承诺!文档内容仅供研究参考,付费前请自行鉴别。
3、如文档内容存在违规,或者侵犯商业秘密、侵犯著作权等,请点击“违规举报”。

碎片内容

巴南立交改造工程施工专项方案培训资料

您可能关注的文档

确认删除?
VIP
微信客服
  • 扫码咨询
会员Q群
  • 会员专属群点击这里加入QQ群
客服邮箱
回到顶部