电脑桌面
添加小米粒文库到电脑桌面
安装后可以在桌面快捷访问

数控铣床安装验收计划书范本VIP免费

数控铣床安装验收计划书范本_第1页
1/7
数控铣床安装验收计划书范本_第2页
2/7
数控铣床安装验收计划书范本_第3页
3/7
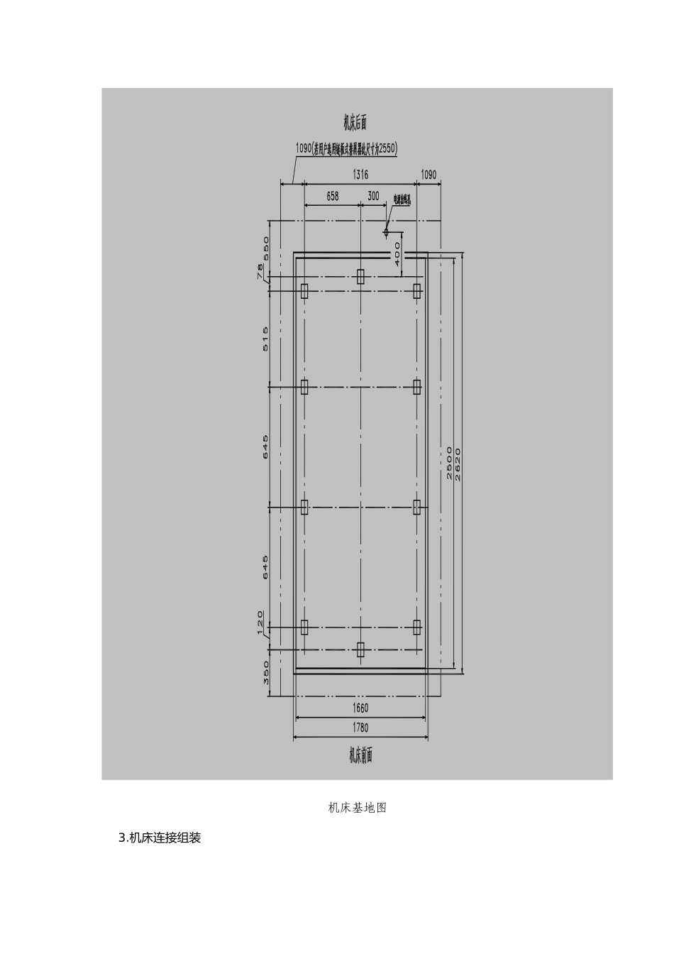
XK716数控铣床安装验收计划书一、数控机床的安装数控机床的安装一般包括基础施工、机床拆箱、吊装就位、连接组装以及试车调试等工作。数控机床安装时应严格按产品说明书的要求进行。小型机床的安装可以整体进行,所以比较简单。大、中型机床由于运输时分解为几个部分,安装时需要重新组装和调整,因而工作复杂得多。现将机床的安装过程分别予以介绍。1.安装条件电压:要求输入电压为AC380V,+10%,-15%;50HZ±1HZ;三相交流电源,若电网电压与要求不符时,用户必须自行对电源电压进行处理。最大电源容量:50KVA机床总电源接入电源柜底板的端子板XL1上,电源端子为L1,L2,L3,N,3PE(PE地线)。在机床通用电前,必须使用相序表,擦子下图检查电源相序,相序表应顺时针回转。电源接线气源条件气源要求:联接,压力调节;气源流量:300升每分;气源压力:0.5~1Mpa.打开立柱左侧,刀库支架下方的气路柜门,其内有一个气动三联件,对松刀及工作台吹气用的压缩空气进行过滤并齐整压力,其输入端应用内径为8毫米的软管连接,并为刀库提供动力源。环境条件数控系统中过高的温度或可能引起控制机构的失灵。同样温度过低会使气动装置中的水受冻而损坏装置。建议在以下环境条件下使用机床环境温度5~40度最大温度变动1.1度每分相对温度75%以下,短时间风最大温度95%。2.基础施工及机床就位机床安装之前就应先按机床厂提供的机床基础图打好机床地基。机床的位置和地基对于机床精度的保持和安全稳定地运行具有重要意义。机床的位置应远离振源,避免阳光照射,放置在干燥的地方。若机床附近有振源,在地基四周必须设置防振沟。安装地脚螺栓的位置做出预留孔。机床拆箱后先取出随机技术文件和装箱单,按装箱单清点各包装箱内的零部件、附件等资料是否齐全,然后仔细阅读机床说明书,并按说明书的要求进行安装,在地基上放多块用于调整机床水平的垫铁,再把机床的基础件(或小型整机)吊装就位在地基上。同时把地脚螺栓按要求安放在预留孔内。机床地基必须坚固的混凝土地基,为了承受强力切削,地脚螺钉在混凝土地基内,使用调水平螺钉使工作台在X,Y方向上均保持水平。然后用螺母将地脚螺钉和调水平螺钉紧固。机床水平调整见下图:机床水平调整机床地基位置如下图。地基图周边点划线及相关尺寸示意的是机床周边与地脚螺钉孔的极限尺寸。机床基地图3.机床连接组装机床连接组装是指将各分散的机床部件重新组装成整机的过程。如主床身与加长床身的连接,立柱、数控柜和电气柜安装在床身上,刀库机械手安装在立柱上等等。机床连接组装前,先清除连接面和导轨运动面上的防锈涂料,清洗各部件的外表面,再把清洗后的部件连接组装成整机。部件连接定位要使用随机所带的定位销、定位块,使各部件恢复到拆卸前的位置状态,以利于进一步的精度调整。电缆连接好后,一定要拧紧紧固螺钉保证接触可靠。在油管与气管中,必须注意防止异物从接口进入管路,造成电磁阀或其他气动,液压元件堵塞,从而出现故障。在连接管路时,每个接头都要拧紧,以免漏气、漏油,特别是在大的分油器上,一根管子渗漏,往往需要拆下一批管子返工,造成工作量加大。在安装部件时,也要考虑好安装须序,防止返工。电缆和管道连接完毕以后,要做好各管线的固定就位,然后装上防护罩壳,保证机床外观整齐。机床组装完成后,根据说明书加足正确的润滑油、液压油、冷却油和冷却水,接上符合要求的气源、电源,检查电枢内、操纵台内、机床上各个插头和电缆连接是否可靠,各器件早、是否安装牢固等。4.试车调整机床试车调整包括机床通电试运转的粗调机床的主要几何精度。机床安装就位后可通电试车运转,目的是考核机床安装是否稳固,各传动、操纵、控制、润滑、液压、气动等系统是否正常灵敏可靠。通电试车前,应按机床说明书要求给机床加注规定的润滑油液和油脂,清洗液压油箱和过滤器,加注规定标号的液压油,接通气动系统的输入气源。通电试车通常是在各部件分别通电试验后再进行全面通电试验的。先应检查机床通电后有无报警故障,然后用手动方式陆续起动各部件。检查安全装置是否起作用,各部件能否正常工作,能否达到工作指标。例如,起...

1、当您付费下载文档后,您只拥有了使用权限,并不意味着购买了版权,文档只能用于自身使用,不得用于其他商业用途(如 [转卖]进行直接盈利或[编辑后售卖]进行间接盈利)。
2、本站所有内容均由合作方或网友上传,本站不对文档的完整性、权威性及其观点立场正确性做任何保证或承诺!文档内容仅供研究参考,付费前请自行鉴别。
3、如文档内容存在违规,或者侵犯商业秘密、侵犯著作权等,请点击“违规举报”。

碎片内容

数控铣床安装验收计划书范本

您可能关注的文档

确认删除?
VIP
微信客服
  • 扫码咨询
会员Q群
  • 会员专属群点击这里加入QQ群
客服邮箱
回到顶部