电脑桌面
添加小米粒文库到电脑桌面
安装后可以在桌面快捷访问

贵阳某五星级酒店工程裙房门厅(18米)高支模专项施工方案(DOC18页)VIP免费

贵阳某五星级酒店工程裙房门厅(18米)高支模专项施工方案(DOC18页)_第1页
1/18
贵阳某五星级酒店工程裙房门厅(18米)高支模专项施工方案(DOC18页)_第2页
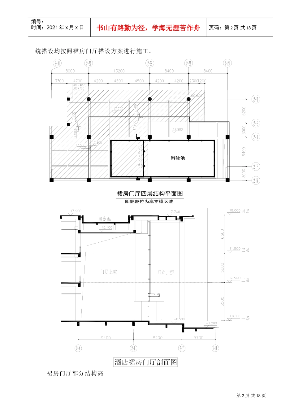
2/18
贵阳某五星级酒店工程裙房门厅(18米)高支模专项施工方案(DOC18页)_第3页
3/18
第1页共18页编号:时间:2021年x月x日书山有路勤为径,学海无涯苦作舟页码:第1页共18页一、编制依据1、本工程设计施工图纸及设计变更、图纸会审记录、设计交底等设计文件;2、本工程的施工组织设计;3、我公司类似施工经验;4、国家及现行的有关规范、规定及标准相关技术规范。(1)混凝土结构工程施工质量验收规范(GB50204-2002)(2)建筑施工扣件式钢管脚手架安全技术规范(JGJ130-2001)(3)《危险性较大的分部分项工程安全管理办法》(建质[2009]87号)(4)《建筑结构荷载规范》(GB50009-2001)(2006版)(5)《建筑施工安全检查标准》(JGJ59-99)(6)《建筑施工高处作业安全技术规范》(JGJ80-91)(7)《建筑施工模板安全技术规范》(JGJ162-2008)(8)《建筑施工手册》(第四版)二、工程概况**集团**五星级酒店工程由贵州省**房地产开发有限公司开发建设,建设地点位贵阳市**新区迎宾东路与**大道路交汇处,由**建筑设计研究院有限公司设计,贵州**监理咨询有限公司监理,**建筑工程有限公司总承包施工,工程总建筑面积:68735.72平方米。该工程地上部分由1栋二十层塔楼、三层通高大堂及四层裙房组成,地下部分共二层地下室(含人防),建筑总高度94.90m。本工程超过8.0m层高的超高楼层有通高大堂部分(16.40m),裙房门厅(18.20m),裙房三层大宴会厅架空层(10.5m)。现将相应超高楼层信息汇总成表,见下表。序号施工部位层高(m)板厚(mm)最大梁截面(mm)最大梁跨度(m)1酒店通高大堂16.40120550×6006.432裙房门厅18.20120500×70012.803裙房三层大宴会厅10.50120后置H型钢梁后置H型钢梁本工程超高支模方案选择上,根据层高及上部梁、板布置,选用架体搭设最高及跨度最大、梁板截面最大的裙房门厅高支撑体系作为验算,大堂及大宴会厅的支撑系第2页共18页裙房门厅四层结构平面图阴影部位为高支模区域游泳池编号:时间:2021年x月x日书山有路勤为径,学海无涯苦作舟页码:第2页共18页统搭设均按照裙房门厅搭设方案进行施工。裙房门厅部分结构高第3页共18页编号:时间:2021年x月x日书山有路勤为径,学海无涯苦作舟页码:第3页共18页支模区域基本情况:本区高支模范围为18轴~24轴/N轴~U轴,面积约为408m2,支撑架最底从地下室顶板(-0.1m、-0.50m)支起到四层楼面,最大高度达到18.20m(-0.50m~17.70m),门厅部分最大框架梁(BKL407(3A))截面500×700mm,最大净跨度12.40米;次梁截面大都为250×600mm;楼板厚度均为120mm,板格跨度最大是4300×5000mm。高支模体系采用Φ48×3.0钢管满堂架支模,架体基础为180mm厚C30钢筋砼顶板。该部位框架柱混凝土强度等级C30;梁、板混凝土强度等级C30。采用商品砼泵送进行施工(框架柱使用塔机分段浇筑)。三、支模方案选择根椐《危险性较大工程安全专项施工方案编制及专家论证审查办法》(建质[2009]87号)第5.3条定义高大模板工程:水平砼构件模板支撑系统高度超过8m,或跨度超过18m,施工总荷载大于10KN/m2,或集中荷载大于15KN/m的模板支撑系统。按上述条款计算,本楼面梁板搭设高度均大于8m,楼面支撑架全部按高大模板工程进行计算及设置构造要求,所以单独编制专项施工方案,组织专家对专项方案进行论证后上报有关主管部门审查备案。根据工程特点和项目材料供应等情况考虑,本工程采用支模方案选择为:梁侧、梁底板、楼板底板均采用18mm厚胶合板(915×1830mm);梁及板的次龙骨均采用截面宽×高为50×100mm长2000mm杉木枋子;加固及支承采用扣件式Φ48×3.0mm钢管,加固采用Φ12对拉螺栓及蝴蝶卡拉结。柱、梁板支撑搭设完毕后经验收合格后,先浇捣框架柱砼,然后再绑扎梁板钢筋,柱入梁或板的钢筋与梁板连接采用焊接连接,支模架与浇好并有足够强度的柱及相邻原已做好的主体结构拉结牢固。经有关部门钢筋和架体验收合格后方可浇捣梁板砼。浇捣按对称施工由两端向中间推进,由标高低的地方向标高高的地方推进。(一)楼板第四层楼面楼板厚度为120mm,层高18.20米。楼板次龙骨采用50×100mm木枋,间距300mm,主龙骨为双钢管,间距1000mm,立杆间距双向≤1000mm,立杆步距1.5米,底部200mm高处设双向扫地杆...

1、当您付费下载文档后,您只拥有了使用权限,并不意味着购买了版权,文档只能用于自身使用,不得用于其他商业用途(如 [转卖]进行直接盈利或[编辑后售卖]进行间接盈利)。
2、本站所有内容均由合作方或网友上传,本站不对文档的完整性、权威性及其观点立场正确性做任何保证或承诺!文档内容仅供研究参考,付费前请自行鉴别。
3、如文档内容存在违规,或者侵犯商业秘密、侵犯著作权等,请点击“违规举报”。

碎片内容

贵阳某五星级酒店工程裙房门厅(18米)高支模专项施工方案(DOC18页)

您可能关注的文档

确认删除?
VIP
微信客服
  • 扫码咨询
会员Q群
  • 会员专属群点击这里加入QQ群
客服邮箱
回到顶部