电脑桌面
添加小米粒文库到电脑桌面
安装后可以在桌面快捷访问

腹膜透析液、冲洗液用聚氯乙烯塑料袋培训资料VIP免费

腹膜透析液、冲洗液用聚氯乙烯塑料袋培训资料_第1页
1/38
腹膜透析液、冲洗液用聚氯乙烯塑料袋培训资料_第2页
2/38
腹膜透析液、冲洗液用聚氯乙烯塑料袋培训资料_第3页
3/38
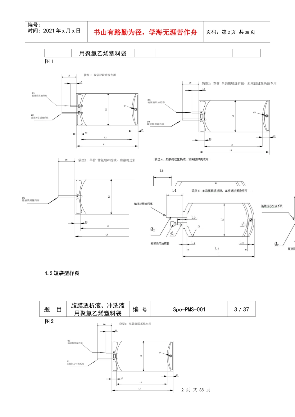
第1页共38页编号:时间:2021年x月x日书山有路勤为径,学海无涯苦作舟页码:第1页共38页包装材料质量标准题目腹膜透析液、冲洗液用聚氯乙烯塑料袋制定人日期审核人日期编号Spe-PMS-001批准人日期颁发部门质量保证部生效日期年月日分发部门QA部门1、QC部门1(金山生产基地)发放:2份复审日期2014年6月版本号第1版第1页/共37页1.目的:本标准是为腹膜透析液、冲洗液用聚氯乙烯塑料袋生产检验而制定,保证检验结果准确可靠,确保合格的物料投入生产使用。2.范围2.1本标准描述了腹膜透析液、冲洗液用聚氯乙烯塑料袋(以下简称聚氯乙烯塑料袋)的基本信息。2.2本标准规定了聚氯乙烯塑料袋的取样操作规程编号、检验项目、限度标准、试验方法和检验规则等。3.基本信息3.1名称及编码通用名称:聚氯乙烯塑料袋英文名:PVCplasticbags物料编码:D20010000583.2检验依据:Q/TQDM02-20083.3来源:本厂塑袋车间自制3.4贮存条件:专用库房存放4.样图4.1长袋型样图题目腹膜透析液、冲洗液编号Spe-PMS-0012/37第2页共38页第1页共38页编号:时间:2021年x月x日书山有路勤为径,学海无涯苦作舟页码:第2页共38页用聚氯乙烯塑料袋图14.2短袋型样图题目腹膜透析液、冲洗液用聚氯乙烯塑料袋编号Spe-PMS-0013/37图2第3页共38页第2页共38页编号:时间:2021年x月x日书山有路勤为径,学海无涯苦作舟页码:第3页共38页图3:195mm的药液袋袋子样图题目腹膜透析液、冲洗液用聚氯乙烯塑料袋编号Spe-PMS-0014/375.检验项目和限度标准项目法定标准外观应符合规定规格尺寸应符合规定第4页共38页第3页共38页编号:时间:2021年x月x日书山有路勤为径,学海无涯苦作舟页码:第4页共38页聚氯乙烯含量≥55%游离邻苯二甲酸二酯含量<10mg/100ml鉴别照红外分光光度法测定,应与对照图谱一致物理要求抗跌落应符合规定氧气透过量≤1200cm3(m2·24h·0.1MPa)氮气透过量≤600cm3(m2·24h·0.1MPa)化学要求炽灼残渣≤0.1%金属元素≤3mg/Kg聚乙烯单体≤1μg/g浊度≤2级色泽应无色酸碱度5~7紫外吸收度250nm~310nm应≤0.25蒸发残渣≤12.5mg/250ml还原物质两值之差不应大于3.0ml铵离子≤0.00008%金属离子应符合规定重金属≤1mg/L环已酮残留量每袋≤10mg生物要求细菌内毒素<0.25EU/ml热原应符合规定细胞毒性相对增殖度不得过2组长溶血<5%急性全身毒性应无急性全身毒性致敏应不产生致敏反应皮内刺激应无刺激作用6.试验方法6.1外观6.1.1取样量厂订批号每批抽取50只。6.1.1检验操作在自然光线明亮处,正视目测,统计超标准的偏差数量,应符合规定。6.1.2标准规定题目腹膜透析液、冲洗液用聚氯乙烯塑料袋编号Spe-PMS-0015/376.1.2.1无色或几乎无色的透明塑料容器;袋身无明显丝路和皱纹;无砂眼渗漏。6.1.2.2热合缝完整、牢固。热合缝切面厚度不应小于单层薄膜的厚度。6.1.2.3袋左右肩对称,偏差小于10mm。6.1.2.4薄膜厚度:0.40-0.45mm(单层)第5页共38页第4页共38页编号:时间:2021年x月x日书山有路勤为径,学海无涯苦作舟页码:第5页共38页6.2规格与尺寸6.2.1工具或仪器:(1)分度值为0.01mm的游标卡尺、0.1cm的直尺。6.2.2取样量:每批抽取10只。6.2.3检验操作用分度值为0.01mm的游标卡尺进行检测,统计超标准的偏差数量,图1应符合表1-1规定、图2应符合表2-2规定、图3应符合表3-3规定;表1-1单位:mm袋型总长L1袋身长L2袋宽L3尾宽L4头缝宽L5尾孔Φ1短管长管袋型1、袋型2、袋型3、345±8305±4180±522±218±36±1L7:15±5内径Φ3:6.1±0.1壁厚:0.90~1.05L6:40±5内径Φ2:6.1±0.16.3±0.1(腹透专用)壁厚:0.90~1.050.95~1.05(腹透专用)总长L头缝宽L1袋身长L2尾宽L3尾孔Φ袋宽W细管粗管袋型4、袋型5、袋型6、360±511±2(注1)18±2(注2)325±5(注1)318±5(注2)28±25±1180±5L5:30±5内径Φ1:6.1±0.1壁厚:0.95±0.05L4>40内径Φ2:7.2±0.1壁厚:1.00±0.05290±511±2(注1)18±2(注2)252±5(注1)245±5(注2)140±5其它特殊规格尺寸标准,另行规定备注:(1).袋型1:双袋双联系统专用;袋型2:双管单袋腹膜透析液、血液滤过置换液专用;袋型3:单管甘氨酸冲洗液、血液滤过置换液专用。(2)...

1、当您付费下载文档后,您只拥有了使用权限,并不意味着购买了版权,文档只能用于自身使用,不得用于其他商业用途(如 [转卖]进行直接盈利或[编辑后售卖]进行间接盈利)。
2、本站所有内容均由合作方或网友上传,本站不对文档的完整性、权威性及其观点立场正确性做任何保证或承诺!文档内容仅供研究参考,付费前请自行鉴别。
3、如文档内容存在违规,或者侵犯商业秘密、侵犯著作权等,请点击“违规举报”。

碎片内容

腹膜透析液、冲洗液用聚氯乙烯塑料袋培训资料

您可能关注的文档

确认删除?
VIP
微信客服
  • 扫码咨询
会员Q群
  • 会员专属群点击这里加入QQ群
客服邮箱
回到顶部