电脑桌面
添加小米粒文库到电脑桌面
安装后可以在桌面快捷访问

斜拉钢丝绳技术交底(技术部)VIP免费

斜拉钢丝绳技术交底(技术部)_第1页
1/4
斜拉钢丝绳技术交底(技术部)_第2页
2/4
斜拉钢丝绳技术交底(技术部)_第3页
3/4
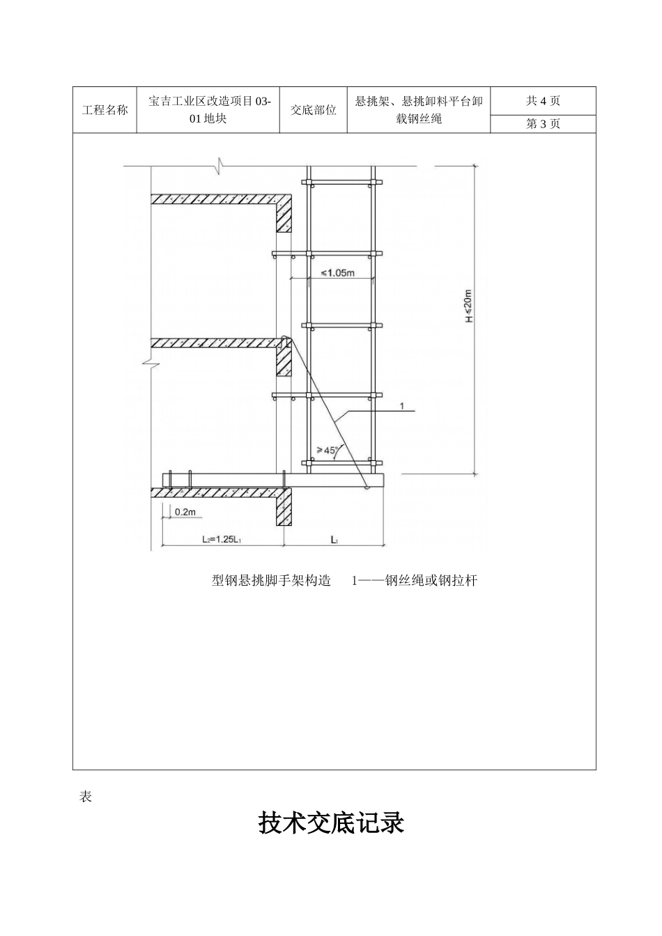
表技术交底记录施工单位:中国建筑第四工程局有限公司编号:工程名称宝吉工业区改造项目03-01地块交底部位悬挑架、悬挑卸料平台卸载钢丝绳共4页第1页交底内容:1、编制依据《建筑施工扣件式钢管脚手架安全技术规范》(JGJ130—2011)2、施工概况本工程悬挑架进行七次整体悬挑,100米以下每四层卸载一次,100米以上每三层卸载一次,悬挑时在上一层预埋φ20圆钢吊环,卸载钢丝绳采用φ16钢丝绳。悬挑卸料平台采用φ20圆钢吊环,卸载钢丝绳采用φ16钢丝绳。3、技术要求不得使用不合格材料,锈蚀严重的钢丝绳不得使用。钢丝绳吊钩采用ф20钢筋预埋时,应将锚筋从暗梁下穿过,伸入板内的主筋与负筋之间的夹层内并符合,平面位置与外架立杆之间的间距为1500,不得埋在梁、板主筋上面。张拉钢丝绳要求保证通顺,不得因被其它钢管等部件阻挡,而形成折线形状,调节花篮螺栓,使其松紧适度,受力明确。钢丝绳卡不得少于3个,并附一只加设安全弯的保险卡子。钢丝绳夹间的距离等于6-7倍钢丝绳直径。卸料平台安装,钢丝绳应采用专用的挂钩挂牢,钢丝绳应采取镶拼处理,采用钢丝绳卡子固定时受力卡子不得少于3个,并附一只加设安全弯的保险卡子,与钢丝绳接触的物体尖锐棱角应采取防止钢丝绳受剪的保护措施,钢平台外口应略高于里口。4、注意事项1、选用夹头时,应使其U形环内侧净距比直径大1~3mm,太大了卡扣连接卡不紧,容易发生事故。2、上夹头时一定要将螺栓拧紧,直到压扁1/3~1/4直径时为止,并在绳受力后,再将夹头螺栓拧紧一次,以保证接头牢固可靠。3、夹头要一顺排列,U形部分与绳头接触,不能与主绳接触,如图所示。如果U形部分与主绳接触,则主绳被压扁后,受力时容易断丝。表技术交底记录施工单位:中国建筑第四工程局有限公司编号:工程名称宝吉工业区改造项目03-01地块交底部位悬挑架、悬挑卸料平台卸载钢丝绳共4页第2页4、为了便于检查接头是否可靠和发现钢丝绳是否滑动,可在最后一个夹头后面500mm处再安一个夹头,并将绳头放出一个“安全弯”,当接头的钢丝绳发生滑动时,“安全弯”首先被拉直,这时就应该立即采取措施处理。表技术交底记录施工单位:中国建筑第四工程局有限公司编号:工程名称宝吉工业区改造项目03-01地块交底部位悬挑架、悬挑卸料平台卸载钢丝绳共4页第3页型钢悬挑脚手架构造1——钢丝绳或钢拉杆表技术交底记录施工单位:中国建筑第四工程局有限公司编号:工程名称宝吉工业区改造项目03-01地块交底部位悬挑架、悬挑卸料平台卸载钢丝绳共4页第4页悬挑卸料平台示意图交底人签字:被交底人签字:

1、当您付费下载文档后,您只拥有了使用权限,并不意味着购买了版权,文档只能用于自身使用,不得用于其他商业用途(如 [转卖]进行直接盈利或[编辑后售卖]进行间接盈利)。
2、本站所有内容均由合作方或网友上传,本站不对文档的完整性、权威性及其观点立场正确性做任何保证或承诺!文档内容仅供研究参考,付费前请自行鉴别。
3、如文档内容存在违规,或者侵犯商业秘密、侵犯著作权等,请点击“违规举报”。

碎片内容

斜拉钢丝绳技术交底(技术部)

您可能关注的文档

确认删除?
VIP
微信客服
  • 扫码咨询
会员Q群
  • 会员专属群点击这里加入QQ群
客服邮箱
回到顶部