电脑桌面
添加小米粒文库到电脑桌面
安装后可以在桌面快捷访问

联合厂房砌体施工挤塑交底VIP免费

联合厂房砌体施工挤塑交底_第1页
1/6
联合厂房砌体施工挤塑交底_第2页
2/6
联合厂房砌体施工挤塑交底_第3页
3/6
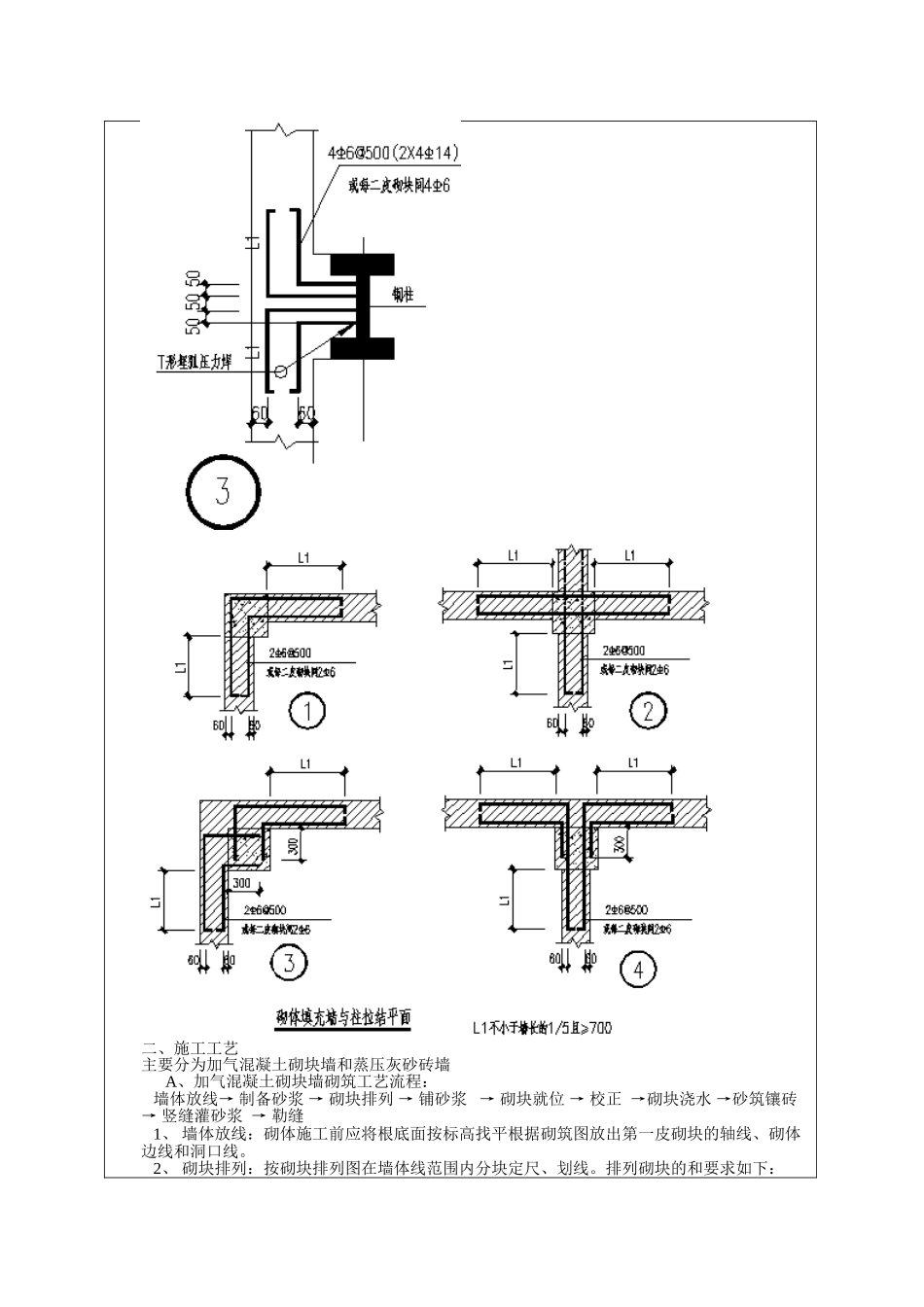
砌体施工技术交底记录表B2编工程名称东风本田第二工厂AF/VQ/AE结合厂房交底时间2021年8月5日交底内容:一、设计要求1、±0.000以下墙体采用MU15灰砂砖M7.5水泥砂浆砌筑;所有内外墙体均在标高-0.060m处做20厚1:2水泥砂浆加相当于水泥重量5防水剂的防潮层当室内地面不在同一标高时靠填土一侧应做垂直防潮层〔材料和厚度不变〕。2、车间外围护墙体1.2m标高以下及车间外贴卫生间采用240厚灰砂砖墙体M5混合砂浆砌筑。3、除二层辅房隔墙外厂房消费辅助用房及卫生间、楼梯间墙体采用标为50的200厚加气混凝土砌块墙M5混合砂浆砌筑。设置伸缩缝间距80m缝宽70mm。4、车间中间区域的顶面为钢筋混凝土板的辅房墙体为240mm厚灰砂砖墙体M5混合砂浆砌筑。5、墙柱之间的拉结设置情况。二、施工工艺主要分为加气混凝土砌块墙和蒸压灰砂砖墙A、加气混凝土砌块墙砌筑工艺流程:墙体放线→制备砂浆→砌块排列→铺砂浆→砌块就位→校正→砌块浇水→砂筑镶砖→竖缝灌砂浆→勒缝1、墙体放线:砌体施工前应将根底面按标高找平根据砌筑图放出第一皮砌块的轴线、砌体边线和洞口线。2、砌块排列:按砌块排列图在墙体线范围内分块定尺、划线。排列砌块的和要求如下:1〕砌块砌体在砌筑前应根据工程设计施工图结合砌块的品种、规格、绘制砌体砌块的排列图经审核无误按图排列砌块。2〕砌块排列应从地基或根底面、±0.00面排列排列时尽可能采用主规格的砌块砌体中主规格砌块应占总量的75~80。3〕砌块排列上、下皮应错缝搭砌搭砌长度一般为砌块的1/2不得小于砌块长度的1/3。4〕外墙转角及纵横墙交接处应将砌块分皮咬槎交织搭砌假如不能咬槎时按设计要求采取其它的构造措施;砌体垂直缝与门窗洞口边线应避开同缝且不得采用砖镶砌。5)砌体程度灰缝厚度一般为15mm砌块墙与后砌隔墙交接处布置钢筋网片加钢筋网片的砌体程度灰缝厚度为20~25mm垂直灰缝宽度为20mm。6〕砌块排列尽量不镶砖或少镶砖必须镶砖时应用整砖平砌且尽量分散镶砌砖的强度不应小于砌块强度等级。7〕砌块墙体与构造构件位置有矛盾时应先满足构件布置。3、制配砂浆:按设计要求的砂浆品种、强度制配砂浆配合比应由试验室确定采用重量比计量精度为水泥±2砂、灰膏控制在±5以内应采用机械搅拌搅拌时间不少于1.5min。4、铺砂浆:将搅拌好的砂浆通过吊斗、灰车运至砌筑地点在砌块就位前用大铲、灰勺进展分块铺灰较小的砌块量大铺灰长度不得超过1500mm。5、砌块就位与较正:砌块砌筑前一天应进展浇水潮湿冲去浮尘去除砌块外表的杂物前方可吊、运就位。砌筑就位应先远后近、先下后上、先外后内;每层开场时应从转角处或定位砌块处开场;应吊砌一皮、校正一皮皮皮拉线控制砌体标高和墙面平整度。砌块安装时起吊砌块应防止偏心使砌块底面能程度下落;就位时由人手扶控制对准位置缓慢地下落经小撬棒微撬用托线板挂直、核正为止。6、砌筑镶砖:用灰砂砖镶砌前后一皮砖必须选用无横裂的整砖顶砖镶砌不得使用半砖。7、竖缝灌砂浆:每砌一皮砌块就位校正后用砂浆灌垂直缝随后进展灰缝的勒缝〔原浆勾缝〕深度一般为3~5mm。B、蒸压灰砂砖墙砌筑工艺流程作业准备→砖浇水→砂浆搅拌→砌砖墙→验收1、砖浇水砌体用砖必须在砌筑前一天浇水潮湿一般以水浸入砖四边1.5cm为宜含水率为10~15常温施工不得用干砖上墙;雨不得使用含水率达饱和状态的砖砌墙;冬不得浇水可适当增大砂浆稠度。2、砂浆搅拌砂浆配合比采用重量比计量精度水泥为±2砂、灰膏控制在±5以内机械搅拌时搅拌时间不得少于2min;参加粉煤灰或外加剂搅拌不少于3min;掺用有机塑化剂的砂浆搅拌3~5min。3、砌砖墙a)组砌:砌体一般采用一顺一丁梅花丁或三顺一丁砌法。b)排砖撂底:一般外墙第一层砖撂底时两山墙排丁砖前后檐纵墙排条砖。根据弹好的门窗口位置线及构造柱的尺寸认真核对窗间墙、垛尺寸其长度是否符合排砖模数如不符合模数时可将门窗口的位置左右挪动。假设留破活七分头或丁砖排在窗口中间、附墙垛或其他不明显的部位。挪动门窗口位置时应注意暖卫立及门窗开启时不受影响。另外在排砖时还要考虑在门窗口上边的砖墙合拢时也不出现破活。所以排砖时必须全盘考虑。前后檐墙排第一皮砖时要考虑甩窗...

1、当您付费下载文档后,您只拥有了使用权限,并不意味着购买了版权,文档只能用于自身使用,不得用于其他商业用途(如 [转卖]进行直接盈利或[编辑后售卖]进行间接盈利)。
2、本站所有内容均由合作方或网友上传,本站不对文档的完整性、权威性及其观点立场正确性做任何保证或承诺!文档内容仅供研究参考,付费前请自行鉴别。
3、如文档内容存在违规,或者侵犯商业秘密、侵犯著作权等,请点击“违规举报”。

碎片内容

联合厂房砌体施工挤塑交底

确认删除?
VIP
微信客服
  • 扫码咨询
会员Q群
  • 会员专属群点击这里加入QQ群
客服邮箱
回到顶部