电脑桌面
添加小米粒文库到电脑桌面
安装后可以在桌面快捷访问

30万元左右小别墅--别墅大全-效果图、设计图VIP免费

30万元左右小别墅--别墅大全-效果图、设计图_第1页
1/69
30万元左右小别墅--别墅大全-效果图、设计图_第2页
2/69
30万元左右小别墅--别墅大全-效果图、设计图_第3页
3/69
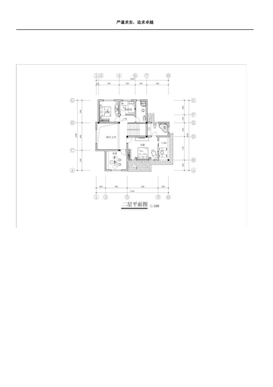
严谨求实,追求卓越现在跟大家介绍几款新农村户型图,在农村有地的,手头上有二十万要建房的(不含精装修),基本上下面的户型是可以建造的。哈哈。实现从农村包围城市,农村的豪宅是第一步!户型参考造价1、毛胚房砖混400-1000/㎡,框架600-1600/㎡2、毛胚房+精装修砖混1200-3000元/㎡,框架1500-4000元/㎡当然精装修只是说按照一般的好的装修,奢华的装修就不是这个价格了,以上价格不包括前后花园栽花种草等费用。下面的户型,一般只给了建筑图,没有结构图,如果施工时候不清楚配筋,可以留言询问。一般框架结构,基础好的,可以采用天然地基,不好的,就要做整板基础或桩基础,通常板宜采用双层配筋,现浇,屋面板可不用抗渗混凝土,也可以不做防水,但屋面板要做好一点,瓦要盖好点。以下的户型只是本人收集的一部分,我收集了几十种户型,压缩包有20M,有相当一部分有CAD图,不过很多都是建筑图,配筋自己要考虑。一、独栋别墅户型农村的暴发户,链子很粗的新贵,可以考虑这样的户型。大气!户型一提高幸福指数的关键严谨求实,追求卓越严谨求实,追求卓越严谨求实,追求卓越严谨求实,追求卓越严谨求实,追求卓越严谨求实,追求卓越严谨求实,追求卓越严谨求实,追求卓越严谨求实,追求卓越严谨求实,追求卓越户型二一座豪宅旺三代((*^__^*)嘻嘻……,这么像房产公司的广告?!)严谨求实,追求卓越严谨求实,追求卓越严谨求实,追求卓越严谨求实,追求卓越严谨求实,追求卓越严谨求实,追求卓越严谨求实,追求卓越二、家族户型家中人丁兴旺的,可以考虑这种联排户型。要是前面有口池塘,凉风习习,池塘的知了叽叽喳喳叫着,能够给后代一个不错的童年想象。严谨求实,追求卓越三、让城里人留口水的户型(独栋别墅型)严谨求实,追求卓越不用说了,在城市里花50万买一百平米,在农村可以建一座这样的别墅,再买一台车,那就是真正的优质生活。鸟语花香,莺飞燕舞,卧听风雨声,蟀嗡入梦来,怀抱娇妻,多美的意境啊!当然这个户型的外立面还是有可改善的地方,比如采用圆拱窗比矩形窗好看一点。严谨求实,追求卓越四、实用经济型不用说,这样的户型实在经济,农村的施工人员看一眼图纸就能鼓捣出来,不用请严谨求实,追求卓越专门的施工人员,呵呵。摘菜东篱下,悠然问犬吠,这时一种怡然的生活态度!这种平屋顶造价不高,比较简单,不过不是很好看,一般的做法会在上面做女儿墙,围起来。严谨求实,追求卓越严谨求实,追求卓越严谨求实,追求卓越严谨求实,追求卓越严谨求实,追求卓越严谨求实,追求卓越五、精选小成本户型下面的图片,第一张为效果图,第二、第三张为一层、二层平面图,如果有第四张,那就是第三层平面图。户型一方案适合联排建筑,是经济型农村住宅的典范,建筑面积142.9平方米,占地面积129平方米。严谨求实,追求卓越本方案造价约为12万元。建筑立面丰富,层次错落有致,给人一种优雅、大气的感觉。严谨求实,追求卓越严谨求实,追求卓越户型二典型的徽派建筑,建筑美观、大方。本方案适合联排建筑,建筑面积191.5平方米,占地面积95.8平方米。本方案造价约为16万元。本方案适合场地较平坦地区建造。严谨求实,追求卓越严谨求实,追求卓越户型三本方案适合联排建筑,建筑面积196.92平方米,占地面积167.7平方米。本方案造价约为16万元。本方案外观朴素大方,平面户型灵活,结构简单,容易建造,宽敞的院落,符合农村居民的生活习惯。严谨求实,追求卓越严谨求实,追求卓越严谨求实,追求卓越户型四本方案适合联排建筑,建筑面积204.7平方米,占地面积148平方米。本方案造价约为17万元。浓郁的乡土气息,整洁的院落,堆放的柴草,悠闲的黄牛,辛勤劳作的农民,相信这个户型是您美好的家园。符合山区居民的生活习惯。严谨求实,追求卓越严谨求实,追求卓越严谨求实,追求卓越户型五本方案适合联排建筑,经济型农村住宅、后院面积较大,适合农民朋友养殖家畜家禽。建筑面积212平方米,占地面积200平方米。本方案造价约为17万元。严谨求实,追求卓越严谨求实,追求卓越严谨求实,追求卓越严谨求实,追求卓越户型六本方案适合联排建筑,建筑面积220平方米,占地面积...

1、当您付费下载文档后,您只拥有了使用权限,并不意味着购买了版权,文档只能用于自身使用,不得用于其他商业用途(如 [转卖]进行直接盈利或[编辑后售卖]进行间接盈利)。
2、本站所有内容均由合作方或网友上传,本站不对文档的完整性、权威性及其观点立场正确性做任何保证或承诺!文档内容仅供研究参考,付费前请自行鉴别。
3、如文档内容存在违规,或者侵犯商业秘密、侵犯著作权等,请点击“违规举报”。

碎片内容

30万元左右小别墅--别墅大全-效果图、设计图

您可能关注的文档

确认删除?
VIP
微信客服
  • 扫码咨询
会员Q群
  • 会员专属群点击这里加入QQ群
客服邮箱
回到顶部