电脑桌面
添加小米粒文库到电脑桌面
安装后可以在桌面快捷访问

交通诱导屏项目技术方案(LED全点阵可变情报版)VIP免费

交通诱导屏项目技术方案(LED全点阵可变情报版)_第1页
1/39
交通诱导屏项目技术方案(LED全点阵可变情报版)_第2页
2/39
交通诱导屏项目技术方案(LED全点阵可变情报版)_第3页
3/39
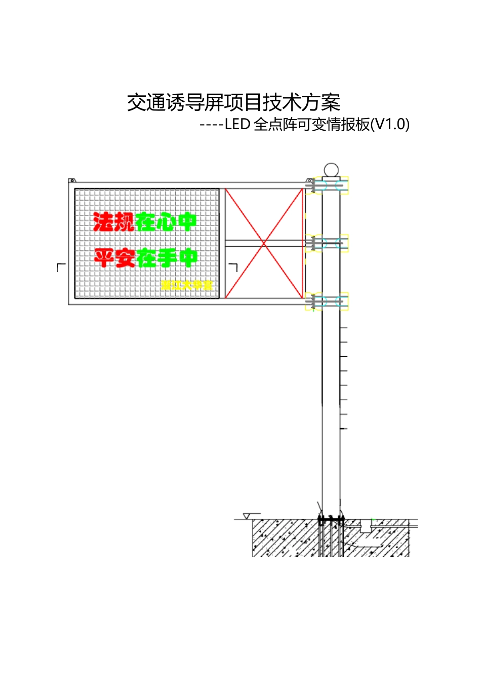
交通诱导屏项目技术方案----LED全点阵可变情报板(V1.0)目录1.概述...................................................................................................................................32.项目总体需求分析...........................................................................................................33.系统设计原则...................................................................................................................34.系统设计依据...................................................................................................................45.系统设计思路...................................................................................................................56.电子显示诱导屏设计方案总述.......................................................................................57.显示屏系统概述...............................................................................................................58.主要设备技术要求...........................................................................................................89.显示屏系统工作原理.....................................................................................................109.1系统工作原理图......................................................................................................................109.2.控制系统阐述......................................................................................................................1010.显示屏的硬件、软件特性...........................................................................................1210.1显示屏硬件特性....................................................................................................................1210.2显示屏软件特性....................................................................................................................1711.显示屏结构设计、防护设计和降温设计...................................................................1911.1结构设计................................................................................................................................1911.2降温设计................................................................................................................................2212.LED诱导屏箱体安装图................................................................................................24附图.....................................................................................................................................371.概述项目名称:项目建设内容:可变情报板系统、包括屏体、钢件基础、综合布线、其他外部设备及安装调试售后2.项目总体需求分析交通诱导可变情报板发布系统是国内外交通管理中广泛应用的一种,是应用最广泛的一种诱导信息发布媒体。交通诱导可变标志信息发布系统主要通过户外LED道路交通诱导可变信息标志实时显示道路交通状况及相关信息,如某交叉口或路段的交通拥堵、某地点发生交通事故、某路段的大约行驶时间、某停车场有无空余泊位、环境噪声、污染和天气情况等,向驾驶员提示最佳的行驶速度、提醒交通参与者选择合适的交通路线等。交通诱导可变标志信息发布系统可及时向交通参与者发布有关的交通信息,使交通参与者及早采取对策,从而可以达到有效缓解、疏导和控制交通的目的。3.系统设计原则我们在本系统设计过程中将严格遵循以下原则:1.经济性采用成熟的系统和技术,坚持性能价格比最优的原则,尽可能降低用户的投资,同时考虑了设备的可靠与稳定,减少用户的维护费...

1、当您付费下载文档后,您只拥有了使用权限,并不意味着购买了版权,文档只能用于自身使用,不得用于其他商业用途(如 [转卖]进行直接盈利或[编辑后售卖]进行间接盈利)。
2、本站所有内容均由合作方或网友上传,本站不对文档的完整性、权威性及其观点立场正确性做任何保证或承诺!文档内容仅供研究参考,付费前请自行鉴别。
3、如文档内容存在违规,或者侵犯商业秘密、侵犯著作权等,请点击“违规举报”。

碎片内容

交通诱导屏项目技术方案(LED全点阵可变情报版)

您可能关注的文档

确认删除?
VIP
微信客服
  • 扫码咨询
会员Q群
  • 会员专属群点击这里加入QQ群
客服邮箱
回到顶部