下载后可任意编辑业主支付保证担保合同引言近年来,随着房地产市场的不断升温,业主支付保证担保合同的使用已经越来越普遍。业主支付保证担...
下载后可任意编辑业主委托书本委托书由业主制定,用于委托代理人进行特定的行为或事务。本委托书应当在书面形式上准确表达业主的意愿和请求...
下载后可任意编辑业主委托物业合同一、合同背景业主委托物业合同是指由业主委托物业服务公司对其名下的物业进行管理、维护和保养的合同。该...
下载后可任意编辑业主对物业承诺书 物业公司业主承诺书【篇 1:物业公司承诺书】 ***物业服务承诺书尊敬的**广场广阔业主:您好! 我公...
下载后可任意编辑业主委员会申请书 成立业主委员会备案申请书模板备案申请书 合肥市蜀山区居住小区管理办公室新华学府花园小区共有____套...
下载后可任意编辑业主回复施工合同尊敬的建设单位:我方收悉贵公司发送的施工合同,经仔细阅读,我方对以下内容提出修改和建议:1.工程名称...
下载后可任意编辑业主临时公约一在一个小区内,业主们需要共同维护良好的社区环境。由于小区规章制度不够完善,业主们需要制定一份临时公约...
下载后可任意编辑业主委员会成立申请报告申请人信息• 申请人姓名:XXX• 申请人电话:XXX• 小区名称:XXX• 申请人地址:XXX申请目的...
下载后可任意编辑业主大会章程示范文本甲方: 乙方: 签订地点: 签订时间: 合同编号: 下载后可任意编辑业主大会章程(示范文本) 业...
下载后可任意编辑业主与施工方施工合同协议书一、合同双方本合同由甲方(业主)和乙方(施工方)签订。甲方的基本情况如下:• 姓名/名称...
酒店业主代表所谓“酒店业主代表”,顾名思义,就是业主方在酒店的利益代表。其主要职责,就是通过对酒店的管理团队在日常经营管理决策及实...
下载后可任意编辑 22 年上半年,全体业委会委员倾心倾力,不计酬劳,本着对小区负责、为业主维权的服务理念,统筹规划、合理安排,利用业...
下载后可任意编辑 业主生日会主持词 【篇一 16 日业主尊享生日会主持人串词】 业主尊享生日会活动流程及主持人串词 (1 月 16 日...
下载后可任意编辑 城市今典业主委员会于 2024 年 12 月 26 日由全体业主代表大会选举产生,2024 年 1 月 24 日,经县房产局和...
下载后可任意编辑 【 - 商户合租公约范本】 第一章 总则 第一条 根据《物业管理条例》和相关法律、法规、政策,建设单位在销售物业...
第 1 页 共 8 页 第一部分 协 议 书 发包人(全称):_东台吉祥置业有限公司________ 承包人(全称):_盐城万盛建筑...
- 1 - 建 设 单 位 ( 业主方)建 设 工程安全管理办法 目 录 第 一 章 总 则 第 二 章 安 全 管 理 职 责 第...
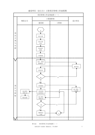
实用文档 专业设计 提高办公、学习效率 1 建设单位(业主方)工程项目管理工作流程图 项目管理工作总体流程(一) 项目立项与可研 ...
建设单位(业主)对单位工程评价 一、工程名称:文明小区 3 # 楼 二、验收时间:2 0 1 2 年 11 月 15 日 三、质量综合验收情...
. w ord 专业资料 总 包 与 业 主 、监理、设计人等单位配合措施 第一节 总 包 与 业 主 的关系处理 ......................

