建 筑 装 饰 工 程 工 程 量 计 算 规 则 及 公 式 一 、楼地面工 程 工 程 量 计 算 规 则 及 公 式 ( 一...
建筑装饰工程工程量计算规则 楼地面工程 一、整体楼地面面层按主墙间的实铺面积以“m2”计算,应扣除突出地面的构筑物、设备基础、室内轨...
序号设备名称项目特征描述设备型号数量单位单价总价品牌 备注1六类非屏蔽数据模块RJ45 六类非屏蔽模块 Snap-In卡接方式,支持T568A/B支...
人工费机械费综合布线系统1031103023001六类单口非屏蔽八位模块 六类模块安装、调试个10852031103023002单口面板单口面板个47230311030230...
建筑施工模板工程量计算规则
建筑施工之建筑工程主要工程量估算指标(参考) 32-7-2-1 单层工业厂房每100m 2建筑面积主要工程量指标 单层工业厂房每100m2 建筑面积...
全国统一建筑工程预算 工程量计算规则 第一章 总则 第1.0.1 条 为统一工业与民用建筑预算工程量的计算,制定本规则。 第1.0.2 条 ...
板钢筋工程量计算表每锚固长每接头长弯钩长度单根长度长宽ⅠⅡ(m)(m)(m) (m)6mm地下室顶板1-4、27-30/H-J5.920.350.20.015底部纵...
重 庆 市 建 筑 工 程 定 额 说 明 及 计 算 规 则2003 版第一章土石方工 程说明一、一般说 明1.土壤、岩石分类,详见"...
土建工程工程量计算规则公式汇总 平整场地: 建筑物场地厚度在±30cm 以内的挖、填、运、找平. 1、平整场地计算规则 (1)清单规则:按...
序号签证标题子目说明单位计算式数量1一.1 检查井接高座22.0022拆除彩砖面层㎡ 1.5*9.814.703室外彩砖面层㎡ 1.5*9.814.704拆除混凝土垫...
板 1、板工程量 (1)板体积。(2)板模板。(3)、板高度超过3.6m 增价;(4)预制板 2、板的工程量计算 ⑴、板的体积=板的面积×板...
/ 20 1 工程量计算方法 一、基础挖土 1、挖沟槽:V =(垫层边长+工作面)×挖土深度×沟槽长度+放坡增量 (1)挖土深度: ①室...
1 工程量计算方法 一、基础挖土 1、挖沟槽:V=(垫层边长+工作面)×挖土深度×沟槽长度+放坡增量 (1)挖土深度: ①室外设计地坪...
建筑工程量计算实例题目_secret
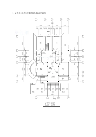
1、计算图示工程平整场地工程量(清单规范规则)、各层建筑面积及总建筑面积(99 重庆规则)。(18分) 解: 平整场地=153.19m2(2 分...
建筑工程量计算实例_secret
建筑工程量计算实例
中文词条名:建筑工程量计算原则(国际通用) 英文词条名: 目前国际上计算建筑工程量,一般情况下都由工料测量师根据招标文件要求编制工...
建筑工程量计算公式及计算方法大全 一、平整场地:建筑物场地厚度在±30cm 以内的挖、填、运、找平。 1、平整场地计算规则 (1)清单规...

