石膏板吊顶工程 编号: GY-P-7 简介:石膏板以质量轻,易加工、吸声等特点广泛用在装饰工程中,石膏板吊顶按施工工艺分为明龙骨和暗龙骨装...
装饰石膏板吊顶的施工工艺 2008-11-22 21:12 装饰石膏板吊顶的施工工艺 1.安装固定方法装饰石膏板的安装可根据各地的材料情况采用搁置...
第一节 石膏板、矿棉板吊顶 1、施工条件 (1 顶棚内的各种管线及设备要安装完毕,并经试水打压试验合格,灯位、通风口及各种露明孔口位...
精品文档---下载后可任意编辑石膏板隔墙施工工艺石膏板隔墙施工工艺该帖被浏览了 795 次 | 回复了 2 次施工工艺:一、场地准备1、安装...
精品文档---下载后可任意编辑会议室吊顶施工工艺及用料说明主辅料品牌及规格1)石膏板:北京龙牌双纸石膏板。2)辅料:北京龙牌,吊顶专用...
拉法基石石膏板检测报告
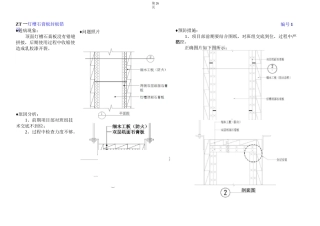
第 26页ZT 一灯槽石膏板封板错误编号 1♦通病现象:顶面灯槽石膏板没有错缝拼接,后期使用过程中收缩使造成乳胶漆开裂。♦问题照片♦原...
1轻钢龙骨双层纸面石膏板吊顶施工工法1.特点与单层纸面石膏板吊顶相比较,其优点体现在以下方面:1.1. 顶的整体性加强,抗裂性增强1.1.1....
中国石膏板索赔: 保险范围 和 责任争议 纳尔逊文德卢卡&克勒公司 ——专注于商业保险 目录 TABLE OF CONTENTS目录 Introductio...
1 亚士创能 EPS 复合石膏板内保温系统 施 工 组 织 设 计 方 案 2 亚 士 创 能 科 技 ( 上 海 ) 股 份 有 限...
轻钢龙骨纸面石膏板隔墙施工方法轻钢龙骨纸面石膏板隔墙施工方法提要:主龙骨根据面板的宽度 B,以不大于 1/2B 加缝隙 c(一般为 5mm)...
下载后可任意编辑纤维石膏板项目可行性讨论报告下载后可任意编辑目录前言.................................................................
石膏板天花吊顶施工工艺施工准备常用工具:电锤、电动冲击钻、铆钉机、电动自攻钻、微型空气压缩机、型材切割机、制动式钢卷尺、角尺、木水...
.WORD. 格式 . 专业整理资料分享技术交底记录共 8 页第 1 页TJ1.5 工程名称新华日报报业集团建设有限公司河西新闻中心施工单位中国...
轻钢龙骨纸面石膏板轻质隔墙施工工艺摘要: 本文介绍了新型墙体材料轻钢龙骨纸面石膏板隔墙的施工工艺流程、施工技术要点及注意事项。关键...
百度文库- 让每个人平等地提升自我1 XXX 工程项目轻钢龙骨石膏板隔墙施工方案编制人: XXX 批准人: XX XXX 公司XXXX1 1、编制依...
百度文库- 让每个人平等地提升自我1 目录一、编制依据 ...............................................................................
百度文库- 让每个人平等地提升自我1 1 施工技术交底一、施工准备1、结构验收合格,隔墙、门洞位置、预留洞口放线完成,室内1000mm 水平...
百度文库- 让每个人平等地提升自我1 2 施工技术交底一、施工准备1、结构验收合格,隔墙、门洞位置、预留洞口放线完成,室内1000mm水平线...
轻钢龙骨石膏板隔墙施工工艺标准【学员问题】轻钢龙骨石膏板隔墙施工工艺标准?【解答】 A.主要材料及配件要求1、轻钢龙骨主件:沿顶龙骨...

