目 录一、工程概况 2二、编制依据 2三、地质情况与水文条件_________________Error: Reference source not found( 一 ) 场地地...
目录一、工程概况深圳市上步片区第七单元 07-05、07-06 地块城市更新项目位于深圳市福田区振华路以南,振中路以北,四号路以东,现场地东...
中山南路 B 4 地块商办综合楼项目 浅 层 回 灌 井 方 案 上海长凯岩土工程有限公司 2 0 1 1 年 9 月 9 日 2 目 录...
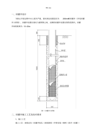
精选 doc . 一、回灌井设计为防止开挖过程中水土流失严重,基坑周边设置直径为200mm的回灌井(详见回灌井大样图)。回灌井设置在基坑与...
珠海市恒虹世纪广场基坑支护回灌井、降水井施工技术方案广东省珠海工程勘察院二O一O年一月珠海市恒虹世纪广场基坑支护回灌井、降水井施工技...
某某项目基坑地下水回灌井施工方案目录第一章编制依据...................................................................................

