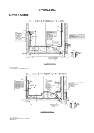
卫生间标准做法1.卫生间防水大样图图一:卫生间器具安装防水大样图(沉箱)图二:卫生间器具安装前防水大样图(楼板台阶)卫生间器具安装前...
目录一、设计管理中心的工作方式及思路.................................................................................................
部分党建工作名词解释一、中央1.“两学一做”:学党章党规、学系列讲话,做合格党员。2.开展“两学一做”学习教育的目的:为深入学习贯彻...

