电脑桌面
添加小米粒文库到电脑桌面
安装后可以在桌面快捷访问

7卫生间标准做法2017.11.16VIP免费

7卫生间标准做法2017.11.16_第1页
1/10
7卫生间标准做法2017.11.16_第2页
2/10
7卫生间标准做法2017.11.16_第3页
3/10
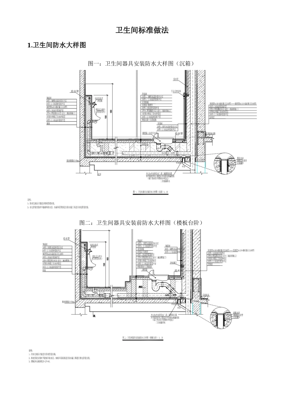
卫生间标准做法1.卫生间防水大样图图一:卫生间器具安装防水大样图(沉箱)图二:卫生间器具安装前防水大样图(楼板台阶)卫生间器具安装前防水大样图、伸出屋面管道防水大样图2.卫生间架空做法及回填做法1)架空做法2)回填做法:3.卫生间前期预留给排水要求1)卫生间需要预留排污管Φ160,废水管Φ110,,二次排水地漏Φ75,给水管不小于DN502)残卫预留排污管Φ110,废水管Φ75,二次排水地漏Φ75;残卫的排污管需给出定位尺寸给业主3)卫生间给排水施工图4.卫生间排气要求卫生间排风量按不小于15次/小时进行计算,并要求机械排风设施5.卫生间电气要求1)卫生间照明、干手机、感应水龙头、感应小便斗、热水器的电的预留6.小便斗的选型7.坐便器的选型8.清洁间的拖把池9.卫生间效果图效果图1效果图2

1、当您付费下载文档后,您只拥有了使用权限,并不意味着购买了版权,文档只能用于自身使用,不得用于其他商业用途(如 [转卖]进行直接盈利或[编辑后售卖]进行间接盈利)。
2、本站所有内容均由合作方或网友上传,本站不对文档的完整性、权威性及其观点立场正确性做任何保证或承诺!文档内容仅供研究参考,付费前请自行鉴别。
3、如文档内容存在违规,或者侵犯商业秘密、侵犯著作权等,请点击“违规举报”。

碎片内容

7卫生间标准做法2017.11.16

确认删除?
VIP
微信客服
  • 扫码咨询
会员Q群
  • 会员专属群点击这里加入QQ群
客服邮箱
回到顶部