电脑桌面
添加小米粒文库到电脑桌面
安装后可以在桌面快捷访问

悬挑式钢管脚手架计算规则VIP免费

悬挑式钢管脚手架计算规则_第1页
1/12
悬挑式钢管脚手架计算规则_第2页
2/12
悬挑式钢管脚手架计算规则_第3页
3/12
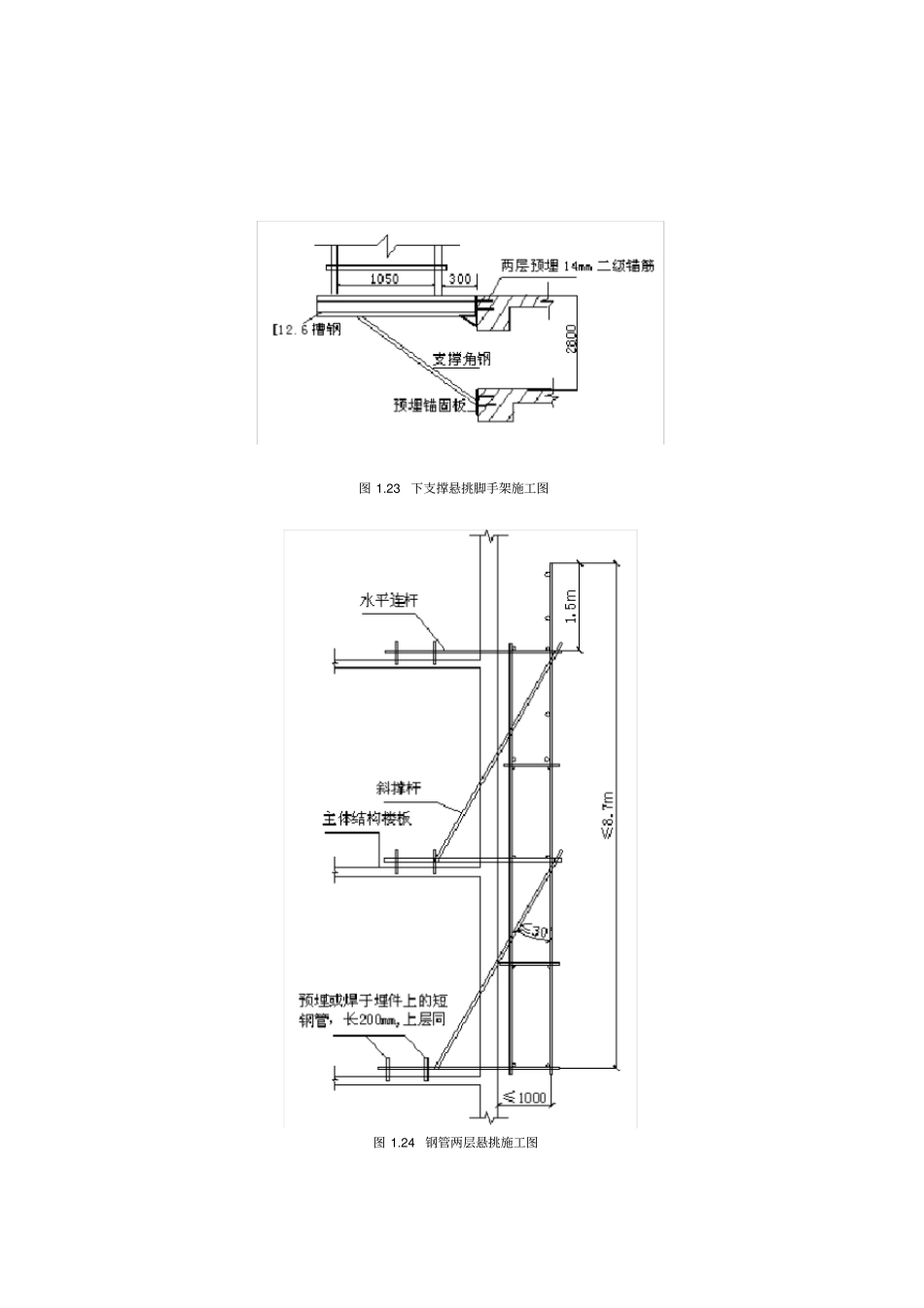
悬挑式钢管脚手架计算规则施工中常用的悬挑脚手架通常是指单双排钢管脚手架的底部通过型钢(工字钢或者槽钢)支撑架传递到主体结构的施工外用脚手架,包括型钢支撑架、扣件式钢管脚手架和连墙件等三部分。从支撑的形式来讲,悬挑脚手架常见两种形式,一种是使用钢丝绳拉结水平钢梁与建筑物,如图 1.22;另一种是将水平钢梁通过角钢或钢管支设到建筑物上,如图 1.23;在施工现场比较特殊的情况下,在保证计算结果可靠和底部支撑钢梁锚固长度足够的情况下,也有施工单位采用过没有任何保护的悬臂式钢梁支撑,但从安全角度讲不推荐使用。图 1.22 采用钢丝绳悬挑脚手架施工图图 1.23 下支撑悬挑脚手架施工图图 1.24 钢管两层悬挑施工图从钢梁的布置形式来讲,悬挑脚手架常见两种形式,一种带联梁型钢,每脚手架立杆下面是水平联梁, 联梁下面以悬挑主梁型钢支撑;另一种是每脚手架立杆直接用悬挑主梁型钢支撑,如下图所示:图 1.25 悬挑脚手架两种形式示意图悬挑脚手架型钢最稳定安全的选择是工字钢,在工字钢上面按照双排脚手架排距焊接短钢筋头,然后将48mm 钢管套在外面使基础牢靠。但也有施工单位选择使用槽钢,脚手架立杆很难直接作用于槽钢腹板,基本上会作用于槽钢翼缘上,这样槽钢受力就很不合理,比较好的解决办法是在槽钢槽口内每隔立杆的纵距焊接短钢筋,形成矩形槽口受力,比较稳定的受力体系。在北方一些施工企业,为了节约施工开支,也有使用钢管做悬挑梁,但存在很大的安全隐患, 因为所有关键受力点都是扣件连接传递荷载,而市场上扣件质量非常不可靠,几乎没有合格的产品, 对于两三个楼层的脚手架高度经过计算还勉强可以使用,对于比较高、荷载比较大的悬挑脚手架一定要慎重使用钢管做悬挑梁。悬挑脚手架上部计算与落地式扣件钢管脚手架计算的前四项要求是一致的,即按照《建筑施工扣件式钢管脚手架安全技术规范》( JGJ130-2001 )要求计算。1、纵向和横向水平杆(大小横杆 )等受弯构件的强度计算;2、扣件的抗滑承载力计算;3、立杆的稳定性计算;4、连墙件的强度、稳定性和连接强度的计算。与落地式脚手架的相应计算一致的,不再赘述,但需要按照《钢结构设计规范》(GB50017-2003)计算联梁和主梁型钢,计算要求如下:1、悬挑水平主梁和联梁的强度、挠度计算和整体稳定性计算; 2、悬挑主梁锚固段与楼板连接处压环、螺栓和楼板局部受压计算;悬挑主梁锚固段与楼板连接通常有两种方法:如果使用压环与楼板钢筋连...

1、当您付费下载文档后,您只拥有了使用权限,并不意味着购买了版权,文档只能用于自身使用,不得用于其他商业用途(如 [转卖]进行直接盈利或[编辑后售卖]进行间接盈利)。
2、本站所有内容均由合作方或网友上传,本站不对文档的完整性、权威性及其观点立场正确性做任何保证或承诺!文档内容仅供研究参考,付费前请自行鉴别。
3、如文档内容存在违规,或者侵犯商业秘密、侵犯著作权等,请点击“违规举报”。

碎片内容

悬挑式钢管脚手架计算规则

您可能关注的文档

文库当当响+ 关注
实名认证
内容提供者

该用户很懒,什么也没介绍

确认删除?
VIP
微信客服
  • 扫码咨询
会员Q群
  • 会员专属群点击这里加入QQ群
客服邮箱
回到顶部