电脑桌面
添加小米粒文库到电脑桌面
安装后可以在桌面快捷访问

军用产品结构设计规范VIP免费

军用产品结构设计规范_第1页
1/21
军用产品结构设计规范_第2页
2/21
军用产品结构设计规范_第3页
3/21
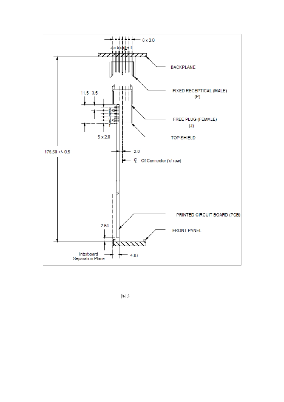
军用产品结构设计规范 一、前言 为了规范公司在军用产品领域的产品结构设计的规范性和准确率,特将一些参考的设计标准和以往结构设计经验相结合,形成公司规范性的结构设计参考标准。针对的产品类型主要从以下几类产品展开。 (1)板卡类 :板卡类主要包括 CPCI 板卡、风冷 VPX 板卡、导冷的 VPX 板卡、以及风冷导冷相结合的 VPX 板卡,无特殊要求主PCB 厚度为 1.6mm; 1.CPCI 板卡依 PCB 大小又分为 3U 6U 两类。外形尺寸见下图 1 图 2: 面板 J1 J2 助拔器 PCB 导轨边缘 2.5mm 禁布区 图 1 3U PCB 尺寸为160*100mm,6U PCB 尺寸为160*233.35mm,不管3U还是6U PCB边缘都有2.5mm 宽度的禁布区(铺铜)。一般我们CPCI板卡高度为4HP,1HP=5.08mm,所以总高度为20.32mm,那板卡 PCB正反面元器件高度见下图 3 图 4: 面板 PCB 助拔器 6U CPCI PCB 尺寸 图 2 图 3 PCB 背面的元器件高度尺寸是定死的,当板卡的高度从4HP 变成8HP或者更高时,增加的高度全部在PCB 正面。当PCB 上有高散热元器件时,可在元器件上设计散热片来散热。(参考来源 CPCI 标准)。 2. V PX 板卡分为 3U V PX 和 6U V PX 板卡,3U V PX 和 6U V PX 总外形尺寸见图 5: 图 4 3U 和6U 的板卡依据锁紧条和助拔器的相对位置可分为锁紧条和助拔器在同一侧结构和不同一侧结构,见图 6 图 7 图 5 图 6 VPX 板卡依据VPX 机箱内背板上相邻接插件的相对距离厚度可以分为 0.8in ch、0.85in ch、1.0in ch 三类,对应不同厚度的板卡所对应的不同尺寸见下图 8 图 7 图 8 板卡对应的正反面限高见图9 下面介绍 6U V PX 的各结构件名称 见图10 图11 图9 那我们都知道无论是3U 还是6U 的板卡都是要插入配对的机箱的,机箱都含有一块背板,背板上放置与板卡相配合的VPX 连接器,背板上VPX 连接器上的间距位置与板卡上的VPX连接器位置一致,间距也分为 0.8in ch、0.85in ch、1.0in ch 3 种,详细位置图见图 11 图 9 助拔器和锁紧条在同一平面 图 10 助拔器和锁紧条在不同一平面 锁紧条 助拔器 锁紧条 接下来讲的是机箱内部板卡导轨尺寸参照图 12 板卡之前的间距 背板 VPX 连接器 导销 机箱背板 图 11 图1 2 图1 3 接下来介绍的是板卡与导轨的横向截面图,请参照图1 3 图14 接下来介绍的是背板上对应0.8in ch、0.85in ch、1.0in ch 间...

1、当您付费下载文档后,您只拥有了使用权限,并不意味着购买了版权,文档只能用于自身使用,不得用于其他商业用途(如 [转卖]进行直接盈利或[编辑后售卖]进行间接盈利)。
2、本站所有内容均由合作方或网友上传,本站不对文档的完整性、权威性及其观点立场正确性做任何保证或承诺!文档内容仅供研究参考,付费前请自行鉴别。
3、如文档内容存在违规,或者侵犯商业秘密、侵犯著作权等,请点击“违规举报”。

碎片内容

军用产品结构设计规范

您可能关注的文档

确认删除?
VIP
微信客服
  • 扫码咨询
会员Q群
  • 会员专属群点击这里加入QQ群
客服邮箱
回到顶部