电脑桌面
添加小米粒文库到电脑桌面
安装后可以在桌面快捷访问

塑钢铝合金门窗工程师完全手册VIP免费

塑钢铝合金门窗工程师完全手册_第1页
1/50
塑钢铝合金门窗工程师完全手册_第2页
2/50
塑钢铝合金门窗工程师完全手册_第3页
3/50
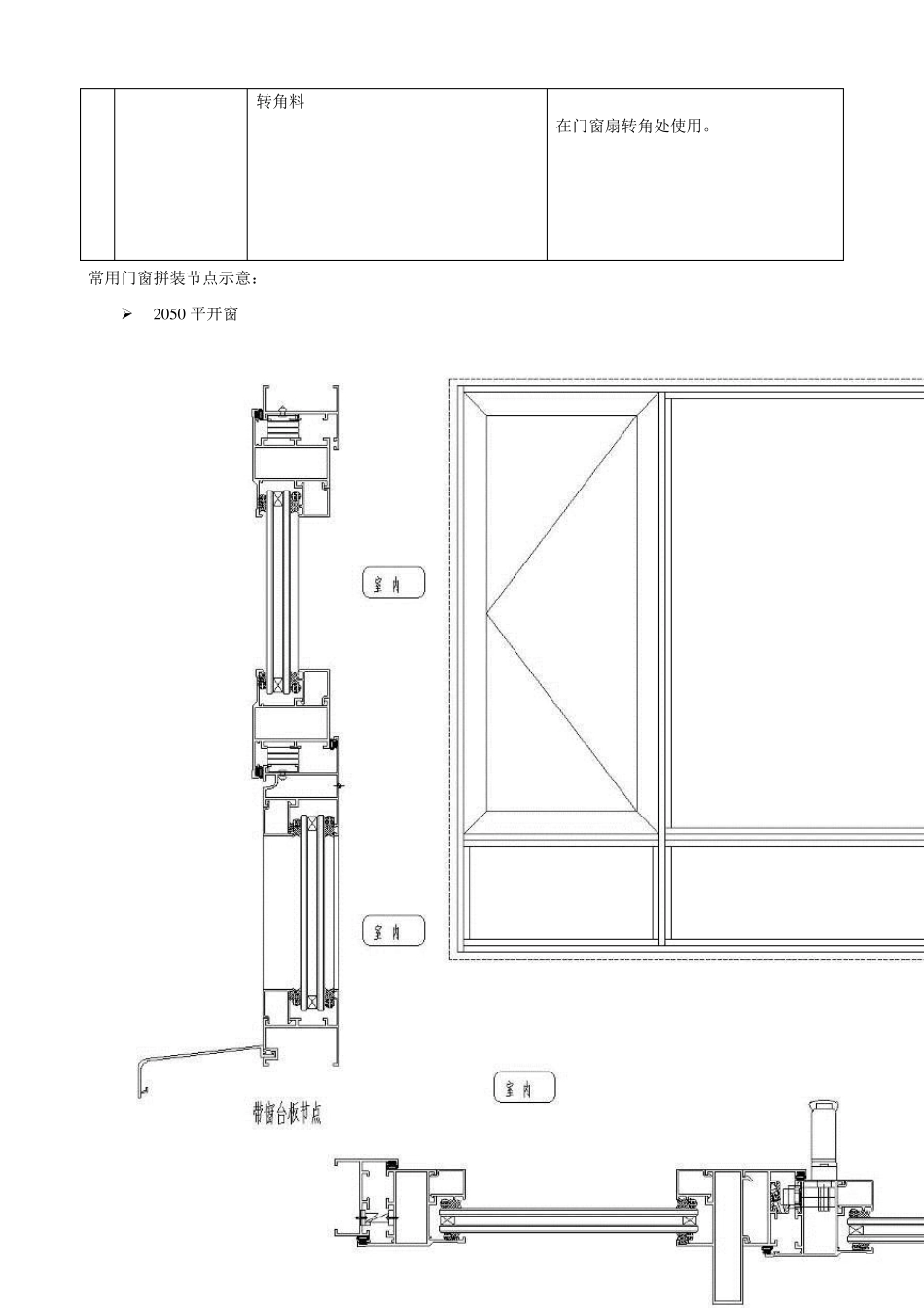
工程师手册——铝合金门窗部分 铝合金门窗部分工程师手册将向大家简要介绍铝合金门窗的组成、生产加工过程、安装过程,以及对主要材料、加工安装过程的控制要点和方法,详细的材料、加工、安装规范要求请参照相应国家规范标准及合同技术要求附件。 第一部分 主要材料 铝合金门窗主要由铝合金型材、玻璃、五金配件、辅副材这四大类材料组成。在第一部分中,我们将着重介绍这四大类材料的各项性能特征。 以平开窗为例 一、材料清单 1 、 铝合金型材 型材是铝合金门窗的主要材料之一,是门窗的主要的组装、受力构件。按铝合金型材安装位置可分为框料、扇料、中挺料(横档料)、门窗压线及其它铝料这四类,这四类型材的具体区别可参照下表: 序号 种类 型材断面示意图 说明 1 框料 平开系列 通过框料间组装,形成铝合金门窗外框,与墙体相连,固定门窗位置。 型材 玻璃 五金配件 辅材 推拉系列 2 扇料 平开系列 推拉系列 通过扇料间组装,形成铝合金门扇、窗扇,通过五金配件与门窗外框相连。 3 中挺料 (横档料) 通过与外框的连接,分割门窗,也有加强门窗整体强度的作用。 4 压线 通过压线与框料、扇料的组装,起到固定平开扇、固定扇玻璃的作用。 5 其它 窗台板 装饰、导水。 转角料 在门窗扇转角处使用。 常用门窗拼装节点示意:  2 0 5 0 平开窗  2050 平开门  Q D 76 推拉窗  Y2k推拉门 铝合金型材按照其本身特性,可分为普通铝合金型材、断桥隔热型材。 序号 种类 型材断面示意图 说明 1 普通型材 型材为一整体,整体从型材挤压机中挤出。 2 断 桥 隔 热 型材(欧式穿条) 型材由两段铝合金型材、一段隔热条组成,两段型材挤出后,用穿条机将隔热条穿入型材,使两段型材成为一体,用于保温节能要求较高的门窗。 3 断 桥 隔 热 型材(美式注胶) 先有型材挤压机挤出铝合金型材,然后再标准凹槽中注入液态隔热橡胶,待冷却后,裁去连接处型材,即形成断桥隔热型材,用于保温节能要求较高的门窗 铝合金型材按照表面处理方式,又可分为氟碳喷涂、粉末喷涂、阳极氧化、电泳四种材料。以上四种表面处理方式中,我们常用的是粉末喷涂、电泳。 四种表面处理方式比较 序号 种类 使用寿命 颜色选择 可修补性 耐腐蚀程度 价格(06 年普通型材价格参考) 1 氟碳喷涂 25~30 年 多 可修补 耐腐蚀 36000 元/吨 2 粉末喷涂 10 年 多 可用聚...

1、当您付费下载文档后,您只拥有了使用权限,并不意味着购买了版权,文档只能用于自身使用,不得用于其他商业用途(如 [转卖]进行直接盈利或[编辑后售卖]进行间接盈利)。
2、本站所有内容均由合作方或网友上传,本站不对文档的完整性、权威性及其观点立场正确性做任何保证或承诺!文档内容仅供研究参考,付费前请自行鉴别。
3、如文档内容存在违规,或者侵犯商业秘密、侵犯著作权等,请点击“违规举报”。

碎片内容

塑钢铝合金门窗工程师完全手册

确认删除?
VIP
微信客服
  • 扫码咨询
会员Q群
  • 会员专属群点击这里加入QQ群
客服邮箱
回到顶部