电脑桌面
添加小米粒文库到电脑桌面
安装后可以在桌面快捷访问

LD单梁起重机说明书VIP免费

LD单梁起重机说明书_第1页
1/23
LD单梁起重机说明书_第2页
2/23
LD单梁起重机说明书_第3页
3/23
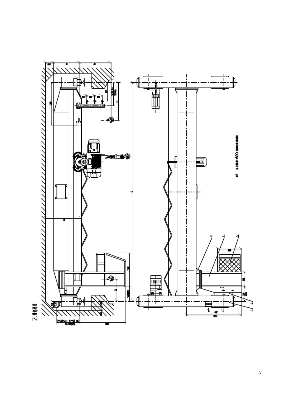
1 LD 电动单梁起重机 使用说明书 2 1、 产 品 简 介 1.1 综 述 LD-A 型 电 动 单 梁 起 重 机 ( 以 下 简 称 起 重 机 ) 是 按 JB/T1306-1994 标 准 设 计 制 造 的 , 与 CD1、MD1 等 形 式 的 电 动 葫 芦 配 套 使 用 , 成 为 一 种 油 运 行 轨 道 的 轻 型 起 重 设 备 。 其 额 定 载 荷1t~ 10t;跨 度7.5m~ 22.5m,适 应 温 度 -25℃ ~ +40℃ , 湿 度 ≤ 85﹪ , 无 火 灾 , 爆 炸 危 险 和 腐 蚀 性 介 质 环 境中 工 作 , 禁 止 吊 运 熔 化 金 属 , 有 毒 、 易 燃 、 易 爆 物 品 。 为 方 便 用 户 , 设 有 地 面 和 操 纵 室 两 种 操 纵 形 式 , 操 纵 室 又 设 有 端 面 及 侧 面 开 门 两 种 形 式 ,供 用 户 选 择 使 用 。 本 产 品 广 泛 用 于 机 械 制 造 , 装 配 , 仓 库 等 场 所 。 1.2 机 构 特 点 1.2.1 金 属 结构 部分 主梁 采用 钢板压延成 形 的 U 型 槽, 再与 工 字钢组焊成 箱形 腹梁 , 横梁 也是 用 钢板压延成 U型 槽组焊成 箱形 横梁 , 为 贮运 方 便 , 主、 横梁 之间用 高强度 螺栓连接。 1.2.2 运 行 机 构 本 产 品 是 采用 分别驱动 形 式 , 驱动 制 动 靠锥形 电 动 机 来完成 , 传动 是 采用 “开 →闭”“闭→开 ”式 齿轮传动 。 1.2.3 电 气设 备 本 产 品 所 运 行 电 机 为 单 速异步电 动 机 , 运 行 速度 :地 面 操 作 20 m/min、 30 m/min; 操 纵 室作 为 45 m/min、 60 m/min、 75 m/min。 起 重 机 设 有 安全装 置, 可靠性 高。 1.2.4 电 动 葫 芦 电 动 葫 芦 可起 升重 物 , 并沿主梁 纵 向移动 , 其 结构 特 征点 详见有 关电 动 葫 芦 说明书。 1.2.5 产 品 型 号注解 a)地 面 操 纵 、 起 重 量 3t、 跨 度 10.5m、 工 作 级别A5表示方 法为 :LD3t-10.5A5D. b)操 纵 室 操 纵 、 起 重 量 5t、 跨 度 16.5m、 工 作 级别A5表示方 法:LD5t-16.5A5S. 3 4 3、性能参数 序号 名称 型号 单位 LD1-D-LD1-S 1 起重量Gn t 1 2 操作形...

1、当您付费下载文档后,您只拥有了使用权限,并不意味着购买了版权,文档只能用于自身使用,不得用于其他商业用途(如 [转卖]进行直接盈利或[编辑后售卖]进行间接盈利)。
2、本站所有内容均由合作方或网友上传,本站不对文档的完整性、权威性及其观点立场正确性做任何保证或承诺!文档内容仅供研究参考,付费前请自行鉴别。
3、如文档内容存在违规,或者侵犯商业秘密、侵犯著作权等,请点击“违规举报”。

碎片内容

LD单梁起重机说明书

您可能关注的文档

确认删除?
VIP
微信客服
  • 扫码咨询
会员Q群
  • 会员专属群点击这里加入QQ群
客服邮箱
回到顶部