电脑桌面
添加小米粒文库到电脑桌面
安装后可以在桌面快捷访问

xx电厂风机降噪方案VIP免费

xx电厂风机降噪方案_第1页
1/6
xx电厂风机降噪方案_第2页
2/6
xx电厂风机降噪方案_第3页
3/6
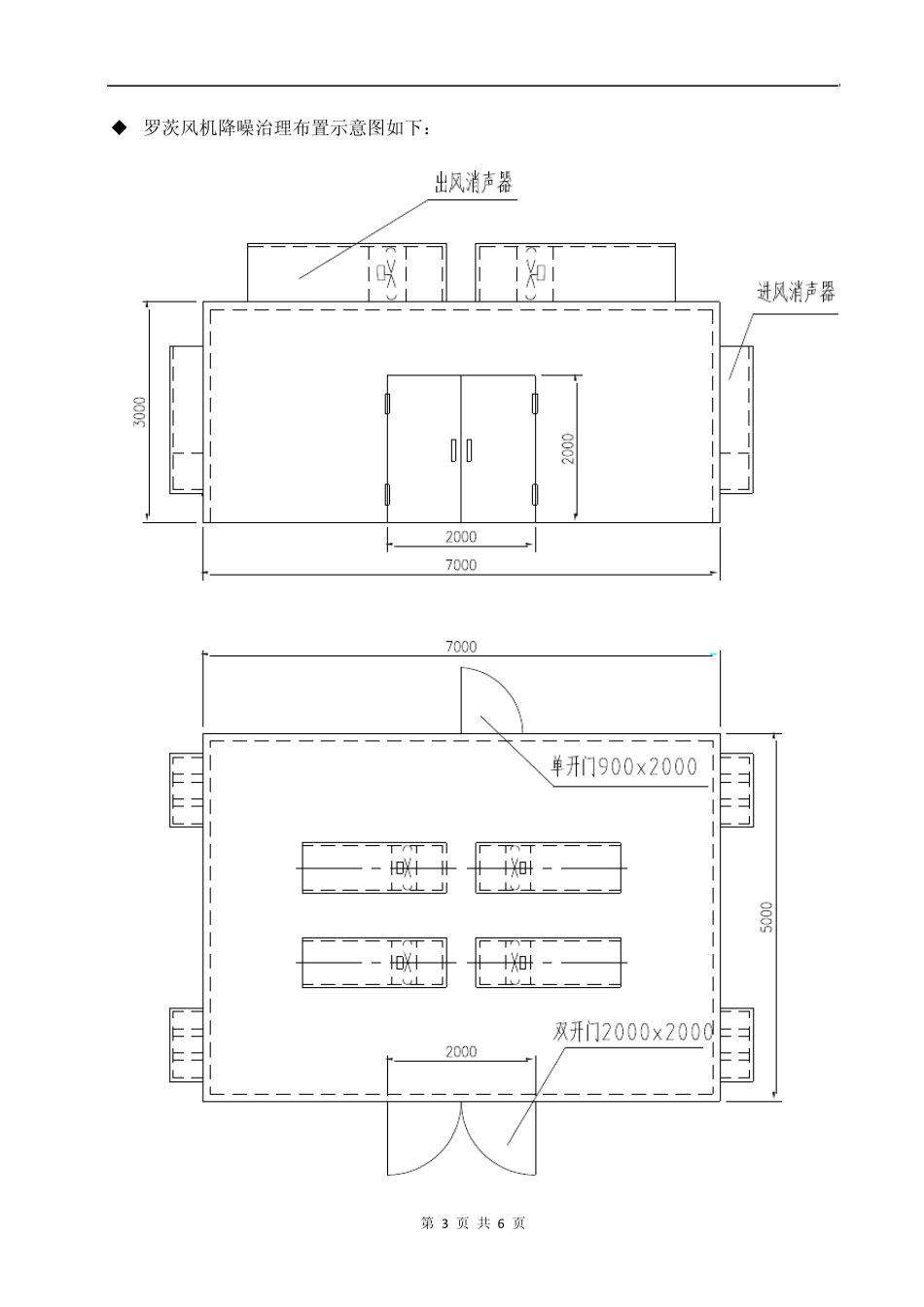
第 1 页 共 6 页 罗茨风机噪声综合治理 技 术 方 案 第 2 页 共 6 页 1.概述 据有关资料表明,噪音对人体的主要危害是损伤听觉系统。当噪音强度超过 100分贝时,即能造成听觉损伤。轻度听觉损伤主要表现为轻度耳鸣,若进一步发展,可在一定程度上影响语言听力,致使工作、学习、生活中感到听觉困难。有时一次强烈的噪音可致暂时性的两耳全聋,同时感到剧烈耳鸣并有眩晕。此外,噪音对人体其他系统也有影响,主要表现为头痛、头晕、失眠、多梦、记忆力减退,甚至出现血压不稳定或肢端供血不足,发生营养障碍性疾病,心律不齐等。 因此,对超标噪声进行治理,可改善员工工作环境,保证身心健康。 2.噪声源分析 罗茨风机噪声分析 根据现场勘测及相关资料表明,罗茨风机的噪声源主要有以下几个方面:  进排气噪声和气流流经机体产生的空气动力性噪声;  从机体表面辐射噪声及管道等刚性传声;  加压机机件运行时冲击、摩擦而产生的机械噪声;  加压机进出风管道的气流撞击、从机体及管道表面等处辐射出来的噪声;  由电机冷却风扇的气流噪声、定转子之间磁场脉动引起的电磁噪声,以及轴承高速旋转产生的机械噪声. 3.降噪措施  将返料罗茨风机原隔声罩拆除,为其加装BE型宽频隔声罩,尺寸为 7m×5m×3m(长×宽×高),平均降噪量≥20dB(A) ;  为罗茨风机留足够的检修通道与散热空间,避免声桥效应。  考虑风机的气流噪声和管道传声,隔声罩外 3米处管道、阀门全部采取隔声阻尼包扎,包扎厚度要到 100mm,最外层用 0.75-1mm镀锌钢板包扎 第 3 页 共 6 页  罗茨风机降噪治理布置示意图如下: 第 4 页 共 6 页 4.主要降噪设备的结构形式及技术特点 4.1 BER隔声罩结构及技术特点 我公司生产的 GSZ-II系列隔 声罩已申请获得两项国家专利,该隔声罩设计独特,隔声量大、散热效果好;模块强度高、重复拆卸和组装不变形,;可根据不同用户设备、场地条件分别进行相应的人性化设计,设备维护方便、使用安全并且外型美观,使隔声罩高标准的达到降噪性能及使用性能,受到国内外用户的一致好评。 BER隔声罩结构分述:  内置型 C型槽钢结构:由于隔声罩较高且跨度大,必须考虑隔声罩的稳定性和模块的强度,为便于设备大修拆装顶部或墙体模块时防止安全事故,在隔声面板内侧按□500×500mm尺寸布置 12#槽钢骨架来分割吸声材料,防止隔声模块内的吸声材料的沉叠并提高了模...

1、当您付费下载文档后,您只拥有了使用权限,并不意味着购买了版权,文档只能用于自身使用,不得用于其他商业用途(如 [转卖]进行直接盈利或[编辑后售卖]进行间接盈利)。
2、本站所有内容均由合作方或网友上传,本站不对文档的完整性、权威性及其观点立场正确性做任何保证或承诺!文档内容仅供研究参考,付费前请自行鉴别。
3、如文档内容存在违规,或者侵犯商业秘密、侵犯著作权等,请点击“违规举报”。

碎片内容

xx电厂风机降噪方案

确认删除?
VIP
微信客服
  • 扫码咨询
会员Q群
  • 会员专属群点击这里加入QQ群
客服邮箱
回到顶部