电脑桌面
添加小米粒文库到电脑桌面
安装后可以在桌面快捷访问

人防地下室模板工程技术交底

人防地下室模板工程技术交底_第1页
1/13
人防地下室模板工程技术交底_第2页
2/13
人防地下室模板工程技术交底_第3页
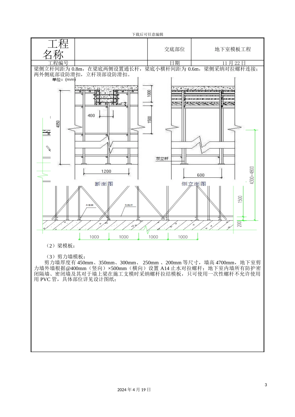
3/13
下载后可任意编辑人防地下室模板工程技术交底12024 年 4 月 19 日下载后可任意编辑工程名称交底部位地下室模板工程工程编号日期 11 月 22 日交底内容:模板工程施工技术交底一、施工准备1)材料准备模板:15 厚覆模多层板;木方:40×80mm;钢管:A48mm×3.5mm,材质为 Q235 钢;对拉螺栓:Φ14 高强止水丝杆。垫板:150mm×150mm海绵条:若干2)主要机具锤子、扳手、圆盘锯、平刨、手电锯、电焊机、墨斗、白线、水准仪、水平尺、钢卷尺等。3)技术准备施工班组应仔细熟悉图纸,根据图纸对梁、板、柱等尺寸及编号设计出配板图,应标识出不同型号、尺寸单块模板平面布置,纵横龙骨规格、数量及排列尺寸;柱箍选用的形式及间距;支撑系统的竖向支撑、侧向支撑、横向拉接件的型号、间距等。对图纸中存在的问题做好记录并及时提出并解决。4)作业条件1、按工程结构图进行模板设计,确保强度、刚度及稳定性。2、墙、柱钢筋绑扎完毕,水电箱(线)盒、预埋件、门窗洞口预埋完毕,检查保护层厚度应满足要求,办完隐蔽工程验收手续。3、按图纸要求预留孔洞、预埋套管,所有孔洞均要先做好木盒子,木盒子外边尺寸即为孔洞尺寸,木盒子必须用铁钉钉牢;墙体预留洞口采纳定位撑,避开洞口处钢筋移位。4、为防止模板下口跑浆,在每次浇筑板面混凝土时,在墙板根部位置,一定要严格控制板面标高,确保一次收光找平。5、安装模板前应把模板板面清理洁净,必须将墙、柱内部垃圾清理洁净后方可合模。6、墙体模板表面必须平整、光滑,不得有硬台。7、轴线、控制线放设完毕,并经监理复核。8、材料、机具及人员已准备就绪。二、模板工程施工方法 1)模板总体方案为保证工程质量和施工进度,本工程在做好技术经济分析的基础上,加大模板的投入,以换取最佳经济效益和社会效益。本工程结构形式相对复杂,为保证工程质量和外观效果,梁板、墙、墙板等节点处需精心设计,严格要求,在消灭质量通病的基础上追求观感。2)模板体系的选择本工程顶板、梁底板采纳竹胶合板,后背 40mmX80mm 木方,间距 250mm;所有的模板拼缝均用采纳硬接缝.外墙外模板采纳散支散拼支模方案,外模板配置高度高出板顶标高 3~5cm,内模配置到比板底标高。3)模板施工工艺流程(修整模板→刷脱模剂)→放墙柱、门窗洞口边线、控制线→搭设满堂脚手架→支梁模板→铺设顶板→预检梁、顶板模板→支门窗洞口模板→加固门窗洞口模板→支一侧墙体模板→安装穿墙螺栓→支另一侧墙体模板...

1、当您付费下载文档后,您只拥有了使用权限,并不意味着购买了版权,文档只能用于自身使用,不得用于其他商业用途(如 [转卖]进行直接盈利或[编辑后售卖]进行间接盈利)。
2、本站所有内容均由合作方或网友上传,本站不对文档的完整性、权威性及其观点立场正确性做任何保证或承诺!文档内容仅供研究参考,付费前请自行鉴别。
3、如文档内容存在违规,或者侵犯商业秘密、侵犯著作权等,请点击“违规举报”。

碎片内容

人防地下室模板工程技术交底

确认删除?
VIP
微信客服
  • 扫码咨询
会员Q群
  • 会员专属群点击这里加入QQ群
客服邮箱
回到顶部