电脑桌面
添加小米粒文库到电脑桌面
安装后可以在桌面快捷访问

关于做好五一劳动节安全值班工作的通知(同名14921)VIP免费

关于做好五一劳动节安全值班工作的通知(同名14921)_第1页
1/5
关于做好五一劳动节安全值班工作的通知(同名14921)_第2页
2/5
关于做好五一劳动节安全值班工作的通知(同名14921)_第3页
3/5
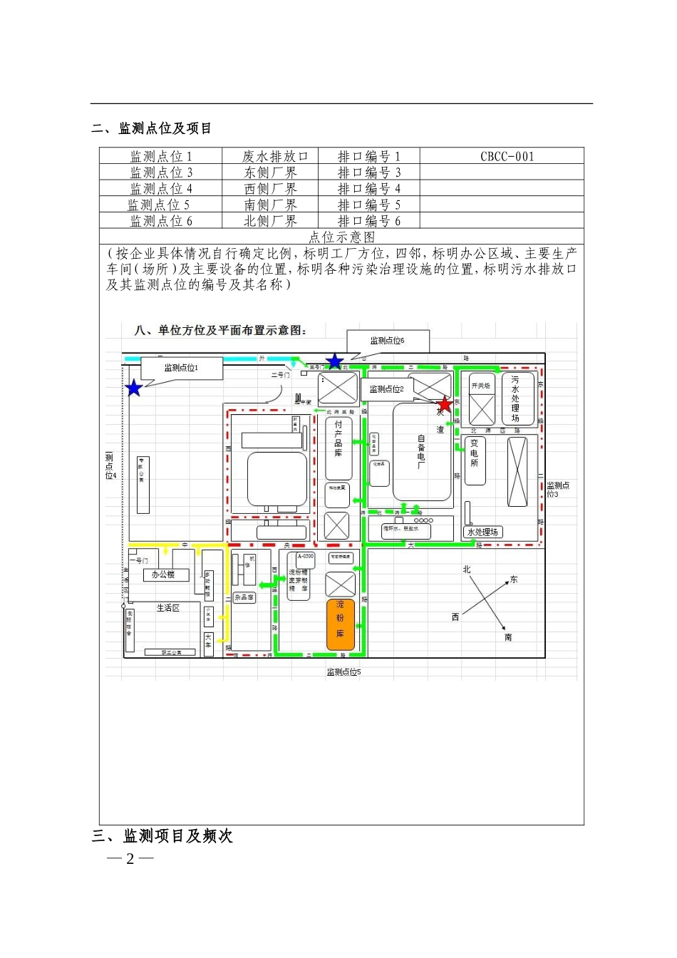
嘉吉生化有限公司公司自行监测方案一、企业基本情况企业名称嘉吉生化有限公司地址松原市江南工业区裕丰街2888号组织机构代码60513257-5法人代表刘军环保联系人苏志义联系方式0438-2779150所属行业淀粉及淀粉制品制造业生产周期300天/年污染源类型废水国控是否委托监测是,委托监测3项自行监测技术手段自动监测3项、手动监测2项、委托监测3项产生污染环节及污染物产生情况生产过程中产生的废水和少量生活污水,其中含COD、氨氮等污染物污染物处理工艺及污染处理设施建设、运行情况废水采用好氧微生物及厌氧微生物处理,主要设备为IC处理器及曝气池污染物排放方式及排放去向废水排入江南污水处理厂—1—二、监测点位及项目监测点位1废水排放口排口编号1CBCC-001监测点位3东侧厂界排口编号3监测点位4西侧厂界排口编号4监测点位5南侧厂界排口编号5监测点位6北侧厂界排口编号6点位示意图(按企业具体情况自行确定比例,标明工厂方位,四邻,标明办公区域、主要生产车间(场所)及主要设备的位置,标明各种污染治理设施的位置,标明污水排放口及其监测点位的编号及其名称)三、监测项目及频次—2—监测点位监测项目技术手段监测频次监测方法监测仪器(厂家)设备型号排放标准排放限值监测结果公开时限厂内总排口COD自动监测连续监测电极法德国拉尔OPSA-150《淀粉工业水污染物排放标准》GB25461-2010300mg/L实时公布厂内总排口PH自动监测连续监测电极法德国拉尔OPSA-150《淀粉工业水污染物排放标准》GB25461-20106-9实时公布厂内总排口氨氮自动监测连续监测电极法德国拉尔AMmonitor《淀粉工业水污染物排放标准》GB25461-201035实时公布厂内总排口流量自动监测连续监测德国拉尔OPSA-150《淀粉工业水污染物排放标准》GB25461-2010实时公布厂内总排口SS手工监测1次/月重量法GB/T11901-1989《淀粉工业水污染物排放标准》GB25461-201070监测完成后10日内公布厂内总排口五日生化需氧量手工监测1次/月稀释与接种法HJ505-2009上海博迅实业有限公司生化培养箱(SPX-250B-Z)《淀粉工业水污染物排放标准》GB25461-201070监测完成后10日内公布厂内总排口总氮手工监测1次/月手持声级计哈希分光光度计(DR5000)《淀粉工业水污染物排放标准》GB25461-201055监测完成后10日内公布厂内总排口总磷手工监测1次/月手持声级计哈希分光光度计(DR5000)《淀粉工业水污染物排放标准》GB25461-20105监测完成后10日内公布东侧厂界噪声手工监测1次/季度手持声级计泰仕电子工业股份有限公司TES噪音计GB12348-2008三类标准昼间65dB(A)夜间55dB(A)监测完成后3日内公布西侧厂界噪声手工监测1次/季度手持声级计泰仕电子工业股份有限公司TES噪音计GB12348-2008三类标准昼间65dB(A)夜间55dB(A)监测完成后3日内公布南侧厂界噪声手工监测1次/季度手持声级计泰仕电子工业股份有限公司TES噪音计GB12348-2008三类标准昼间65dB(A)夜间55dB(A)监测完成后3日内公布北侧厂界噪声手工监测1次/季度手持声级计泰仕电子工业股份有限公司TES噪音计GB12348-2008三类标准昼间65dB(A)夜间55dB(A)监测完成后3日内公布—3—注:1.如行数不够请自行添加;2.监测点位:应与表二中填写的监测点位一致;3.监测项目:根据行业标准、环评批复和环保主管部门监管要求确定;4.技术手段:填“手工监测”或“自动监测”;5.监测频次:填“连续监测”、“1次/日”、“1次/周”、“1次/月”、“1次/季”等。自动监测的,全天连续监测。手工监测的,废水中化学需氧量、氨氮每日监测,其他污染物每月至少监测1次;废气中二氧化硫、氮氧化物每周至少监测1次,颗粒物每月至少监测1次,其他污染物每季度至少监测1次;规模化畜禽养殖场每月至少监测1次;厂界噪声每季度至少监测1次;企业周边环境质量监测,按照环境影响评价报告书(表)及其批复要求的频次执行;6.监测方法:企业自行监测应当遵守环境保护部发布的国家环境监测技术规范和方法。国家环境监测技术规范和方法中未作规定的,可以采用国际标准和国外先进标准;7.排放标准:如《污水排入城镇下水道水质标准》(DB31/445-2009),《污水综合排放标准》(DB31-199/2009)等;8.排放限值:要注明排放限值的...

1、当您付费下载文档后,您只拥有了使用权限,并不意味着购买了版权,文档只能用于自身使用,不得用于其他商业用途(如 [转卖]进行直接盈利或[编辑后售卖]进行间接盈利)。
2、本站所有内容均由合作方或网友上传,本站不对文档的完整性、权威性及其观点立场正确性做任何保证或承诺!文档内容仅供研究参考,付费前请自行鉴别。
3、如文档内容存在违规,或者侵犯商业秘密、侵犯著作权等,请点击“违规举报”。

碎片内容

关于做好五一劳动节安全值班工作的通知(同名14921)

您可能关注的文档

确认删除?
VIP
微信客服
  • 扫码咨询
会员Q群
  • 会员专属群点击这里加入QQ群
客服邮箱
回到顶部