电脑桌面
添加小米粒文库到电脑桌面
安装后可以在桌面快捷访问

起重机参数分解

起重机参数分解_第1页
1/21
起重机参数分解_第2页
2/21
起重机参数分解_第3页
3/21
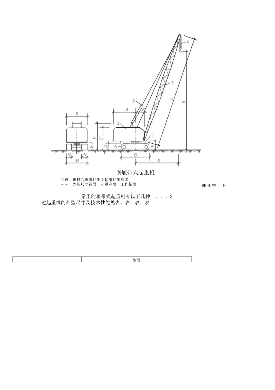
第章结构安装工程本章学习要求了解结构安装工程常用起重机械及其性能和使用范围熟悉单层工业厂房结构的构件安装工艺,安装方法及安装方案的制订了解多层装配式框架结构的安装方案掌握结构安装工程的质量标准和安全技术要求起重机械和索具设备结构安装工程常用的起重机械有桅杆式起重机、履带式起重机、汽车式起重机、轮胎式起重机、塔式起重机等。常用的索具设备有卷扬机、钢丝绳、滑轮吊钩、卡环、吊索、横吊梁等。这些都是起重机所必须具备的辅助工具及设备。肅杆我起重机建筑工程中常用的桅杆式起重机有独脚把杆、人字把杆、悬臂把杆和牵缆式起重机等。桅杆式起重机制作简单,装拆方便,起重量较大,受地形限制小,能用于其他起重机械不能安装的一些特殊工程和设备;但这类机械的服务半径小,移动困难,需要较多的缆风绳。独脚把杆独脚把杆是由把杆、起重滑车组、卷扬机、缆风绳和锚碇等组成。如图()所示。它只能举升重物,不能够把重物做水平方向上的运动。使用时,B 角应该保持不大于°,以便吊装的构件不碰撞把杆,底部要设置拖子以便移动,缆风绳数量一般为 〜根,缆风绳与地面的夹角 a 为。〜°。根据独脚把杆所用的材料,可以为木独脚把杆、钢管独脚把杆、金属格构式独脚把杆。三种独脚把杆的起重高度和起重量是不同的。木独脚把杆起重高度一般为〜,起重量以下;钢管独脚把杆起重高度可达,起重量可达;金属格构式独脚把杆起重高度可达〜,起重量可达。人字把杆人字把杆一般是由两根圆木或者两根钢管用钢丝绳绑扎或者铁件铰接而成,两杆夹角一般为。〜°。,底部设有拉杆或拉绳,以平衡水平推力,把杆下端两脚的距离约为高度的〜,如图()所示。其中一根把杆的底部装有一导向滑轮,起重索通过它连到卷扬机,另用一根丝绳连接到锚碇,以保证在起重时底部稳定。人字把杆是前倾的,但每高,前倾不超过,并在后面用两根缆风绳拉结。人字把杆的特点是侧向稳定性比独脚把杆好,但是构件起吊活动范围小,缆风绳的数量较少。人字把杆的缆风绳的数量由把杆的起重量和起重高度决定,一般不少于根。人字把杆一般用于安装重型构件或者作为辅助设备以吊装厂房屋盖体系上的构件。悬臂把杆在独脚把杆的中部或者高度处装上一根可以回转和起伏的起重臂,即成悬臂把杆。由于悬臂起重杆铰接于把杆中部,起吊重量大的构件会使把杆产生较大的弯矩。为了使把杆在铰接处得到加强,可用撑杆和拉条(或者钢丝绳)进行加固。悬臂把杆的主要特点是能够获得较大...

1、当您付费下载文档后,您只拥有了使用权限,并不意味着购买了版权,文档只能用于自身使用,不得用于其他商业用途(如 [转卖]进行直接盈利或[编辑后售卖]进行间接盈利)。
2、本站所有内容均由合作方或网友上传,本站不对文档的完整性、权威性及其观点立场正确性做任何保证或承诺!文档内容仅供研究参考,付费前请自行鉴别。
3、如文档内容存在违规,或者侵犯商业秘密、侵犯著作权等,请点击“违规举报”。

碎片内容

起重机参数分解

您可能关注的文档

确认删除?
VIP
微信客服
  • 扫码咨询
会员Q群
  • 会员专属群点击这里加入QQ群
客服邮箱
回到顶部