电脑桌面
添加小米粒文库到电脑桌面
安装后可以在桌面快捷访问

建筑制图单项选择题(285道)

建筑制图单项选择题(285道)_第1页
1/98
建筑制图单项选择题(285道)_第2页
2/98
建筑制图单项选择题(285道)_第3页
3/98
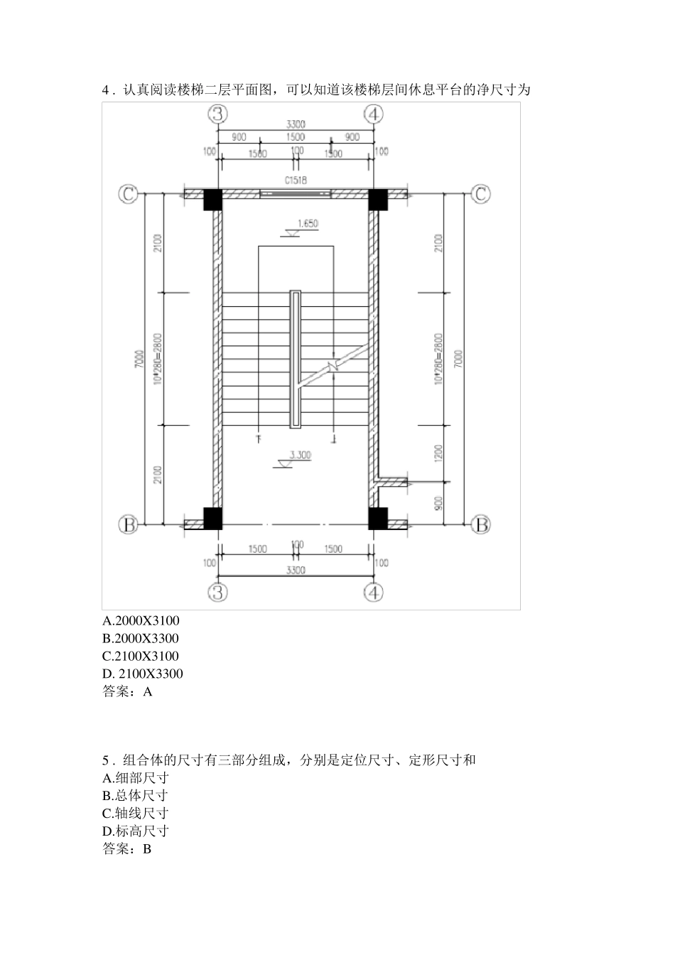
建筑制图单项选择题 1 . 已知圆柱切割后的主、俯视图,正确的左视图是 A. B. C. D. 答案:C 2 . 底层平面图能反映的图示内容为 A.女儿墙 B.上人孔 C.檐沟的位置 D.剖切位置符号 答案:D 3 . 若一直线 H 和 W 面投影都垂直于 Y轴,则该直线一定为 A.水平线 B.正平线 C.正垂线 D.铅垂线 答案:B 4 . 认真阅读楼梯二层平面图,可以知道该楼梯层间休息平台的净尺寸为 A.2000X3100 B.2000X3300 C.2100X3100 D. 2100X3300 答案:A 5 . 组合体的尺寸有三部分组成,分别是定位尺寸、定形尺寸和 A.细部尺寸 B.总体尺寸 C.轴线尺寸 D.标高尺寸 答案:B 6 . 画在图样轮廓线外围的尺寸线,与图样最外轮廓线的距离,不宜小于 A.5m m B.10m m C.15m m D.20m m 答案:B 7 . 建筑材料图例中,表示矿渣材料的是 A. B. C. D. 答案:D 8 . 在三视图中,H 面投影和V 面投影之间关系是 A.长对正 B.宽相等 C.高平齐 D.无法确定 答案:A 9 . 若一直线V 和W 面投影都平行于Z 轴,则该直线一定为 A.水平线 B.正平线 C.正垂线 D.铅垂线 答案:D 10 . 下列常用建筑材料图例中,表示石材的是 A. B. C. D. 答案:B 11 . 如建筑区地形起伏较大,应在总平图上画出 A.定位轴线 B.指北针 C.等高线 D.标高 答案:C 12 . 在建筑平面图中,位于②和③轴线之间的第一根分轴线的编号应为 A.2/1 B.3/1 C.1/2 D.1/3 答案:C 13 . 建筑总平面图中可以表示建筑物朝向的符号为 A.等高线 B.指北针 C.定位轴线 D.对称符号 答案:B 14 . 为使建筑立面图简洁大方,体现建筑立面的不同层次,使其外形更清晰,常用的手法是 A.比例不一 B.线条处理 C.虚实对比 D.色彩处理 答案:B 15 . 根据所给左侧立面图和平面图,选择正确的正立面图 A. B. C. D. 答案:D 16 . 中间各层平面图除要表达本层室内情况外,只需画出本层的室外阳台和下一层的 A.窗 B.门 C.阳台 D.雨蓬和遮阳板 答案:D 17 . 代号 GJ 是指 A.挂架 B.钢筋 C.刚架 D.构件 答案:C 18 . 相互平行的图例线,其净间隙或线中间隙不宜小于 A.0.13m m B.0.15m m C. 0.18mm D.0.20mm 答案:D 19 . 根据梁的1-1 移出断面图,判断图一、图二、图三和图四中,绘制正确的断面图是 A.图一 B.图二 C.图三 D.图四 答案:D 20 . 能反映女儿墙的平面图是 A.底层平面图...

1、当您付费下载文档后,您只拥有了使用权限,并不意味着购买了版权,文档只能用于自身使用,不得用于其他商业用途(如 [转卖]进行直接盈利或[编辑后售卖]进行间接盈利)。
2、本站所有内容均由合作方或网友上传,本站不对文档的完整性、权威性及其观点立场正确性做任何保证或承诺!文档内容仅供研究参考,付费前请自行鉴别。
3、如文档内容存在违规,或者侵犯商业秘密、侵犯著作权等,请点击“违规举报”。

碎片内容

建筑制图单项选择题(285道)

确认删除?
VIP
微信客服
  • 扫码咨询
会员Q群
  • 会员专属群点击这里加入QQ群
客服邮箱
回到顶部