电脑桌面
添加小米粒文库到电脑桌面
安装后可以在桌面快捷访问

板模板计算书

板模板计算书_第1页
1/9
板模板计算书_第2页
2/9
板模板计算书_第3页
3/9
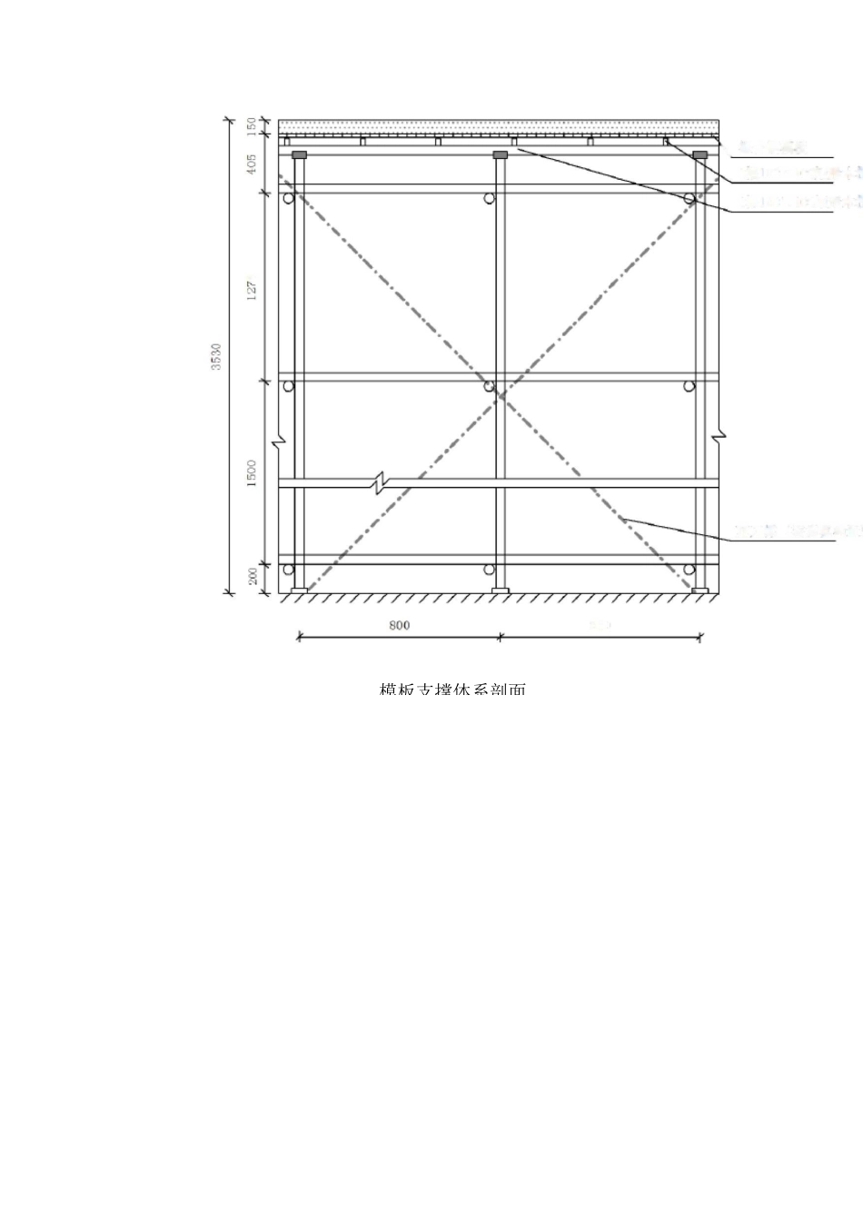
板模板(扣件钢管架支撑)计算书本工程位于任丘市经济开发区北区,地上三层,建筑高度米,总建筑面积平方米。本工程由任丘韩昌工艺品有限公司建设,河北大地建设科技有限公司勘察,世纪东华建筑规划设计有限公司设计,任丘市建兴工程建设项目管理有限公司监理,任丘市诚建建筑安装工程有限公司施工。本计算书依据《建筑施工模板安全技术规范》()、《建筑施工计算手册》江正荣著、《建筑结构荷载规范》、《混凝土结构设计规范》、《钢结构设计规范》等规范编制。\组合钢模板80g1 艰 1OOX1D 睫形木楞@3001^10&XID 礎形木楞対 000剪门撑〔按规范构诘要求设模板支撑体系剖面9钢管排列平面示意图一、参数信息模板构造及支撑参数一构造参数楼层高度:;混凝土楼板厚度:;结构表面要求:隐藏;立杆纵向间距或跨距:;立杆横向间距或排距:;立杆步距:;二支撑参数板底采用的支撑钢管类型为:048x3.5;钢管钢材品种:钢材钢>;钢管弹性模量:钢管屈服强度:;钢管抗拉抗压抗弯强度设计值:钢管抗剪强度设计值:;钢管端面承压强度设计值:何载参数新浇筑砼自重标准值:;钢筋自重标准值:;板底模板自重标准值:承受集中荷载的模板单块宽度施工人员及设备荷载标准值:)计算模板和直接支承模板的小梁时取计算直接支承小梁的主梁时取;计算支架立柱等支承结构构件时取;板底模板参数搭设形式为:层梁顶托承重;一面板参数面板采用模板宽面板厚钢面板;厚度:;抗弯设计值:;弹性模量:;二第一层支撑梁参数材料:根 X 矩形木楞;间距:;木材品种:东北落叶松;弹性模量:;抗压强度设计值:;抗弯强度设计值:;抗剪强度设计值:;三第二层支撑梁参数材料:根 X 矩形木楞;木材品种:东北落叶松;弹性模量:;抗压强度设计值:;抗弯强度设计值:;抗剪强度设计值:;地基参数模板支架放置在地面上,地基土类型为:碎石土;地基承载力标准值:;立杆基础底面面积:;地基承载力调整系数:。二、模板面板计算面板为受弯结构,需要验算其抗弯强度和刚度。根据《模板规范(第条规定,面板按照简支跨计算。这里取面板的计算宽度为面板的截面惯性矩和截面抵抗矩分别为XX;荷载计算及组合模板自重标准值 X;新浇筑砼自重标准值 XX钢筋自重标准值 XX永久荷载标准值施工人员及设备荷载标准值 X计算模板面板时用集中活荷载进行验算;计算挠度采用标准组合:计算弯矩采用基本组合:永久荷载和均布活荷载组合(,);由可变荷载效应控制的组合:XXX由永...

1、当您付费下载文档后,您只拥有了使用权限,并不意味着购买了版权,文档只能用于自身使用,不得用于其他商业用途(如 [转卖]进行直接盈利或[编辑后售卖]进行间接盈利)。
2、本站所有内容均由合作方或网友上传,本站不对文档的完整性、权威性及其观点立场正确性做任何保证或承诺!文档内容仅供研究参考,付费前请自行鉴别。
3、如文档内容存在违规,或者侵犯商业秘密、侵犯著作权等,请点击“违规举报”。

碎片内容

板模板计算书

确认删除?
VIP
微信客服
  • 扫码咨询
会员Q群
  • 会员专属群点击这里加入QQ群
客服邮箱
回到顶部