电脑桌面
添加小米粒文库到电脑桌面
安装后可以在桌面快捷访问

文档物流仓储设备手册

文档物流仓储设备手册_第1页
1/54
文档物流仓储设备手册_第2页
2/54
文档物流仓储设备手册_第3页
3/54
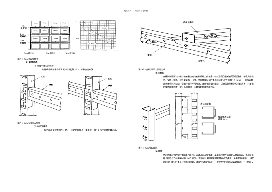
精品文档---下载后可任意编辑前 言物流中心的作业为了满足现今市场少量多样与高频率的配送需求,其作业方式已不是传统仓库之人力作业所能应付,因此对于物流系统中硬件设施的选用规划,常是物流规划者头痛之问题。要选用何种搬运设备,才能使进货出货顺利;要选用何种储存设备,才能使货品存取方便,且能达到所需之储存效能。要选用何种输送设备,才能使货品从这个作业站以最快速且最有效率的方式移动到下一个作业站,这些都是物流系统规划者必须重视之要点。要使物流作业有效率,除了良好之操作系统规划外,选用好的硬设备配合也是必须的。本人将以物流自动化工作者立场,把物流中心内之三大主要设备,即储存设备、搬运设备、输送设备,认真介绍其功能规格,并解说其中常用设备的选用与设计方式。另外对于物流中心内之码头设施、拣货设备、承载容器及配送车辆等相关物流设备也一一介绍说明,期望藉此物流仓储设备手册之出版,在这物流设备书籍缺乏的国内出版品市面上,提供给国内物流规划者使用参考,使得国内物流中心之作业能更效率化、省力化、自动化。壹、储存设备储存设备型式种类繁多,因储存物品形状、重量、体积、包装型式等特性的不同,其使用的储存方式也不相同。例如流体使用桶装包装适用重力架,一般散品使用袋装或箱装包装适用轻型料架,而长形对象如钢材、木材则适用悬臂式料架。 一般物流中心之储存设备,主要是以单元负载( Unit Load ) 之栈板储存方式为主,配合各种拣货方式的需要,另有以容器及单品的储存设备。本文将以这一类的储存设备为主,加以探讨比较,以期做为物流中心规划时,储存设备选用设计之参考。 储存设备以储存单位分类,可大致区分为栈板、容器、单品及其它等四大类。每一类型因其设计结构之不同,又可分为很多种型式,如图 1-1 储存设备体系所示。下文将逐一的介绍各型设备的功能规格与特点,并说明常用各型储存设备之设计方式及选用参考。 图 1-1 储存设备体系1 栈板料架( Pallet Rack )栈板料架(图 1-2)是使用最普遍的一种料架,提供 100% 的存取性,并且有很好的拣取效率。但相对地此种料架的储存密度较低,需要较多的信道 ( Aisle )。一般可依其存取信道的宽度,区分为传统式信道、窄道式信道及超窄道式信道,后者需配合适当型式的堆高机使用。其特点为:1. 适合中种、多样、中量保管。2. 适合 ABC 分类中的 BC 级商品。3. 一般使用 3-5 层,料架高度受限,一般在 6 m ...

1、当您付费下载文档后,您只拥有了使用权限,并不意味着购买了版权,文档只能用于自身使用,不得用于其他商业用途(如 [转卖]进行直接盈利或[编辑后售卖]进行间接盈利)。
2、本站所有内容均由合作方或网友上传,本站不对文档的完整性、权威性及其观点立场正确性做任何保证或承诺!文档内容仅供研究参考,付费前请自行鉴别。
3、如文档内容存在违规,或者侵犯商业秘密、侵犯著作权等,请点击“违规举报”。

碎片内容

文档物流仓储设备手册

确认删除?
VIP
微信客服
  • 扫码咨询
会员Q群
  • 会员专属群点击这里加入QQ群
客服邮箱
回到顶部