电脑桌面
添加小米粒文库到电脑桌面
安装后可以在桌面快捷访问

智能照明方案设计

智能照明方案设计_第1页
1/7
智能照明方案设计_第2页
2/7
智能照明方案设计_第3页
3/7
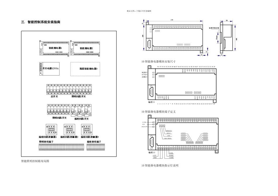
精品文档---下载后可任意编辑一、 概述办公环境不仅要有足够的工作照明,更应营造一个舒适的视觉环境,减少光污染。现代办公楼的照明已经成为直接影响办公效率的主要因素之一,因此,越来越引起人们的高度重视。做好照明设计,加强照明控制设计,已成为现代智能办公大楼的一个重要内容。据国内外有关资料介绍,办公照明用电量占整幢大楼能耗的约 1/3,办公照明的设备费用(包括照明器件和配布线工程费)约占电气工程费用的 10%以上,因此选择合理的照明方案,配置先进的控制系统,不仅能大大简化穿管布线的工作量,而且能有效地节约能源,降低用户运行费用,提高大楼管理水准,具有极大的经济意义和社会效益。在一些欧美发达国家,照明系统的智能化控制已成为智能化大楼不可分割的组成部分,而且应用范围越来越广。智能照明控制系统的技术,随着现代建筑技术的进展而不断更新以适应各种建筑结构布局,不同灯具的选配,实现多样化的控制模式。由于这是一个开放式的系统,采纳标准接口可以方便地与其它系统诸如 BA、安保、消防等相互连接完成系统集成功能。例如在上下班时间段,将所有的出入口照明全部打开,在平常打开部分照明,深夜打开深夜模式。室外景观照明根据时间自动运行:根据泛光要求,对灯光控制系统进行了设计,日常模式通过控制室的管理,配合各区域的控制面板实现智能人性化管理。二、设计方案 2.1 设计依据本方案的设计依据为:业主提供的相关装修照明设计说明;YOCMOON 产品相关技术要求;国家照明电器相关技术标准2.2.设计范围根据图纸的描述,我司要设计的范围为:负一楼一二楼裙楼及核心筒 三至 18 楼三个楼梯间及核心筒室外景观照明(暂按 1 个配电箱、8 个回路考虑)2.3 配置具体说明分布式智能控制系统,通常可以由三部分组成,一、模块部分(包括调光器、开关控制器)二、现场控制部分(包括控制面板、液晶显示触摸屏、智能传感器、时钟管理器)三、监控,调试部分(包括调试软件和 PC 监控机)等部件组成,将上述各种具备独立功能的模块用一根五类四对数据通讯线手牵手联接起来组成一个控制网络,其典型系统如图 1 所示:根据业主提供的初步技术要求,系统的拟配备情况如下:① 负一层负一层照明分布在 11 个配电箱内,设计配置 YCM-ZM-J4-C,4 回路,10A/回路智能照明开关控制器 6 台YCM-ZM-J8-C,8 回路, 10A/回路智能照明开关控制器 2 台YCM-ZM-J10-C,10 回路, 10A/回路智...

1、当您付费下载文档后,您只拥有了使用权限,并不意味着购买了版权,文档只能用于自身使用,不得用于其他商业用途(如 [转卖]进行直接盈利或[编辑后售卖]进行间接盈利)。
2、本站所有内容均由合作方或网友上传,本站不对文档的完整性、权威性及其观点立场正确性做任何保证或承诺!文档内容仅供研究参考,付费前请自行鉴别。
3、如文档内容存在违规,或者侵犯商业秘密、侵犯著作权等,请点击“违规举报”。

碎片内容

智能照明方案设计

MY shop+ 关注
实名认证
内容提供者

欢迎挑选适合自己的材料。

确认删除?
VIP
微信客服
  • 扫码咨询
会员Q群
  • 会员专属群点击这里加入QQ群
客服邮箱
回到顶部