电脑桌面
添加小米粒文库到电脑桌面
安装后可以在桌面快捷访问

机械制图零件图习题

机械制图零件图习题_第1页
1/2
机械制图零件图习题_第2页
2/2
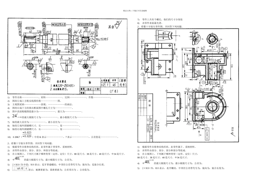
精品文档---下载后可任意编辑1)零件名称———————,材料———————,比例———————,件数———————。2)图的左端上方粗实线图形称———————图。3)主视图采纳———————剖视,———————的画法。4)图的右端下方的移出断面图中螺孔尺寸为———————。5)图中表面粗糙图值最小为———————,最大为———————。6) 24−0 .2000的最大极限尺寸为———————,最小极限尺寸为———————。7)轴的最大直径为———————,最小直径为———————。8)轴的左端外圆键槽尺寸,长———————,宽———————。9)轴的右端外圆键槽尺寸,长———————。宽———————。10) φ28K7(+0.023+0.020 )中的 K 表示———————,7 表示———————,公差值是———————。2、看懂十字接头零件图,并回答下列问题。1)根据零件名称和结构形状,此零件属于类零件,采纳材料。2)该零件由部分、部分、部分、和部分等组成。3)在主视图上,下列尺寸属于哪种类型(定形、定位)尺寸:80 是尺寸;38 是尺寸;40 是尺寸;Ф34 是尺寸。4)Ф400+0 .039的最大极限尺寸为,最小极限尺寸为,公差为。5)2×M10-7H 中的;M10 表示;是牙普通螺纹;中顶径公差带代号为;旋向为;是旋合长度。6)表示:被测要素为;基准要素为;公差项目为 ;公差值为。7)零件上共有个螺孔,他们的尺寸分别是8)该零件表面最光滑。2、看懂十字接头零件图,并回答下列问题。1)根据零件名称和结构形状,此零件属于,采纳材料。2)该零件由部分、部分、部分和部分等组成。3)在主视图上,下列属于哪种类型(定形、定位)尺寸:80 是尺寸,38 是尺寸,40 是尺寸,Ф34 是尺寸。4)Ф400+0 .039的最大极限尺寸为,最小极限尺寸为,公差为。5)2×M10-7H,M10 表示,是牙螺纹,中顶径公差带代号为,旋向为,旋合长度为。精品文档---下载后可任意编辑6)表示:被测要素为,基准要素为,公差项目为,公差值为。7)零件上共有螺孔,它们的尺寸分别为。8)该零件表面最光滑。3、看懂主轴零件图,回答下列问题。

1、当您付费下载文档后,您只拥有了使用权限,并不意味着购买了版权,文档只能用于自身使用,不得用于其他商业用途(如 [转卖]进行直接盈利或[编辑后售卖]进行间接盈利)。
2、本站所有内容均由合作方或网友上传,本站不对文档的完整性、权威性及其观点立场正确性做任何保证或承诺!文档内容仅供研究参考,付费前请自行鉴别。
3、如文档内容存在违规,或者侵犯商业秘密、侵犯著作权等,请点击“违规举报”。

碎片内容

机械制图零件图习题

您可能关注的文档

一帆文传+ 关注
实名认证
内容提供者

欢迎光临店铺,各类公文供您挑选。

确认删除?
VIP
微信客服
  • 扫码咨询
会员Q群
  • 会员专属群点击这里加入QQ群
客服邮箱
回到顶部