电脑桌面
添加小米粒文库到电脑桌面
安装后可以在桌面快捷访问

本工程重点、难点分析和解决方案

本工程重点、难点分析和解决方案_第1页
1/27
本工程重点、难点分析和解决方案_第2页
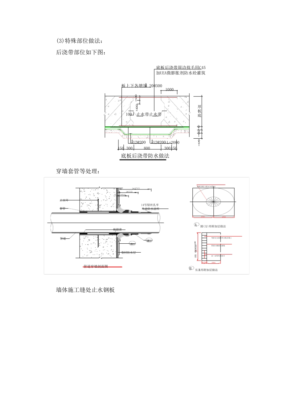
2/27
本工程重点、难点分析和解决方案_第3页
3/27
本 工 程 重 点 、 难 点 分 析 和 解 决 方 案 1、 组 织 协 调 施 工 的 重 点 、 难 点 分 析 及 解 决 方 案 1.1我 公 司 经 过 实 地 考 察 , 认 真 分 析 , 总 结 出 本 工 程 在 组 织 协 调 施 工 方 面主 要 存 在 以 下 几 个 方 面 的 重 点 及 难 点 问 题 : ( 1) 工 程 工 期 较 紧 张 , 体 量 较 大 , 工 期 安 排 是 一 个 重 点 难 点 。 ( 2) 现 场 可 利 用 面 积 较 小 ,材 料 及 机 械 设 备 较 多 ,现 场 平 面 布 置 难 度 较 大 。 ( 3) 工 种 工 序 较 多 , 交 叉 作 业 组 织 难 度 较 大 。 ( 4) 工 程 体 量 大 , 劳 动 力 组 织 难 度 较 大 。 ( 5) 混 凝 土 筏 型 基 础 上 翻 梁 部 位 的 模 板 支 设 为 吊 模 , 支 设 难 度 大 。 1.2 组 织 施 工 的 重 点 、 难 点 解 决 方 案 : ( 1) 为 解 决 工 期 较 为 紧 张 的 难 点 , 在 工 程 施 工 过 程 中 尽 量 实 行 各 工 序 交 叉作 业 , 使 得 最 终 达 到 节 约 工 期 的 目 的 。 ( 2) 由 于 现 场 可 利 用 面 积 较 小 , 因 此 在 施 工 过 程 中 , 首 先 进 行1#、 2#住 宅楼±0以 下 工 程 及 1#、 2#地 下 车库的 施 工 , 将此 阶段施 工 时将木工 及 钢筋加工 区放在 12-16#楼位 置 , 当住 宅 楼±0以 下 工 程 及 车库施 工 完并回填完毕后将木工 及钢筋加工 区安 放在 地 下 车库的 上 面 , 然后进 行12-14#省级住 宅 楼及 16#综合楼的施 工 ,这样在 不影响总 工 期 的 前提 下 解 决 了 住 宅 楼主 体 施 工 过 程 中 场 地 小 的 问 的题 。 ( 3) 由 于 工 序 较 多 , 为 了 达 到 交 叉 作 业 的 目 的 , 我 们 公 司 在 中 标 后将组 建一 个 有 类 似 工 程 施 工 经 验 的 项 目 管 理 班 子 ,这样施 工 过 程 中 的 交 叉 作 业 就 可 以 顺利 开 展 。 ( 4) 劳 动 力 组 织 过 程 中 实 行 流 水 施 工 , 使...

1、当您付费下载文档后,您只拥有了使用权限,并不意味着购买了版权,文档只能用于自身使用,不得用于其他商业用途(如 [转卖]进行直接盈利或[编辑后售卖]进行间接盈利)。
2、本站所有内容均由合作方或网友上传,本站不对文档的完整性、权威性及其观点立场正确性做任何保证或承诺!文档内容仅供研究参考,付费前请自行鉴别。
3、如文档内容存在违规,或者侵犯商业秘密、侵犯著作权等,请点击“违规举报”。

碎片内容

本工程重点、难点分析和解决方案

您可能关注的文档

确认删除?
VIP
微信客服
  • 扫码咨询
会员Q群
  • 会员专属群点击这里加入QQ群
客服邮箱
回到顶部