电脑桌面
添加小米粒文库到电脑桌面
安装后可以在桌面快捷访问

电梯机械安装维修实操(总)实操题详解稿

电梯机械安装维修实操(总)实操题详解稿_第1页
1/18
电梯机械安装维修实操(总)实操题详解稿_第2页
2/18
电梯机械安装维修实操(总)实操题详解稿_第3页
3/18
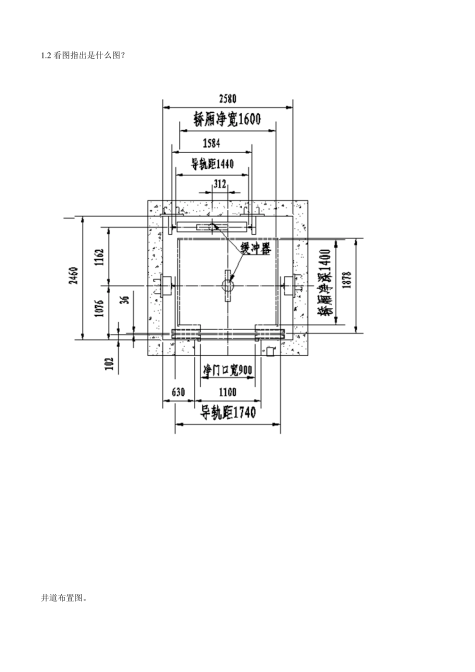
南京市质量技术监督技术咨询服务中心 电梯(机械)安装维修人员技能考核讲理稿 1 识图知识 土建图、机械图及零部件识 1 、看机械制图视频 2 、知道什么是平行投影法、斜投影、水平投影面、正投影面、前视图、左视图、俯视图、 1 .1 看图指出是什么图? 机房布置图。 1 .2 看图指出是什么图? 井道布置图。 1 .3 看图指出图中尺寸标注的含意? 尺寸标注的含意 1.4 看图说出这是什么投影? 斜投影。 1.5 看图说出这是什么投影法? 平行投影法。 2 制动器机械安装维修施工操作 2.1 这是是什么作用是什么? 答案:是保持轿厢的停止位置,防止电梯轿厢与对重的重量差产生的重力导致轿厢移动,保证进出轿厢 的人员与货物的安全。 2.2 制动力矩调整多大适宜? 答案:应足以使以额定速度运行并载有 125%的额定载荷的轿厢制停。 2.3 无齿轮曳引机的制动器的制动器直接作用于哪个部件? 答案:至少由两块闸瓦或两套制动件直接作用于曳引轮轴。 2.4 有齿轮曳引机的制动器的制动器直接作用于哪个部件? 答案:至少由两块闸瓦或两套制动件通过作用在制动轮或制动盘来实现制动。 2.5 无齿轮曳引机的制动器与有齿轮曳引机的制动器所需制动力矩哪个大? 答案:无齿轮曳引机的制动器直接作用于曳引轮轴,所需制动力矩比有齿轮曳引机的制动器大很多;因 此制动轮或制动盘的直径不能太小,因而造成制动器体积大大增加。 2.6 制动器两侧闸瓦与制动轮的外圆表面的最大间隙是多少? 答案:应在 0.7 m m 以内。 2.7 制动轮与制动器两侧闸瓦的接触面积应大于两侧闸瓦面积多少? 80 %。 2.8 制动器调整的松紧标准是什么? 1 制动器调整的松紧标准是以轿厢静载试验无溜车,平层准确, 双速电梯启、制动时轿厢内感觉舒适为宜。 调速电梯轿厢内无制动感觉。 2.9 制动器的调节螺栓作用是什么? 答案:使制动器通电时制动轮与闸瓦四周间隙均匀相等。 3 层门机械安装维修施工操作 3.1 这是什么有什么要求? 电梯层门门锁,对电梯层门门锁要求: a.由重力、永久磁铁或弹簧来保持其锁紧动作,即使永久磁铁或弹簧失效,重力亦不应导致开锁; b. 锁紧元件啮合至少为 7 毫米时,轿厢才能起动。 3.2 层门锁紧元件切断电路的触点元件与机械锁紧装置之间的连接有什么要求? a.应是直接的和防止误动作的,必要时可以调节; b.锁紧元件应是耐冲击的应用金属制造或加固。 3.3 层门锁紧元件的啮合应能满足在朝...

1、当您付费下载文档后,您只拥有了使用权限,并不意味着购买了版权,文档只能用于自身使用,不得用于其他商业用途(如 [转卖]进行直接盈利或[编辑后售卖]进行间接盈利)。
2、本站所有内容均由合作方或网友上传,本站不对文档的完整性、权威性及其观点立场正确性做任何保证或承诺!文档内容仅供研究参考,付费前请自行鉴别。
3、如文档内容存在违规,或者侵犯商业秘密、侵犯著作权等,请点击“违规举报”。

碎片内容

电梯机械安装维修实操(总)实操题详解稿

小辰5+ 关注
实名认证
内容提供者

出售各种资料和文档

确认删除?
VIP
微信客服
  • 扫码咨询
会员Q群
  • 会员专属群点击这里加入QQ群
客服邮箱
回到顶部