电脑桌面
添加小米粒文库到电脑桌面
安装后可以在桌面快捷访问

盾构机辅助系统原理

盾构机辅助系统原理_第1页
1/8
盾构机辅助系统原理_第2页
2/8
盾构机辅助系统原理_第3页
3/8
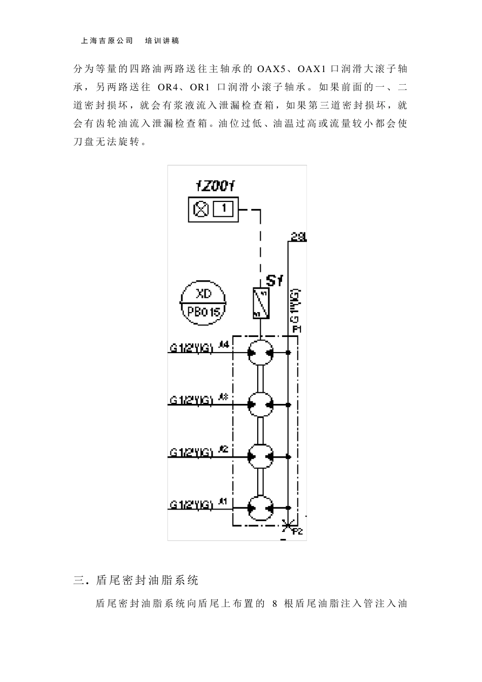
上 海 吉 原 公 司 培 训 讲 稿 盾构机辅助系统原理 一. 盾构机辅助系统组成 盾构机是一综合性的大型地下隧道开挖机械。集机械、电 子 电 器 、液 压 、传 感 技 术 等 于 一体 ,自 动 化 程 度 较 高 ,除 主 要 的液 压 系统和 电气 系统外 ,还 需 要 各 种 不 同 的系统来 完 成不 同 的功 能 ,其 上 就 有 十 几个 辅助系统, 这 些 系统有 : 1. 刀 盘 减 速 器 润 滑 冷 却 系统; 2. 盾尾 密 封 油 脂 系统; 3. 主 轴 承 密 封 油 脂 系统; 4. 油 脂 润 滑 密 封 系统; 5. 供 水 及 冷 却 系统; 6. 同 步 注 浆 系统; 7. 泡 沫 发 生 系统; 8. 添 加 聚 合物 系统; 9. 添 加 膨 润 土 系统; 10. 压 缩 空 气 系统; 11. 土 仓 加 压 系统; 12. 人 仓 加 压 系统。 二. 刀盘减速器润滑冷却系统 该 系统以 主 轴 承 密 封 外 壳 为 储 油 箱 , 配 有 4KW 的齿 轮 油 泵 、 益流 阀 、过 滤 器 、水 冷 却 器 、流 量 分 配 阀 ,形 成一循 环 系统。系统中 装有 油 温 传 感 器 、压 力 表 、流 量 传 感 器 、低 油 位 警 报 开关 及 检 查 密 封 状况 的泄 漏 检 查 箱 。油 泵 从 减 速 器 中 抽 出 的油 经 过 滤 、冷 却 ,由 分 配 阀上 海 吉 原 公 司 培 训 讲 稿 分为等量的四路油两路送往主轴承的OAX5、 OAX1 口 润 滑 大 滚 子 轴承, 另 两路送往OR4、 OR1 口 润 滑 小 滚 子 轴承。 如 果 前 面 的一 、 二道 密 封 损 坏 ,就 会 有 浆 液 流 入 泄 漏 检 查 箱 ,如 果 第 三 道 密 封 损 坏 ,就会 有 齿 轮 油流 入 泄 漏 检 查 箱 。油位 过 低 、油温 过 高 或 流 量较 小 都 会 使刀 盘 无 法 旋 转 。 三. 盾尾密封油脂系统 盾 尾 密 封 油脂 系 统 向 盾 尾 上 布 置 的8 根 盾 尾 油脂 注 入 管 注 入 油上 海 吉 原 公 司 培 训 讲 稿 脂到密封装置,以失油密封形式阻止隧洞内的水、土 及 压 注 材 料 从 盾尾 进 入 盾 构 内。系 统 由 气 动 油脂泵 、集 油器 、 8 路 支 管 及 ...

1、当您付费下载文档后,您只拥有了使用权限,并不意味着购买了版权,文档只能用于自身使用,不得用于其他商业用途(如 [转卖]进行直接盈利或[编辑后售卖]进行间接盈利)。
2、本站所有内容均由合作方或网友上传,本站不对文档的完整性、权威性及其观点立场正确性做任何保证或承诺!文档内容仅供研究参考,付费前请自行鉴别。
3、如文档内容存在违规,或者侵犯商业秘密、侵犯著作权等,请点击“违规举报”。

碎片内容

盾构机辅助系统原理

确认删除?
VIP
微信客服
  • 扫码咨询
会员Q群
  • 会员专属群点击这里加入QQ群
客服邮箱
回到顶部