电脑桌面
添加小米粒文库到电脑桌面
安装后可以在桌面快捷访问

汉中门广场景观调查报告

汉中门广场景观调查报告_第1页
1/10
汉中门广场景观调查报告_第2页
2/10
汉中门广场景观调查报告_第3页
3/10
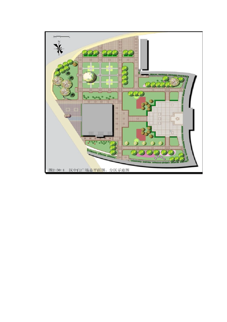
汉中门广场景观调查报告一、广场简介汉中门广场为城西干道中段的交通集散点,东口为汉中门,西口接石城桥,与凤凰南路、长虹路相接,南口为虎踞南路,北直通南京长江大桥。建成的广场,东起南京中医学院大门,西起石城桥,南起汉中商场,北到清凉门与虎踞路相连。南北向路幅 45 米,东西向路幅由 40 米过渡到 45 米,道口总面积为77260 平方米。汉中门广场是南京城市形象的一个缩影,是从江北直达市区的一个重要的交通要道。广场建设以突出古石城门的浓郁历史内涵为基调,围绕南京“古城墙”文化,具有古韵南京的地方特色主题。 二、广场中景观要素分析1、文化要素汉中门广场是全国重点文物保护单位之一,该门始建于南唐,为南京现存历史最悠久的城门,这里历史文化氛围浓重。广场内有全国重点保护文物—石城门,距记载南京城墙不仅是我国,而且是世界上规模最大的砖砌的都城城墙,是是六朝古都南京深厚文化的缩影。2、地形、水体、植物、铺装、建筑小品等景观要素广场地形平坦,突出开放和活动功能。上地面铺装图案采纳了方格的形式,隐喻了中国古代城市的方格网布局体系;石制的辟邪抽象了六朝石刻的精华;记事碑,古井遗址向人们诉说着古老的历史;石灯笼,石鼓凳则营造出怀旧的氛围……这些设施,其布置除了满足自身的功能外,都是为了与广场的主题相匹配。在道路上,曲尺形、正方形、方格形均体现出历史感的肃穆与严谨,现代归整形式强化古城门的历史特征,以上都是为游憩其间的人们营造出整体的历史文化感。这一切都是为了突出了以古城门为代表的传统风格,在整体规划上做了规则式的布局,使古城墙与新建广场构成统一基调。汉中门广场不仅突出了南京六朝古都的地方特色,而且突出了自己的文化特色,从而提升了城市的文化品位。该广场建设立足于本地,在广场中的雕塑,建筑小品,水景,绿地等中反映了当地居民的生活特点和精神风貌。 汉中门广场内的绿地设计,采纳了多种形式,他分了回归田园区、舞台广场活动区和休闲漫步区。广场铺植草坪植被约 8000 平方米,栽植了龙柏、杜鹃、红花檵木等多种乔灌木,并置有草花数千盆。夏天,南京的紫外线辐射强,大型的乔灌木,能为居民提供较多的树荫。此外,汉中门广场绿化草坪不仅具有观赏性,它更具有有用性,花坛均砌成 30-40 公分高、35 公分宽的矮墙,使广场可坐率达到 80%以上。在回归田园区,一反传统的花池高出地面的形式,采纳了花池与铺地相平、甚至下沉、使市民漫步其间,能...

1、当您付费下载文档后,您只拥有了使用权限,并不意味着购买了版权,文档只能用于自身使用,不得用于其他商业用途(如 [转卖]进行直接盈利或[编辑后售卖]进行间接盈利)。
2、本站所有内容均由合作方或网友上传,本站不对文档的完整性、权威性及其观点立场正确性做任何保证或承诺!文档内容仅供研究参考,付费前请自行鉴别。
3、如文档内容存在违规,或者侵犯商业秘密、侵犯著作权等,请点击“违规举报”。

碎片内容

汉中门广场景观调查报告

确认删除?
VIP
微信客服
  • 扫码咨询
会员Q群
  • 会员专属群点击这里加入QQ群
客服邮箱
回到顶部