电脑桌面
添加小米粒文库到电脑桌面
安装后可以在桌面快捷访问

轴类加工工艺设计实例

轴类加工工艺设计实例_第1页
1/17
轴类加工工艺设计实例_第2页
2/17
轴类加工工艺设计实例_第3页
3/17
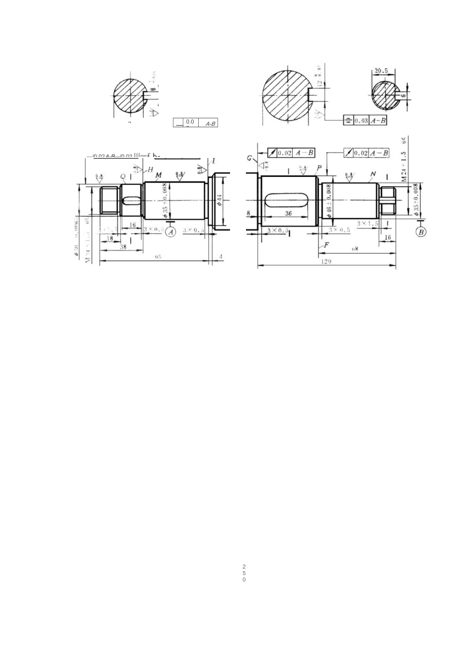
250第三十讲轴类零件加工工艺传动轴机械加工工艺实例轴类零件是常见的典型零件之一。按轴类零件结构形式不同,一般可分为光轴、阶梯轴和异形轴三类;或分为实心轴、空心轴等。它们在机器中用来支承齿轮、带轮等传动零件,以传递转矩或运动。台阶轴的加工工艺较为典型,反映了轴类零件加工的大部分内容与基本规律。下面就以减速箱中的传动轴为例,介绍一般台阶轴的加工工艺。.零件图样分析250—0.03A-B2-—/0.02A-B—/0.02 川一£卜-图传动轴图所示零件是减速器中的传动轴。它属于台阶轴类零件,由圆柱面、轴肩、螺纹、螺尾退刀槽、砂轮越程槽和键槽等组成。轴肩一般用来确定安装在轴上零件的轴向位置,各环槽的作用是使零件装配时有一个正确的位置,并使加工中磨削外圆或车螺纹时退刀方便;键槽用于安装键,以传递转矩;螺纹用于安装各种锁紧螺母和调整螺母。根据工作性能与条件,该传动轴图样图规定了主要轴颈,,外圆、以及轴肩、、有较高的尺寸、位置精度和较小的表面粗糙度值,并有热处理要求。这些技术要求必须在加工中给予保证。因此,该传动轴的关键工序是轴颈、和外圆、的加工。•确定毛坯该传动轴材料为钢,因其属于一般传动轴,故选钢可满足其要求。本例传动轴属于中、小传动轴,并且各外圆直径尺寸相差不大,故选择 0 的热轧圆钢作毛坯。•确定主要表面的加工方法传动轴大都是回转表面,主要采用车削与外圆磨削成形。由于该传动轴的主要表面、、、的公差等级较高,表面粗糙度值较小,故车削后还需磨削。外圆表面的加工方案参考表可为:粗车 f 半精车 f 磨削。•确定定位基准合理地选择定位基准,对于保证零件的尺寸和位置精度有着决定性的作用。由于该传动轴的几个主要配合表面、、、及轴肩面、对基准轴线均有径向圆跳动和端面圆跳动的要求,它又是实心轴,所以应选择两端中心孔为基准,采用双顶尖装夹方法,以保证零件的技术要求。粗基准采用热轧圆钢的毛坯外圆。中心孔加工采用三爪自定心卡盘装夹热轧圆钢的毛坯外圆,车端面、钻中心孔。但必须注意,一般不能用毛坯外圆装夹两次钻两端中心孔,而应该以毛坯外圆作粗基准,先加工一个端面,钻中心孔,车出一端外圆;然后以已车过的外圆作基准,用三爪自定心卡盘装夹有时在上工步已车外圆处搭中心架,车另一端面,钻中心孔。如此加工中心孔,才能保证两中心孔同轴。•划分阶段对精度要求较高的零件,其粗、精加工应分开,以保证零件的质量。该传动轴加工划分为三个阶段:粗车粗车...

1、当您付费下载文档后,您只拥有了使用权限,并不意味着购买了版权,文档只能用于自身使用,不得用于其他商业用途(如 [转卖]进行直接盈利或[编辑后售卖]进行间接盈利)。
2、本站所有内容均由合作方或网友上传,本站不对文档的完整性、权威性及其观点立场正确性做任何保证或承诺!文档内容仅供研究参考,付费前请自行鉴别。
3、如文档内容存在违规,或者侵犯商业秘密、侵犯著作权等,请点击“违规举报”。

碎片内容

轴类加工工艺设计实例

您可能关注的文档

确认删除?
VIP
微信客服
  • 扫码咨询
会员Q群
  • 会员专属群点击这里加入QQ群
客服邮箱
回到顶部