电脑桌面
添加小米粒文库到电脑桌面
安装后可以在桌面快捷访问

电气竖井内电缆桥架工程

电气竖井内电缆桥架工程_第1页
1/6
电气竖井内电缆桥架工程_第2页
2/6
电气竖井内电缆桥架工程_第3页
3/6
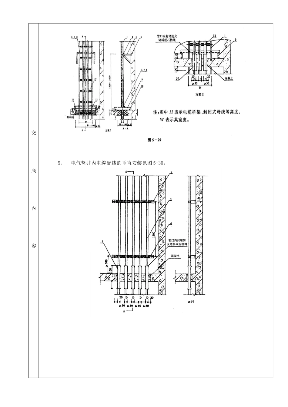
电气竖井内电缆桥架工程 分项工程质量技术交底卡GD2301003 施工单位工程名称分部工程交底部位日 期 年 月 日交底内容一、施工准备(一)作业条件1、 土建墙体结构已弹出施工水平线,墙面抹灰及面层巳完工。2、 电缆桥架及穿楼板的预留洞日已处理好,安装防火隔板的埋件巳整理好。3、 安装电缆桥架所需要的支架等附件巳加工好。4、 竖井内电气预埋管路巳整理好。(二)材料要求1、 电气竖井内所用的电缆桥架,规格型号要符合设计要求,采纳镀锌制品,镀锌钢板的厚度在桥架宽度小于 400mm 时,厚度不小于 1.5mm;在 400~800mm 之间时,厚度不小于 2mm;大于 800mm时,厚度不小于 2.5mm。2、 电缆桥架应平直,无明显扭曲,支架应焊接牢固,无显著变形,下料误差应在 5mm 范围内,切口应无卷边毛刺。3、 防火堵料(防火枕)、防火涂料应选用经国家鉴定的定型产品。4、 竖井内的配电箱应有出厂合格证、生产许可证、“CCC”认证标志和认证证书复印件及试验记录。5、 电线、电缆及附件应选用符合国家现行技术标准的产品,并应有出厂合格证、“CCC”认证标志和认证证书复印件。电线、电缆还应有生产许可证。6、 电气竖井中使用的辅助材料:钻头、电焊条、氧气、乙炔气、调合漆、焊锡、焊剂、橡胶绝缘带、塑料绝缘带、黑胶布等。7、 金属膨胀螺栓:根据允许拉力和剪力及设备的安装孔径确定。8、 接线端子:根据导线截面及导线根数选用相应规格的接线端子。9、 镀锌材料:钢板、圆钢、扁钢、角钢、螺栓、螺母、螺丝、垫圈、弹簧垫圈等金属材料均应采纳镀锌制品。(三)主要机具1、 活扳手、老虎钳、砂轮机、钢锯、锯条、电焊机、套丝机、手动煨管器、液压煨管器、扁锉、圆锉、半圆锉、压力案子、电烙铁、电炉子、锡锅、喷灯、锡勺等。2、 兆欧表,高凳等。二、质疆要求质量要求符合《建筑电气工程施工质量验收法律规范》(GB50303-2025)的规定。项序项 目允许偏差或允许值主控项目1金属电缆桥架、支架和引入、引出的金属导管的接地或接零第 12.1.1 条2电缆敷设检查第 12.1.2 条一般项目1电缆桥架检查第 12.2.1 条2桥架内电缆敷设和固定第 12.2.2 条3电缆的首端、末端和分支处的标志牌第 12.2.3 条交底内容三、工艺流程确定电缆桥架位置固定支架桥架安装配电箱固定四、操作工艺(一) 确定电缆桥架位置1、电缆桥架应敷设在安全、干燥、易操作的电气竖井内。2、根据图纸设计的位置,计算空间尺寸是否满足操作距离的要求,特别是竖井内...

1、当您付费下载文档后,您只拥有了使用权限,并不意味着购买了版权,文档只能用于自身使用,不得用于其他商业用途(如 [转卖]进行直接盈利或[编辑后售卖]进行间接盈利)。
2、本站所有内容均由合作方或网友上传,本站不对文档的完整性、权威性及其观点立场正确性做任何保证或承诺!文档内容仅供研究参考,付费前请自行鉴别。
3、如文档内容存在违规,或者侵犯商业秘密、侵犯著作权等,请点击“违规举报”。

碎片内容

电气竖井内电缆桥架工程

确认删除?
VIP
微信客服
  • 扫码咨询
会员Q群
  • 会员专属群点击这里加入QQ群
客服邮箱
回到顶部